プレリー八重洲ビル(物件No:21284193)
プレリー八重洲ビルは、中央区八重洲にある貸事務所物件で、最寄り駅は地下鉄銀座線の京橋駅です。2009年竣工の物件で、1フロア43坪ほどの賃貸オフィスビルです。EVは1基設置しており、セキュリティは機械警備です。床はOAフロアで、天井高は2,600mmです。他にJR東京駅からも徒歩約3分と非常に便利な中央区八重洲の貸事務所です。
-
物件情報
-
設備情報
- トイレ
- 室内男女別
- 床
- フリーアクセス
- 空調
- 個別空調
- セキュリティ
- 有
- 駐車場
- -
- 会議室
- -
- エレベーター
- 1基
- 天井高
- 2600mm
-
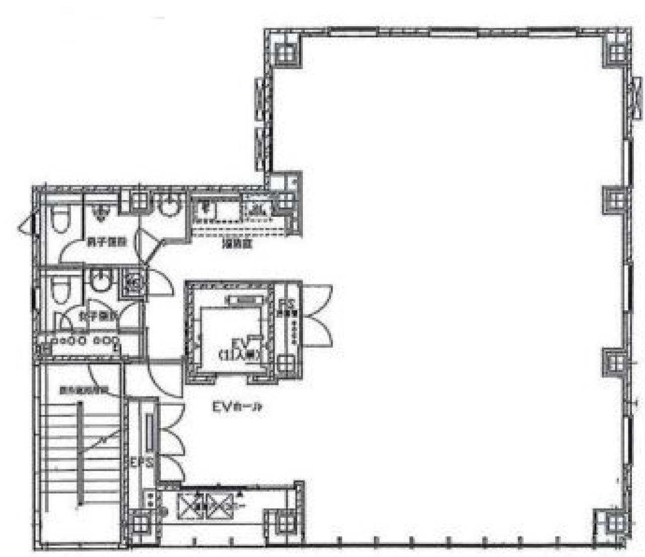
間取り図
-
近隣相場情報
八重洲2丁目(40~50坪)の相場
26666 円 (坪)
※ビルサク調べ
周辺施設情報
コンビニ |
ローソン/京橋エドグラン/160m(徒歩2分) ファミリーマート/八重洲二丁目店/21m(徒歩1分) |
---|---|
郵便局/銀行 |
みずほ銀行/京橋支店/窓口 平日9:00~15:00 ATM 平日 / 6:00~26:00 土曜日/ 8:00~22:00 日曜日/ 8:00~21:00 祝日・振替休日 / 8:00~21:00/200m(徒歩2分) 広島銀行/東京支店/[営業時間]平日 9:00~15:00 [ATM]平日 9:00~17:00 土曜日 - 土曜日 - 日祝日 - 日祝日 - [駐車場]なし/240m(徒歩3分) |
飲食店 |
ダクシン 八重洲店/11時00分~15時00分、17時30分~23時00分/4m(徒歩1分) 地中海バール TOKYO Mar Mare(マルマーレ) 八重洲/11時30分~14時30分、17時00分~23時30分/ |
カフェ |
スターバックス/東京駅八重洲南口店/[営業時間]月~金: 07:00~21:00 土: 08:30~20:00 日祝: 09:30~20:00 [休業日]不定休 [備考]無線LAN:STARBUCKS/docomo/FLET’S(東)/Softbank/au/Wi2 300/83m(徒歩1分) ティファニー/[営業時間]10時00分~21時00分/84m(徒歩1分) |
コインパーキング |
三井のリパーク/八重洲2丁目 [料金] 全日 08:00~00:00 12分/300円 全日 00:00~08:00 60分/100円 [台数]2 タイムズ駐車場/八重洲第8 [料金] [全日]00:00-00:00 12分 300円 [最大料金] [全日]駐車後5時間 2800円 [台数]1 |
周辺地図
プレリー八重洲ビルは、中央区八重洲にある貸事務所物件で、最寄り駅は地下鉄銀座線の京橋駅です。2009年竣工の物件で、1フロア43坪ほどの賃貸オフィスビルです。EVは1基設置しており、セキュリティは機械警備です。床はOAフロアで、天井高は2,600mmです。他にJR東京駅からも徒歩約3分と非常に便利な中央区八重洲の貸事務所です。
全フロア情報
更新日:2021年11月22日
階 | 面積 | 賃料 | 共益費 | 敷金 | 入居日 | お問合せ | お気に入り | |
---|---|---|---|---|---|---|---|---|
2F |
43.00 坪 142.15 ㎡ |
※現在空室情報はございません |
※現在空室情報は 確認する |
|||||
4F |
43.00 坪 142.15 ㎡ |
※現在空室情報はございません |
※現在空室情報は 確認する |
|||||
5F |
43.00 坪 142.15 ㎡ |
※現在空室情報はございません |
※現在空室情報は 確認する |
|||||
6F |
43.00 坪 142.15 ㎡ |
※現在空室情報はございません |
※現在空室情報は 確認する |
|||||
7F |
43.00 坪 142.15 ㎡ |
※現在空室情報はございません |
※現在空室情報は 確認する |
|||||
8F |
43.00 坪 142.15 ㎡ |
※現在空室情報はございません |
※現在空室情報は 確認する |
お問い合わせ
似た条件の物件はこちら
-
キムラヤビル
東京都中央区京橋2-5-22
坪数:40.18 坪
坪単価:19,300 円(坪)
-
仁大ビル
東京都中央区京橋2-8-21
坪数:42.03 坪
坪単価:32,000 円(坪)
-
サカキビル
東京都中央区京橋2-12-12
坪数:40.5 坪
坪単価:15,500 円(坪)
-
八重洲山川ビル
東京都中央区日本橋3-3-3
坪数:45.7 坪
坪単価:22,000 円(坪)
-
東和八重洲ビル
東京都中央区日本橋3-4-16
坪数:36.73 坪
坪単価:44,000 円(坪)
-
新槇町ビル
東京都中央区八重洲1-8-17
坪数:37 坪
坪単価:55,000 円(坪)
-
斉藤ビル
東京都中央区京橋3-14-6
坪数:49.82 坪
坪単価:15,000 円(坪)
-
朝日ビルヂング
東京都中央区日本橋3-12-2
坪数:35.39 坪
坪単価:19,500 円(坪)
-
藤木ビル
東京都中央区京橋2-6-6
坪数:36.5 坪
坪単価:20,000 円(坪)
-
金原ビル
東京都中央区日本橋本町2-3-5
坪数:35.47 坪
坪単価:14,096 円(坪)