松濤サン・エルサビル(物件No:21181027)
松濤サン・エルサビルは、渋谷区松濤にある貸事務所物件です。最寄り駅は、JR線、東京メトロ銀座線、半蔵門線、副都心線、京王井の頭線の渋谷駅、京王井の頭線の神泉駅です。1965年竣工で、基準階が72坪の賃貸オフィスビルです。機械警備で、エレベーターは1基あります。駐車場が利用可能な、渋谷区松濤の貸事務所です。
| 階 | 面積 | 賃料 | 共益費 | 敷金 | 入居日 | お問合せ | お気に入り |
|---|---|---|---|---|---|---|---|
|
3F
(302区画) |
7.89 坪 26.07 ㎡ |
143,637 円 18,205 円(坪) |
10,000 円 1,267 円(坪) |
430,911 円 3 ヶ月 |
即日 |
|
|
| 階 | 面積 | 賃料 | 共益費 | 敷金 | 入居日 | お問合せ | お気に入り |
|---|---|---|---|---|---|---|---|
|
3F
(302区画) |
7.89 坪 26.07 ㎡ |
143,637 円 18,205 円(坪) |
10,000 円 1,267 円(坪) |
430,911 円 3 ヶ月 |
即日 |
|
|
-
物件情報
-
設備情報
- トイレ
- 室内男女共用
- 床
- フローリング
- 空調
- 家庭用
- セキュリティ
- 有
- 駐車場
- 有
- 会議室
- -
- エレベーター
- 1基
- 天井高
- -
-
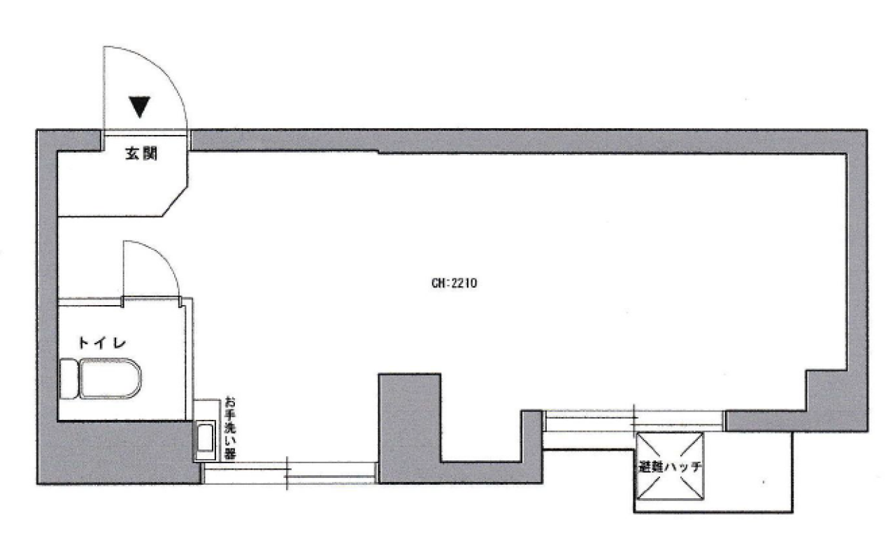
間取り図
-
近隣相場情報
松濤1丁目(20坪以下)の相場
21316 円 (坪)
※ビルサク調べ
周辺施設情報
| コンビニ |
ローソン/道玄坂二丁目/500m(徒歩6分) ファミリーマート/渋谷NHK前店/400m(徒歩5分) |
|---|---|
| 郵便局/銀行 |
イオン銀行/ATM マルエツ富ヶ谷一丁目店出張所/[営業時間]8:00~23:00/500m(徒歩6分) ゆうちょ/放送センター内郵便局/[営業時間] [窓口]平日 9:00~16:00 土曜日 - 日曜日・休日 - [ATM]平日 9:00~18:00 土曜日 9:00~12:30 日曜日・休日 - [駐車場]なし [取扱]郵便/貯金/保険/ATM [備考]※新型コロナウイルスに感染した社員が発生した場合、窓口業務、ATMを一時休止/400m(徒歩6分) |
| 飲食店 |
ガガナラーメン極 渋谷店/11時30分~22時00分/83m(徒歩1分) EAST BLUE 豪椀/17時00分~23時30分/61m(徒歩1分) |
| カフェ |
カフェ MOCHA/渋谷センター街店/[営業時間]10:00~20:00 /最終入店 19:30 [休業日]年中無休 [備考]料金 220円/10分・最大料金 一般 2,640円 高校生以下(平日のみ)1,320円 ドリンクバー代 385円別途頂戴いたします。※金額は税込表記です/270m(徒歩3分) 渋谷swing/12時00分~21時00分/150m(徒歩2分) |
| コインパーキング |
東急ライファ/松濤コインパーキング [料金] 15分/300円 [最大料金] 駐車後6時間 2,800円(繰り返し適用) [台数]18台 コインパーク/渋谷神山町 [料金] 【全日】■通常料金【オールタイム(24時間)】12分/300円 [最大料金] 【全日】■最大料金【駐車後6時間以内(1回限り)】3000円【22:00~8:00】500円 [台数] [車: 13台] |
周辺地図
松濤サン・エルサビルは、渋谷区松濤にある貸事務所物件です。最寄り駅は、JR線、東京メトロ銀座線、半蔵門線、副都心線、京王井の頭線の渋谷駅、京王井の頭線の神泉駅です。1965年竣工で、基準階が72坪の賃貸オフィスビルです。機械警備で、エレベーターは1基あります。駐車場が利用可能な、渋谷区松濤の貸事務所です。
全フロア情報
更新日:2026年2月17日
| 階 | 面積 | 賃料 | 共益費 | 敷金 | 入居日 | お問合せ | お気に入り | |
|---|---|---|---|---|---|---|---|---|
| B1F |
110.7 坪 365.95 ㎡ |
※現在空室情報はございません |
※現在空室情報は 確認する |
|||||
|
B1F
(1区画) |
72 坪 238 ㎡ |
※現在空室情報はございません |
※現在空室情報は 確認する |
|||||
| 1F |
72 坪 238.02 ㎡ |
※現在空室情報はございません |
※現在空室情報は 確認する |
|||||
|
1F
(106区画) |
14 坪 46.28 ㎡ |
336,000 円 24,000 円(坪) |
10,000 円 714 円(坪) |
1,680,000 円 5 ヶ月 |
即日 |
|
|
|
|
2F
(205区画) |
6.92 坪 22.88 ㎡ |
※現在空室情報はございません |
※現在空室情報は 確認する |
|||||
|
2F
(210区画) |
7.95 坪 26.28 ㎡ |
※現在空室情報はございません |
※現在空室情報は 確認する |
|||||
|
3F
(302区画) |
7.89 坪 26.07 ㎡ |
143,637 円 18,205 円(坪) |
10,000 円 1,267 円(坪) |
430,911 円 3 ヶ月 |
即日 |
|
|
|
|
3F
(305区画) |
7.01 坪 23.17 ㎡ |
※現在空室情報はございません |
※現在空室情報は 確認する |
|||||
|
3F
(321区画) |
8.1 坪 26.78 ㎡ |
※現在空室情報はございません |
※現在空室情報は 確認する |
|||||
|
4F
(401区画) |
6.68 坪 22.08 ㎡ |
※現在空室情報はございません |
※現在空室情報は 確認する |
|||||
|
4F
(406区画) |
6.72 坪 22.2 ㎡ |
※現在空室情報はございません |
※現在空室情報は 確認する |
|||||
|
5F
(501区画) |
6.84 坪 22.58 ㎡ |
※現在空室情報はございません |
※現在空室情報は 確認する |
|||||
|
5F
(503区画) |
6.82 坪 22.56 ㎡ |
※現在空室情報はございません |
※現在空室情報は 確認する |
|||||
|
5F
(505区画) |
9.95 坪 32.9 ㎡ |
※現在空室情報はございません |
※現在空室情報は 確認する |
|||||
|
5F
(506区画) |
7.93 坪 26.2 ㎡ |
※現在空室情報はございません |
※現在空室情報は 確認する |
|||||
お問い合わせ
似た条件の物件はこちら
-
ビラ・モデルナ
東京都渋谷区渋谷1-3-18
坪数:10.58 坪
坪単価:22,212 円(坪)
-
秀和外苑レジデンス
東京都渋谷区神宮前2-6-6
坪数:11 坪
坪単価:21,818 円(坪)
-
アロープラザ原宿
東京都渋谷区神宮前4-19-8
坪数:11.38 坪
坪単価:25,483 円(坪)
-
第1本間ビル
東京都渋谷区渋谷2-5-7
坪数:10.5 坪
坪単価:11,429 円(坪)
-
メゾン岡田
東京都渋谷区神宮前3-5-13
坪数:11 坪
坪単価:24,545 円(坪)
-
青山台ビル
東京都渋谷区渋谷2-9-10
坪数:10.53 坪
坪単価:21,091 円(坪)
-
麻仁ビル渋谷
東京都渋谷区宇田川町37-10
坪数:11.75 坪
坪単価:11,660 円(坪)
-
神宮前コーポラス
東京都渋谷区神宮前6-25-8
坪数:11.19 坪
坪単価:13,405 円(坪)
-
アートビル
東京都渋谷区渋谷2-12-8
坪数:11.76 坪
坪単価:19,983 円(坪)