AMANO芝公園ビル(物件No:20332554)
AMANO芝公園ビルは、港区芝公園にある地上8階建ての賃貸事務所です。最寄駅は都営三田線の御成門駅から徒歩3分、JR山手線の浜松町駅から徒歩10分、都営浅草線の大門駅から徒歩6分、JR京浜東北線の浜松町駅から徒歩10分、都営大江戸線の大門駅から徒歩6分、東京モノレールの浜松町駅から徒歩10分です。2021年2月竣工の鉄骨造です。設備としては、エレベーターが1基あり、駐車場もあります。セキュリティは機械警備です。トイレは男女別です。空調は個別空調です。床仕様はフリーアクセスです。天高は2500mmです。複数路線利用可能なアクセスの良い港区芝公園の賃貸オフィスです。
-
物件情報
-
設備情報
- トイレ
- 室内男女別
- 床
- フリーアクセス
- 空調
- 個別空調
- セキュリティ
- 有
- 駐車場
- 有
- 会議室
- -
- エレベーター
- 1基
- 天井高
- 2500mm
-
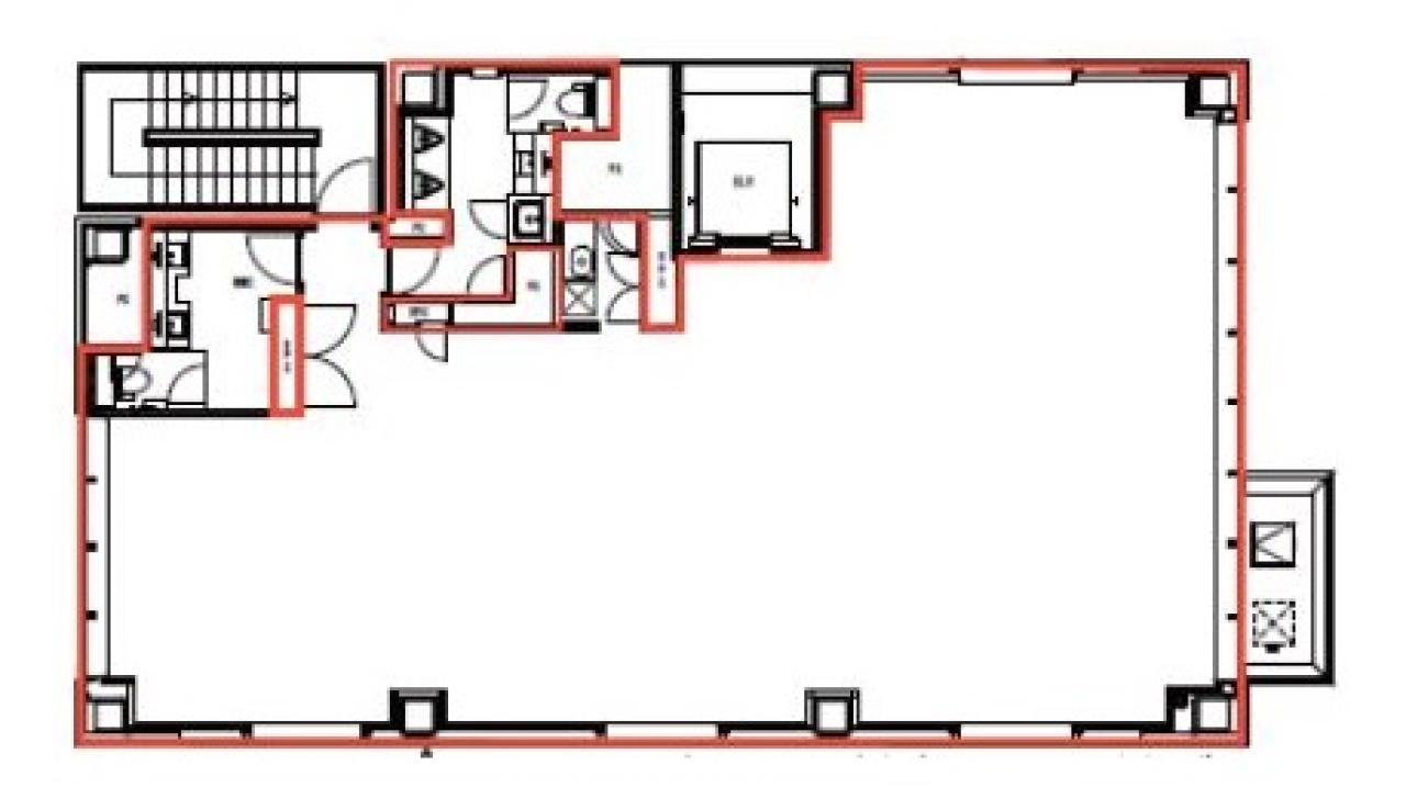
間取り図
-
近隣相場情報
芝公園1丁目(40~50坪)の相場
23000 円 (坪)
※ビルサク調べ
周辺地図
AMANO芝公園ビルは、港区芝公園にある地上8階建ての賃貸事務所です。最寄駅は都営三田線の御成門駅から徒歩3分、JR山手線の浜松町駅から徒歩10分、都営浅草線の大門駅から徒歩6分、JR京浜東北線の浜松町駅から徒歩10分、都営大江戸線の大門駅から徒歩6分、東京モノレールの浜松町駅から徒歩10分です。2021年2月竣工の鉄骨造です。設備としては、エレベーターが1基あり、駐車場もあります。セキュリティは機械警備です。トイレは男女別です。空調は個別空調です。床仕様はフリーアクセスです。天高は2500mmです。複数路線利用可能なアクセスの良い港区芝公園の賃貸オフィスです。
全フロア情報
更新日:2025年12月26日
| 階 | 面積 | 賃料 | 共益費 | 敷金 | 入居日 | お問合せ | お気に入り | |
|---|---|---|---|---|---|---|---|---|
| 2F |
46.76 坪 154.58 ㎡ |
※現在空室情報はございません |
※現在空室情報は 確認する |
|||||
| 3F |
48.81 坪 161.36 ㎡ |
※現在空室情報はございません |
※現在空室情報は 確認する |
|||||
| 4F |
48.81 坪 161.36 ㎡ |
※現在空室情報はございません |
※現在空室情報は 確認する |
|||||
| 5F |
48.81 坪 161.36 ㎡ |
※現在空室情報はございません |
※現在空室情報は 確認する |
|||||
| 6F |
48.81 坪 161.36 ㎡ |
※現在空室情報はございません |
※現在空室情報は 確認する |
|||||
お問い合わせ
似た条件の物件はこちら
-
トレードピアお台場
東京都港区台場2-3-1
坪数:55.82 坪
坪単価:24,006 円(坪)
-
芝公園プラザビル
東京都港区芝3-6-9
坪数:50.88 坪
坪単価:18,000 円(坪)
-
シントクビル
東京都港区芝3-14-6
坪数:45.28 坪
坪単価:14,000 円(坪)
-
Bizflex浜松町
東京都港区浜松町2-12-11
坪数:44.06 坪
坪単価:36,314 円(坪)
-
オー・アイ・芝浦
東京都港区芝浦3-19-19
坪数:53.42 坪
坪単価:14,000 円(坪)
-
ARZ芝公園
東京都港区芝2-23-1
坪数:45.88 坪
坪単価:28,000 円(坪)
-
サンワード浜松町
東京都港区浜松町2-13-14
坪数:47.84 坪
坪単価:12,000 円(坪)
-
Expert Tamachi
東京都港区芝浦3-6-14
坪数:48.14 坪
坪単価:36,000 円(坪)
-
オフィスニューガイア浜松町No.17
東京都港区芝1-15-13
坪数:37.89 坪
坪単価:21,594 円(坪)
-
ACN芝プラザビル
東京都港区芝4-5-11
坪数:50.23 坪
坪単価:20,000 円(坪)