シンク白山(物件No:13835609)
シンク白山は、文京区白山にある地上8階建ての賃貸オフィス/貸店舗事務所です。最寄駅は都営三田線の白山駅から徒歩5分、都営三田線の春日駅から徒歩10分、東京メトロ南北線の東大前駅から徒歩15分です。1985年9月竣工の鉄骨造です。設備としては、エレベーターが1基あります。セキュリティは機械警備です。トイレは室内男女共用です。空調は個別空調です。床仕様はフリーアクセスです。耐震設計となっている、複数路線利用可能なアクセスの良い文京区白山の賃貸事務所/貸店舗事務所です。
| 階 | 面積 | 賃料 | 共益費 | 敷金 | 入居日 | お問合せ | お気に入り |
|---|---|---|---|---|---|---|---|
| 7F |
29.33 坪 96.96 ㎡ |
372,727 円 12,708 円(坪) |
10,000 円 341 円(坪) |
2,236,362 円 6 ヶ月 |
相談 |
|
|
| 階 | 面積 | 賃料 | 共益費 | 敷金 | 入居日 | お問合せ | お気に入り |
|---|---|---|---|---|---|---|---|
| 7F |
29.33 坪 96.96 ㎡ |
372,727 円 12,708 円(坪) |
10,000 円 341 円(坪) |
2,236,362 円 6 ヶ月 |
相談 |
|
|
-
物件情報
-
設備情報
- トイレ
- 室内男女共用
- 床
- フリーアクセス
- 空調
- -
- セキュリティ
- 有
- 駐車場
- 無
- 会議室
- -
- エレベーター
- 1基
- 天井高
- -
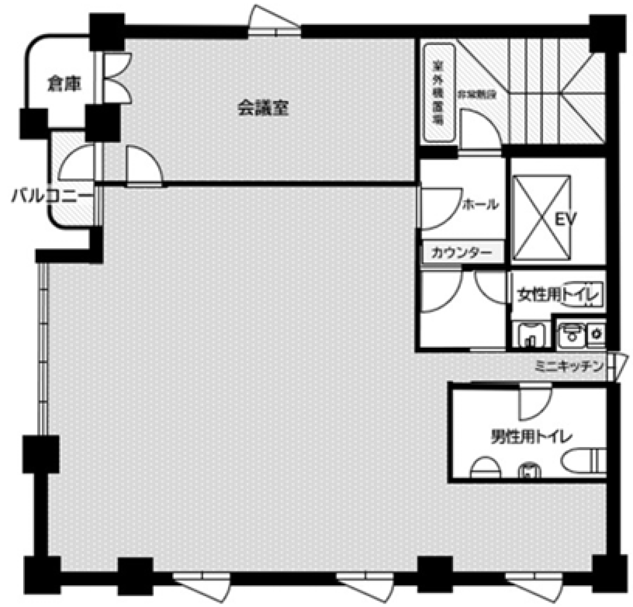
-
間取り図
-
近隣相場情報
白山1丁目(20~30坪)の相場
12739 円 (坪)
※ビルサク調べ
周辺地図
シンク白山は、文京区白山にある地上8階建ての賃貸オフィス/貸店舗事務所です。最寄駅は都営三田線の白山駅から徒歩5分、都営三田線の春日駅から徒歩10分、東京メトロ南北線の東大前駅から徒歩15分です。1985年9月竣工の鉄骨造です。設備としては、エレベーターが1基あります。セキュリティは機械警備です。トイレは室内男女共用です。空調は個別空調です。床仕様はフリーアクセスです。耐震設計となっている、複数路線利用可能なアクセスの良い文京区白山の賃貸事務所/貸店舗事務所です。
全フロア情報
更新日:2026年3月6日
| 階 | 面積 | 賃料 | 共益費 | 敷金 | 入居日 | お問合せ | お気に入り | |
|---|---|---|---|---|---|---|---|---|
| 1F |
18.68 坪 61.77 ㎡ |
※現在空室情報はございません |
※現在空室情報は 確認する |
|||||
| 2F |
18.69 坪 61.77 ㎡ |
※現在空室情報はございません |
※現在空室情報は 確認する |
|||||
| 3F |
28.21 坪 93.27 ㎡ |
※現在空室情報はございません |
※現在空室情報は 確認する |
|||||
| 4F |
29.33 坪 96.96 ㎡ |
354,545 円 12,088 円(坪) |
10,000 円 341 円(坪) |
2,127,270 円 6 ヶ月 |
相談 |
|
|
|
| 5F |
29.33 坪 96.96 ㎡ |
※現在空室情報はございません |
※現在空室情報は 確認する |
|||||
|
5F
(502区画) |
11.34 坪 37.5 ㎡ |
200,000 円 17,637 円(坪) |
相談 |
1,200,000 円 6 ヶ月 |
即日 |
|
|
|
| 7F |
29.33 坪 96.96 ㎡ |
372,727 円 12,708 円(坪) |
10,000 円 341 円(坪) |
2,236,362 円 6 ヶ月 |
相談 |
|
|
|
お問い合わせ
似た条件の物件はこちら
-
マンションニュー本郷
東京都文京区向丘2-3-8
坪数:22.99 坪
坪単価:10,004 円(坪)
-
ココプラス本駒込
東京都文京区本駒込3-1-8
坪数:21.36 坪
坪単価:15,309 円(坪)
-
本駒込Kマンション
東京都文京区本駒込4-40-3
坪数:20.43 坪
坪単価:11,013 円(坪)
-
ATK千駄木ビル
東京都文京区千駄木3-43-3
坪数:29.04 坪
坪単価:12,000 円(坪)
-
ワコーレ千駄木ビル
東京都文京区千駄木3-31-12
坪数:37.77 坪
坪単価:10,000 円(坪)
-
千石グリーンパーク
東京都文京区千石1-16-7
坪数:20.00 坪
坪単価:7,500 円(坪)
-
ルネ千駄木プラザ
東京都文京区千駄木2-13-1
坪数:19.27 坪
坪単価:9,341 円(坪)
-
講談社FSビル
東京都文京区本駒込3-20-3
坪数:36.96 坪
坪単価:10,000 円(坪)