堀口ビル(物件No:13806921)
堀口ビルは、千代田区岩本町にある地上7階建ての賃貸事務所です。最寄駅はJR線の秋葉原駅から徒歩8分、都営新宿線の岩本町駅から徒歩5分、都営新宿線の馬喰横山駅から徒歩7分、JR総武線快速の馬喰町駅から徒歩5分です。1988年竣工の鉄骨鉄筋コンクリート造です。設備としては、エレベーターが1基あり、駐車場もあります。セキュリティは機械警備です。トイレは室外男女別です。空調は個別空調です。耐震設計となっている、複数路線利用可能なアクセスの良い千代田区岩本町の賃貸オフィスです。
-
物件情報
-
設備情報
- トイレ
- 室外男女別
- 床
- -
- 空調
- 個別空調
- セキュリティ
- 有
- 駐車場
- 有
- 会議室
- -
- エレベーター
- 1基
- 天井高
- -
-
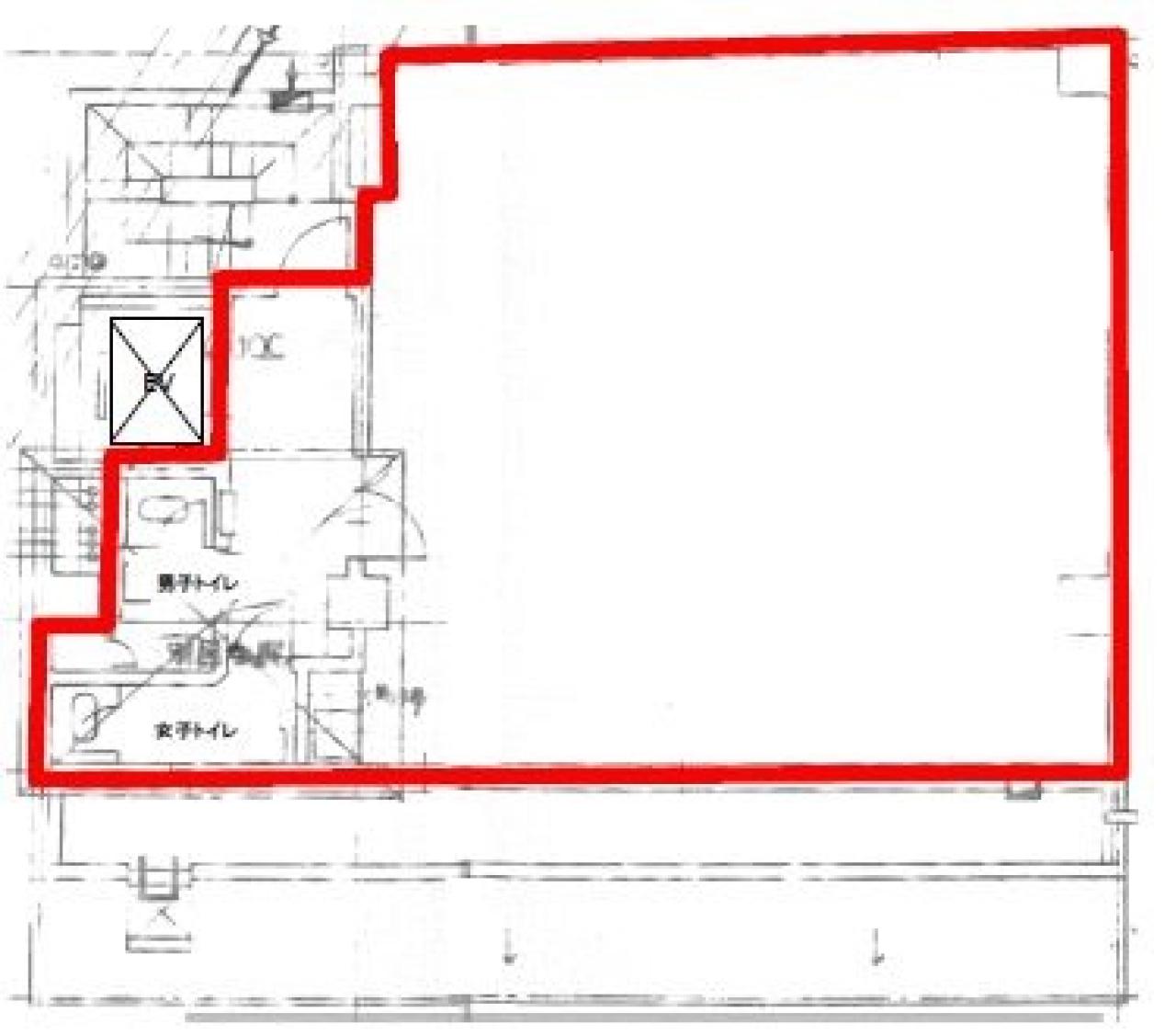
間取り図
-
近隣相場情報
岩本町2丁目(20~30坪)の相場
21000 円 (坪)
※ビルサク調べ
周辺施設情報
| コンビニ |
まいばすけっと/岩本町2丁目店/250m(徒歩3分) デイリーヤマザキ/馬喰横山駅前店/550m(徒歩8分) |
|---|---|
| 郵便局/銀行 |
イーネット/ファミリーマート東神田二丁目/[営業時間]0:00~24:00/300m(徒歩4分) 愛媛銀行/東京支店/[営業時間] [窓口]平日 9:00~11:30 12:30~15:00 [ATM]平日 9:00~17:00 土曜:休業 日曜・祝日:休業/350m(徒歩5分) |
| 飲食店 |
澤屋/(月・火・木・金) 11:30~13:00(月曜~金曜) 17:00~22:00/170m(徒歩2分) MARTINOTTI Prosecco/12時00分~23時00分/550m(徒歩7分) |
| カフェ |
COFFEE STAND IN THE PAINTING/11時00分~16時00分/300m(徒歩4分) cafe SeeKa/11時30分~15時00分、17時00分~23時00分/270m(徒歩4分) |
| コインパーキング |
パークジャパン/岩本町第6 [料金] 月?土 8:00~22:00 300円/15分 22:00~8:00 100円/60分 日祝 8:00~22:00 400円/30分 22:00~8:00 100円/60分 [最大料金] 月?土 8:00~22:00 最大料金4,000円 22:00~8:00 最大料金500円 日祝 8:00~22:00 最大料金1,400円 22:00~8:00 最大料金500円 [台数]3台 タイムズ駐車場/神田金物通り第2 [料金] [月~土]通常料金 / 8:00~22:00 20分 440円 22:00~8:00 60分 220円 [日・祝]通常料金 / 8:00~22:00 20分 440円 22:00~8:00 60分 220円 [最大料金] [月~土]当日1日最大料金4400円(24時迄) [日・祝]当日1日最大料金1650円(24時迄) [台数]8 |
周辺地図
堀口ビルは、千代田区岩本町にある地上7階建ての賃貸事務所です。最寄駅はJR線の秋葉原駅から徒歩8分、都営新宿線の岩本町駅から徒歩5分、都営新宿線の馬喰横山駅から徒歩7分、JR総武線快速の馬喰町駅から徒歩5分です。1988年竣工の鉄骨鉄筋コンクリート造です。設備としては、エレベーターが1基あり、駐車場もあります。セキュリティは機械警備です。トイレは室外男女別です。空調は個別空調です。耐震設計となっている、複数路線利用可能なアクセスの良い千代田区岩本町の賃貸オフィスです。
全フロア情報
更新日:2025年10月31日
| 階 | 面積 | 賃料 | 共益費 | 敷金 | 入居日 | お問合せ | お気に入り | |
|---|---|---|---|---|---|---|---|---|
| 2F |
35.89 坪 118.64 ㎡ |
※現在空室情報はございません |
※現在空室情報は 確認する |
|||||
| 3F |
35.89 坪 118.64 ㎡ |
※現在空室情報はございません |
※現在空室情報は 確認する |
|||||
| 4F |
35.89 坪 118.64 ㎡ |
※現在空室情報はございません |
※現在空室情報は 確認する |
|||||
| 5F |
27.27 坪 90.15 ㎡ |
※現在空室情報はございません |
※現在空室情報は 確認する |
|||||
お問い合わせ
似た条件の物件はこちら
-
大手町ゲートビルディング
東京都千代田区内神田1-31-11
坪数:34.8 坪
坪単価:70,402 円(坪)
-
日光ビル
東京都千代田区神田小川町1-1-4
坪数:34.94 坪
坪単価:15,000 円(坪)
-
M&Cビル
東京都千代田区神田小川町2-3-13
坪数:34.42 坪
坪単価:15,500 円(坪)
-
新八光ビル
東京都千代田区内神田3-22-9
坪数:31.7 坪
坪単価:20,000 円(坪)
-
第八東誠ビル
東京都千代田区岩本町2-11-3
坪数:25.82 坪
坪単価:12,000 円(坪)
-
神田中沢ビル
東京都千代田区外神田6-14-12
坪数:28.5 坪
坪単価:10,526 円(坪)
-
新東ビル
東京都千代田区内神田2-8-3
坪数:21.5 坪
坪単価:12,000 円(坪)
-
神田乗物町ビル
東京都千代田区神田北乗物町2
坪数:20.88 坪
坪単価:12,973 円(坪)
-
いちご大手町ノースビル
東京都千代田区内神田1-15-7
坪数:31.89 坪
坪単価:29,000 円(坪)
-
ism神田
東京都千代田区神田東松下町48
坪数:31.72 坪
坪単価:16,000 円(坪)
関連エリアから探す
- 内神田
- 神田淡路町
- 神田小川町
- 神田鍛冶町
- 神田須田町
- 神田駿河台
- 神田多町
- 神田司町
- 神田錦町
- 神田美土代町
- 岩本町
- 鍛冶町
- 神田岩本町
- 神田北乗物町
- 神田紺屋町
- 神田富山町
- 神田西福田町
- 神田東松下町
- 神田東紺屋町
- 神田美倉町
- 東神田
- 神田相生町
- 神田和泉町
- 神田佐久間町
- 神田佐久間河岸
- 神田練塀町
- 神田花岡町
- 神田松永町
- 外神田
- 神田平河町