波多野ビル紅梅ハウス(物件No:13416188)
波多野ビル紅梅ハウスは、港区麻布十番にある地上8階建ての賃貸事務所です。最寄駅は都営大江戸線の麻布十番駅から徒歩2分、東京メトロ日比谷線の六本木駅から徒歩10分です。1981年2月竣工の鉄骨鉄筋コンクリート造です。設備としては、エレベーターが1基あります。トイレは室内男女共用です。空調は個別空調です。最寄駅から近くて便利な港区麻布十番の賃貸オフィスです。
-
物件情報
-
設備情報
- トイレ
- 室内男女共用
- 床
- -
- 空調
- 個別空調
- セキュリティ
- -
- 駐車場
- 無
- 会議室
- -
- エレベーター
- 1基
- 天井高
- -
-
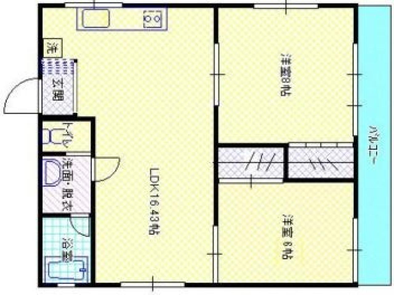
間取り図
-
近隣相場情報
麻布十番1丁目(20坪以下)の相場
24881 円 (坪)
※ビルサク調べ
周辺施設情報
| コンビニ |
ファミリーマート/麻布十番一丁目店/72m(徒歩1分) セブンイレブン/港区麻布十番2丁目/240m(徒歩3分) |
|---|---|
| 郵便局/銀行 |
イーネット/ファミリーマート麻布十番一丁目/[営業時間]0:00-24:00/72m(徒歩1分) みずほ銀行/ATM ダイエー麻布十番店出張所/[営業時間]ATM 平日 /Monday - Friday 7:00~27:00 土曜日/Saturday 7:00~22:00 日曜日/Sunday 8:00~27:00 祝日・振替休日 /Public Holidays 曜日に準ずる 備考 通帳繰越機 設置なし/130m(徒歩2分) |
| 飲食店 |
Shaji フレンチ焼鳥とワイン/17時30分~23時30分/2m(徒歩1分) 馬麺/19時00分~2時00分/14m(徒歩1分) |
| カフェ |
カフェドクリエ/麻布十番/[営業時間][平 日] 7:30-21:00 [土日祝] (土)8:00-21:00 (日/祝)8:00-20:00/170m(徒歩2分) Cafe RACCOON/9時00分~19時00分/87m(徒歩1分) |
| コインパーキング |
三井のリパーク/麻布十番2丁目第4 [料金] 全日 08:00~00:00 15分/200円 全日 00:00~08:00 60分/200円 [最大料金] 【全日】0:00~8:00以内 最大料金1200円 [台数]3 タイムズ駐車場/麻布十番大通り第2 [料金] [全日]07:00-20:00 10分 200円 [全日]300円 20:00-07:00 60分 [最大料金] [全日]駐車後12時間 最大料金3400円 [台数]23 |
周辺地図
波多野ビル紅梅ハウスは、港区麻布十番にある地上8階建ての賃貸事務所です。最寄駅は都営大江戸線の麻布十番駅から徒歩2分、東京メトロ日比谷線の六本木駅から徒歩10分です。1981年2月竣工の鉄骨鉄筋コンクリート造です。設備としては、エレベーターが1基あります。トイレは室内男女共用です。空調は個別空調です。最寄駅から近くて便利な港区麻布十番の賃貸オフィスです。
全フロア情報
更新日:2025年12月26日
| 階 | 面積 | 賃料 | 共益費 | 敷金 | 入居日 | お問合せ | お気に入り | |
|---|---|---|---|---|---|---|---|---|
|
6F
(1区画) |
18.83 坪 62.24 ㎡ |
※現在空室情報はございません |
※現在空室情報は 確認する |
|||||
お問い合わせ
似た条件の物件はこちら
-
センチュリオン六本木タワーⅡ
東京都港区西麻布3-6-1
坪数:21.76 坪
坪単価:20,000 円(坪)
-
麻布十番ミレニアムタワー
東京都港区麻布十番2-8-8
坪数:13.98 坪
坪単価:30,000 円(坪)
-
タトルビル
東京都港区東麻布2-6-5
坪数:16.97 坪
坪単価:11,786 円(坪)
-
麻布エンパイアマンション
東京都港区西麻布4-11-28
坪数:17.61 坪
坪単価:12,803 円(坪)
-
飯倉カムフィーホームズ
東京都港区麻布台3-4-4
坪数:19.03 坪
坪単価:11,000 円(坪)
-
秀和六本木レジデンス
東京都港区六本木7-17-22
坪数:18.14 坪
坪単価:16,262 円(坪)
-
綿引ビル
東京都港区六本木5-9-13
坪数:13.48 坪
坪単価:13,353 円(坪)
-
プリンセスコート東麻布
東京都港区東麻布1-29-9
坪数:18.15 坪
坪単価:15,978 円(坪)
-
AR10
東京都港区麻布十番2-5-3
坪数:17.87 坪
坪単価:29,099 円(坪)
-
Kukai Terrace元麻布
東京都港区元麻布3-5-27
坪数:20.61 坪
坪単価:22,804 円(坪)