Rビル(物件No:12341619)
Rビルは港区南青山にある地下1階、地上3階建ての賃貸事務所です。最寄駅は東京メトロ銀座線の表参道駅から徒歩6分、東京メトロ千代田線の表参道駅から徒歩6分です。1987年竣工の鉄筋コンクリート造です。設備としては、エレベーターが1基、駐車場もあります。トイレは室内男女共用です。空調は個別空調です。床仕様はフリーアクセスです。耐震設計となっている、複数駅利用可能なアクセスの良い港区南青山の賃貸オフィスです。
-
物件情報
-
設備情報
- トイレ
- 室内男女共用
- 床
- フリーアクセス
- 空調
- 個別空調
- セキュリティ
- -
- 駐車場
- 有
- 会議室
- -
- エレベーター
- 1基
- 天井高
- -
-
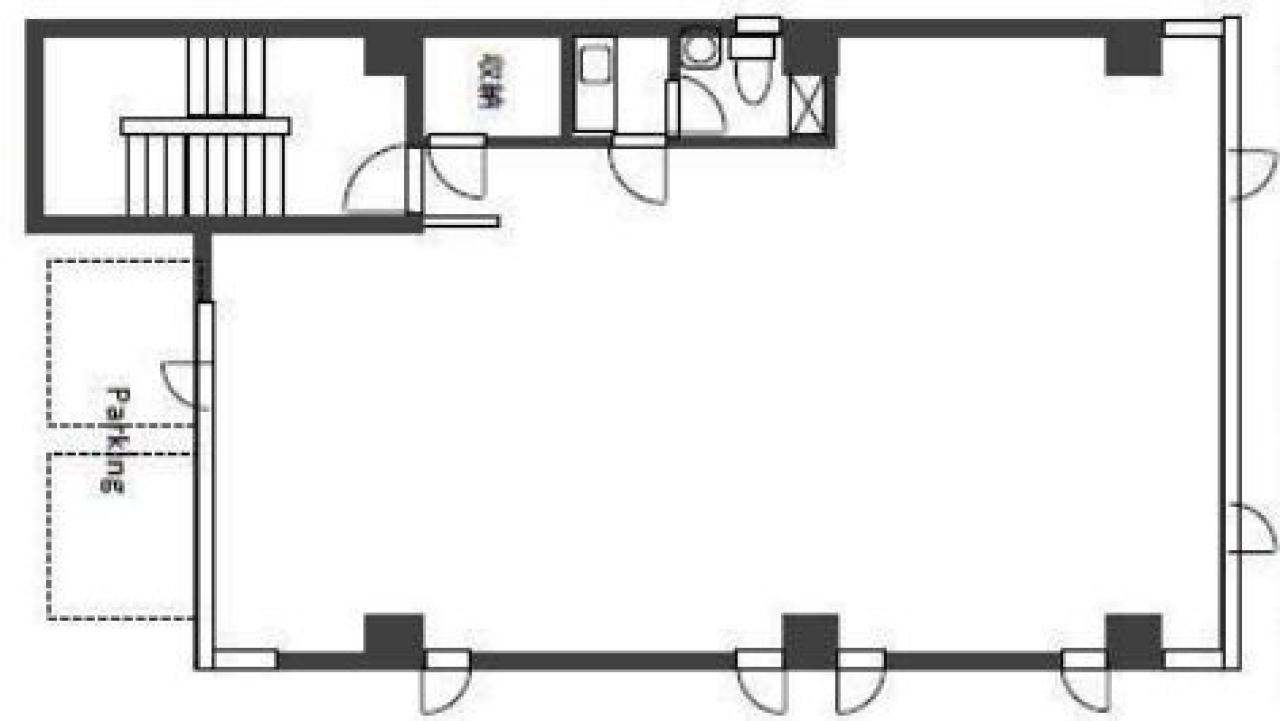
間取り図
-
近隣相場情報
南青山4丁目(20~30坪)の相場
20211 円 (坪)
※ビルサク調べ
周辺施設情報
| コンビニ |
ファミリーマート/南青山四丁目店/600m(徒歩8分) ローソン/ナチュラル 港日赤通り/1000m(徒歩13分) |
|---|---|
| 郵便局/銀行 |
三菱UFJ銀行/ATM 西麻布交差点/[営業時間] [ATM]平日 7:00~24:00 土曜日 7:00~24:00 日・祝日 7:00~24:00 *毎月第2土曜日の21:00~翌朝7:00はご利用いただけません/650m(徒歩7分) りそな銀行/ATM 東京メトロ表参道駅出張所/[営業時間]全日/5:00~24:00 ※毎月第二土曜日23:00~翌日8:00はご利用になれません/650m(徒歩9分) |
| 飲食店 |
たまさか/12時00分~15時00分、18時00分~23時30分/260m(徒歩3分) 宮坂/18時00分~20時00分/150m(徒歩2分) |
| カフェ |
Cafe Kitsune Aoyama/9時00分~20時00分/450m(徒歩5分) Nicolai Bergmann Nomu/10時00分~18時00分/350m(徒歩4分) |
| コインパーキング |
タイムズ駐車場/南青山5丁目第3 [料金] [全日]通常料金 / 00:00-00:00 10分 400円 [最大料金] [全日]22:00-06:00 最大料金600円 [台数]3 NPC24H/南青山 [料金] 12分/300円(8時~22時) 30分/100円(22時~8時) [最大料金] 最大料金 3時間毎 2400円 全日夜間 500円(22時~8時) [台数]3台 |
周辺地図
Rビルは港区南青山にある地下1階、地上3階建ての賃貸事務所です。最寄駅は東京メトロ銀座線の表参道駅から徒歩6分、東京メトロ千代田線の表参道駅から徒歩6分です。1987年竣工の鉄筋コンクリート造です。設備としては、エレベーターが1基、駐車場もあります。トイレは室内男女共用です。空調は個別空調です。床仕様はフリーアクセスです。耐震設計となっている、複数駅利用可能なアクセスの良い港区南青山の賃貸オフィスです。
全フロア情報
更新日:2025年12月26日
| 階 | 面積 | 賃料 | 共益費 | 敷金 | 入居日 | お問合せ | お気に入り | |
|---|---|---|---|---|---|---|---|---|
| B1F |
20.12 坪 66.51 ㎡ |
※現在空室情報はございません |
※現在空室情報は 確認する |
|||||
| 2F |
28.28 坪 93.48 ㎡ |
※現在空室情報はございません |
※現在空室情報は 確認する |
|||||
お問い合わせ
似た条件の物件はこちら
-
南青山KFKビル
東京都南青山2-14-14
坪数:28.4 坪
坪単価:11,396 円(坪)
-
たつむら青山マンション(青南吉川興産ビル)
東京都港区南青山5-4-35
坪数:21.29 坪
坪単価:21,982 円(坪)
-
KSビル
東京都港区南青山6-2-9
坪数:20.61 坪
坪単価:23,011 円(坪)
-
越山ビル
東京都港区南青山1-15-2
坪数:34.04 坪
坪単価:16,980 円(坪)
-
バルビゾン104
東京都港区南青山5-4-27
坪数:29.51 坪
坪単価:20,332 円(坪)
-
南青山ユニハイツ
東京都港区南青山6-12-3
坪数:18.31 坪
坪単価:18,569 円(坪)
-
G-FRONT AOYAMA
東京都港区北青山2-12-15
坪数:26 坪
坪単価:29,002 円(坪)
-
神宮外苑ビル
東京都港区北青山2-7-25
坪数:32.78 坪
坪単価:23,707 円(坪)
-
ARISTO南青山Ⅱ
東京都港区南青山2-5-9
坪数:32.07 坪
坪単価:30,000 円(坪)
-
南青山セピアコート
東京都港区南青山6-8-3
坪数:18.09 坪
坪単価:21,006 円(坪)