小宮山ビル(物件No:12138567)
小宮山ビルは新宿区新小川町にある地上5階建ての賃貸事務所です。最寄駅は都営大江戸線の飯田橋駅から徒歩5分、JR中央・総武線の飯田橋駅から徒歩7分です。1980年5月竣工の基準階面積が31.5坪の鉄筋コンクリート造です。設備としてはエレベーターが1基あり、空調は個別空調です。耐震性は旧耐震となっている、複数路線利用可能な新宿区新小川町の賃貸オフィスです。
| 階 | 面積 | 賃料 | 共益費 | 敷金 | 入居日 | お問合せ | お気に入り |
|---|---|---|---|---|---|---|---|
|
3F
(302区画) |
15.71 坪 51.93 ㎡ |
157,100 円 10,000 円(坪) |
込 |
471,300 円 3 ヶ月 |
即日 |
|
|
| 階 | 面積 | 賃料 | 共益費 | 敷金 | 入居日 | お問合せ | お気に入り |
|---|---|---|---|---|---|---|---|
|
3F
(302区画) |
15.71 坪 51.93 ㎡ |
157,100 円 10,000 円(坪) |
込 |
471,300 円 3 ヶ月 |
即日 |
|
|
-
物件情報
-
設備情報
- トイレ
- -
- 床
- -
- 空調
- 個別空調
- セキュリティ
- -
- 駐車場
- -
- 会議室
- -
- エレベーター
- 1基
- 天井高
- -
-
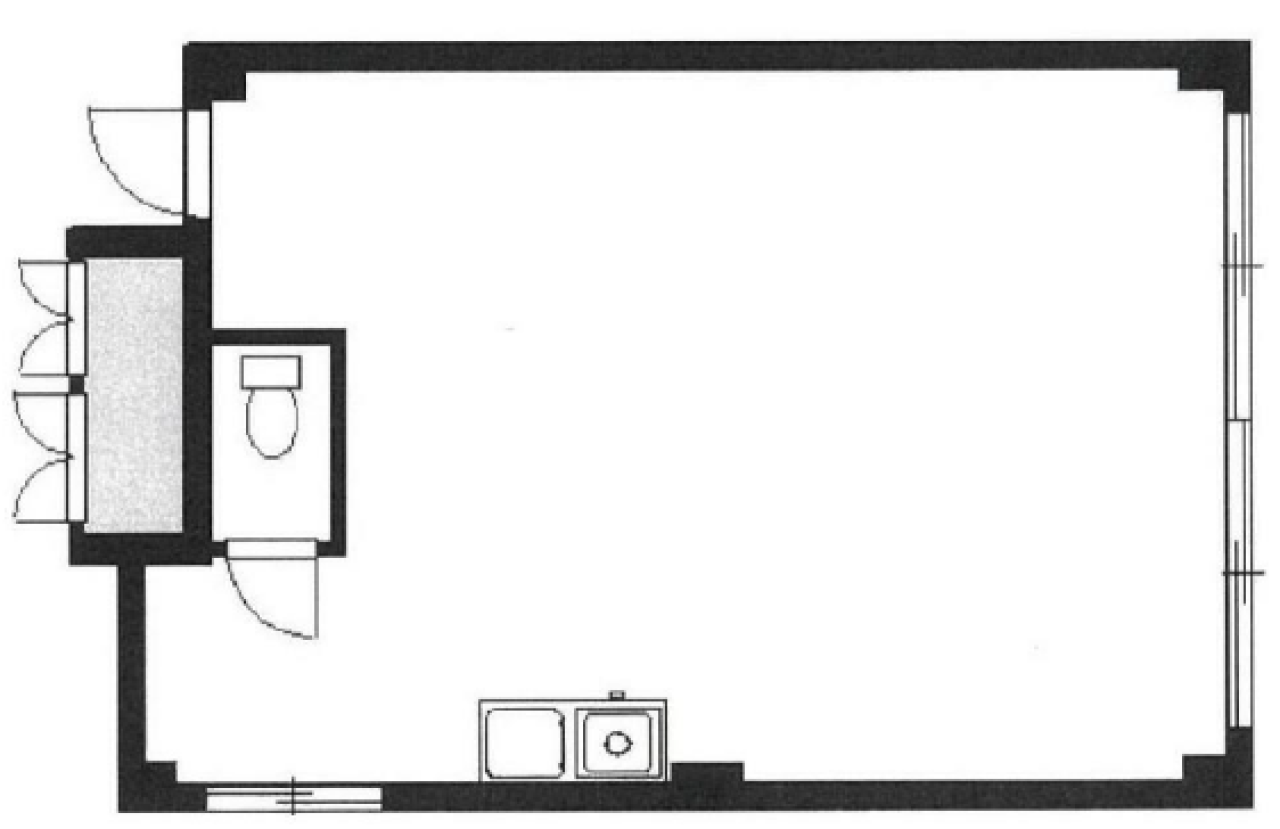
間取り図
-
近隣相場情報
新小川町5丁目(20坪以下)の相場
10000 円 (坪)
※ビルサク調べ
周辺施設情報
| コンビニ |
ローソン/四谷一丁目/220m(徒歩3分) ファミリーマート/四谷二丁目店/53m(徒歩1分) |
|---|---|
| 郵便局/銀行 |
ローソン銀行/四谷一丁目共同出張所/[営業時間]24時間/220m(徒歩3分) イーネット/ファミリーマート四谷二丁目/[営業時間]0:00~24:00/53m(徒歩1分) |
| 飲食店 |
ジャスミン タイ 四ツ谷店/11時30分~15時00分 17時00分~23時00分/150m(徒歩2分) 特選黒毛和牛専門店 薩摩 うしのくら 四谷店/11時30分~14時00分 17時00分~22時00分/90m(徒歩1分) |
| カフェ |
モリバコーヒー/四谷二丁目店/[営業時間]月~金 6:30~22:00 土 7:00~22:00 日祝 7:00~21:30/350m(徒歩5分) ドトール/四谷1丁目南店/[営業時間]平日 7:00~21:30 土曜 7:30~21:00 日祝 8:00~21:00/110m(徒歩1分) |
| コインパーキング |
タイムズ/三栄町第4 [料金] [月~土]通常料金 / 0:00~0:00 10分 220円 [日・祝]通常料金 / 0:00~0:00 10分 220円 [最大料金] [月~土]9:00~19:00 最大料金3300円 19:00~9:00 最大料金550円 [日・祝]9:00~19:00 最大料金1650円 19:00~9:00 最大料金550円 [台数]2 コインパーク/メインステージ四ツ谷 [料金] [料金]【月~土】■通常料金【0:00~24:00】20分/400円 【日祝】■通常料金【0:00~24:00】20分/400円 [最大料金] [料金]【月~土】 ■最大料金【20:00~8:00】300円 【日祝】 ■最大料金【駐車後3時間以内(1回限り)】1200円【20:00~8:00】300円 [台数] [車: 1台] |
周辺地図
小宮山ビルは新宿区新小川町にある地上5階建ての賃貸事務所です。最寄駅は都営大江戸線の飯田橋駅から徒歩5分、JR中央・総武線の飯田橋駅から徒歩7分です。1980年5月竣工の基準階面積が31.5坪の鉄筋コンクリート造です。設備としてはエレベーターが1基あり、空調は個別空調です。耐震性は旧耐震となっている、複数路線利用可能な新宿区新小川町の賃貸オフィスです。
全フロア情報
更新日:2025年12月10日
| 階 | 面積 | 賃料 | 共益費 | 敷金 | 入居日 | お問合せ | お気に入り | |
|---|---|---|---|---|---|---|---|---|
| 2F |
32.96 坪 108.96 ㎡ |
※現在空室情報はございません |
※現在空室情報は 確認する |
|||||
|
3F
(302区画) |
15.71 坪 51.93 ㎡ |
157,100 円 10,000 円(坪) |
込 |
471,300 円 3 ヶ月 |
即日 |
|
|
|
お問い合わせ
似た条件の物件はこちら
-
Y-1ビル
東京都新宿区山吹町353-1
坪数:18.20 坪
坪単価:9,505 円(坪)
-
ESCALIER神楽坂
東京都新宿区西五軒町12-10
坪数:17.45 坪
坪単価:51,576 円(坪)
-
ハイポイントビル
東京都新宿区神楽坂3-1-17
坪数:16.92 坪
坪単価:12,057 円(坪)
-
末よしビル別館
東京都新宿区神楽坂2-13
坪数:12 坪
坪単価:13,333 円(坪)
-
シャトレ市ヶ谷
東京都新宿区富久町11-5
坪数:17.82 坪
坪単価:20,921 円(坪)
-
シティマンション新宿
東京都新宿区余丁町9-7
坪数:17.69 坪
坪単価:33,917 円(坪)
-
パルセ富久
東京都新宿区富久町16-12
坪数:17.21 坪
坪単価:9,006 円(坪)
-
GranDuo神楽坂Ⅱ
東京都新宿区北山伏町1-32
坪数:16.94 坪
坪単価:13,872 円(坪)
-
神楽坂中島ビル
東京都新宿区神楽坂6-38
坪数:12.9 坪
坪単価:12,000 円(坪)
関連エリアから探す
- 赤城下町
- 市谷加賀町
- 揚場町
- 河田町
- 市谷砂土原町
- 市谷左内町
- 市谷田町
- 市谷台町
- 市谷長延寺町
- 市谷仲之町
- 市谷八幡町
- 市谷船河原町
- 市谷本村町
- 市谷薬王寺町
- 市谷柳町
- 市谷山伏町
- 岩戸町
- 榎町
- 改代町
- 神楽河岸
- 神楽坂
- 北町
- 北山伏町
- 細工町
- 下宮比町
- 白銀町
- 新小川町
- 水道町
- 箪笥町
- 築地町
- 筑土八幡町
- 津久戸町
- 天神町
- 富久町
- 中里町
- 中町
- 納戸町
- 西五軒町
- 二十騎町
- 払方町
- 東榎町
- 東五軒町
- 袋町
- 南町
- 南山伏町
- 山吹町
- 矢来町
- 横寺町
- 余丁町
- 住吉町