KR GINZAⅡ(物件No:11989123)
東急銀座二丁目ビルは中央区銀座にある地下1階、地上8階建ての賃貸事務所です。最寄駅は東京メトロ有楽町線の新富町駅から徒歩4分、JR線の有楽町駅から徒歩10分、東京メトロ銀座線の銀座駅から徒歩8分、東京メトロ日比谷線の東銀座駅から徒歩5分、都営浅草線の東銀座駅から徒歩5分です。2008年9月竣工の基準階面積が132.13坪の鉄骨造です。設備としては、エレベーターが2基あり、駐車場もあります。警備は機械警備です。トイレは男女別です。空調は個別空調です。床仕様はフリーアクセスです。天高は2700mmです。耐震設計となっている、複数路線利用可能でアクセスの良い中央区銀座の賃貸オフィスです。
-
物件情報
-
設備情報
- トイレ
- 室外男女別
- 床
- フリーアクセス
- 空調
- 個別空調
- セキュリティ
- 有
- 駐車場
- 有
- 会議室
- -
- エレベーター
- 2基
- 天井高
- 2700mm
-
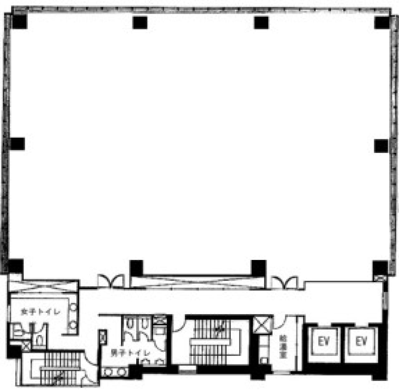
間取り図
-
近隣相場情報
銀座2丁目(100坪以上)の相場
38666 円 (坪)
※ビルサク調べ
周辺施設情報
| コンビニ |
セブンイレブン/銀座2丁目/1m(徒歩1分) セブンイレブン/中央区役所前/140m(徒歩3分) |
|---|---|
| 郵便局/銀行 |
セブン銀行/銀座2丁目店/[営業時間]24時間営業 [備考]1 台/1m(徒歩1分) セブン銀行/中央区役所前店/[営業時間]24時間営業/140m(徒歩3分) |
| 飲食店 |
銀塩(GINSHIO)/17時00分~0時00分/26m(徒歩1分) ぎんざ 一二岐/11時30分~14時10分 18時00分~23時00分/47m(徒歩1分) |
| カフェ |
スワン/カフェ銀座店/[営業時間]月~金曜 11:30~23:00/土曜 11:30~18:00/180m(徒歩2分) スワン/ベーカリー銀座店/[営業時間]月~金曜 7:30~19:00/土曜 9:00~17:00 [休業日]日曜・祝祭日/180m(徒歩2分) |
| コインパーキング |
タイムズ駐車場/銀座2丁目第3 [料金] 通常料金 / 8:00~0:00 20分 500円 0:00~8:00 30分 100円 [台数]5 三井のリパーク/銀座2丁目第4 [料金] [料金]全日 08:00~00:00 12分/300円、全日 00:00~08:00 60分/100円 [最大料金] 最大料金 【全日】最大料金入庫後6時間以内4500円 [台数]3 |
周辺地図
東急銀座二丁目ビルは中央区銀座にある地下1階、地上8階建ての賃貸事務所です。最寄駅は東京メトロ有楽町線の新富町駅から徒歩4分、JR線の有楽町駅から徒歩10分、東京メトロ銀座線の銀座駅から徒歩8分、東京メトロ日比谷線の東銀座駅から徒歩5分、都営浅草線の東銀座駅から徒歩5分です。2008年9月竣工の基準階面積が132.13坪の鉄骨造です。設備としては、エレベーターが2基あり、駐車場もあります。警備は機械警備です。トイレは男女別です。空調は個別空調です。床仕様はフリーアクセスです。天高は2700mmです。耐震設計となっている、複数路線利用可能でアクセスの良い中央区銀座の賃貸オフィスです。
全フロア情報
更新日:2026年3月10日
| 階 | 面積 | 賃料 | 共益費 | 敷金 | 入居日 | お問合せ | お気に入り | |
|---|---|---|---|---|---|---|---|---|
| B1F |
54.46 坪 180.03 ㎡ |
※現在空室情報はございません |
※現在空室情報は 確認する |
|||||
| 4F |
157.44 坪 520.46 ㎡ |
相談 |
込 |
8ヶ月 |
2026/03 |
|
|
|
| 5F |
157.45 坪 520.48 ㎡ |
※現在空室情報はございません |
※現在空室情報は 確認する |
|||||
| 6F |
132.13 坪 436.79 ㎡ |
※現在空室情報はございません |
※現在空室情報は 確認する |
|||||
|
6F
(A区画) |
66.13 坪 218.61 ㎡ |
※現在空室情報はございません |
※現在空室情報は 確認する |
|||||
|
6F
(B区画) |
66 坪 218.18 ㎡ |
※現在空室情報はございません |
※現在空室情報は 確認する |
|||||
| 7F |
132.13 坪 436.79 ㎡ |
※現在空室情報はございません |
※現在空室情報は 確認する |
|||||
| 8F |
132.13 坪 436.79 ㎡ |
※現在空室情報はございません |
※現在空室情報は 確認する |
|||||
お問い合わせ
似た条件の物件はこちら
-
東貨ビル
東京都中央区銀座1-16-1
坪数:104.43 坪
坪単価:20,500 円(坪)
-
中島商事ビル
東京都中央区銀座8-5-6
坪数:120 坪
坪単価:30,000 円(坪)
-
銀座木挽ビル
東京都中央区銀座7-16-21
坪数:136.39 坪
坪単価:22,000 円(坪)
-
東京高速道路 北数寄屋ビル
東京都中央区銀座4-1
坪数:131.3 坪
坪単価:25,000 円(坪)
-
銀座菊地ビル
東京都中央区銀座7-13-15
坪数:112.86 坪
坪単価:11,000 円(坪)
-
松岡銀七ビル
東京都中央区銀座7-17-14
坪数:132.23 坪
坪単価:14,000 円(坪)
-
GINZA MISS PARIS
東京都中央区銀座5-10-2
坪数:106.71 坪
坪単価:35,000 円(坪)
-
マルイト銀座ビル
東京都中央区銀座1-3-9
坪数:107.55 坪
坪単価:31,600 円(坪)