利根川第2ビル(物件No:11987106)
利根川第2ビルは、文京区湯島にある貸事務所物件です。最寄駅は、JR、東京メトロ丸ノ内線御茶ノ水駅、千代田線新御茶ノ水駅、銀座線末広町駅です。1973年竣工で基準階が48.76坪の賃貸オフィスビルです。床はOAフロアで、天井の高さは2540mm。トイレは室内男女別で、空調は個別空調です。エレベーターは1基あり、セキュリティは機械警備となっています。駐車場が利用可能です。複数路線利用可能で交通アクセスの良い、文京区湯島の貸事務所です。
-
物件情報
-
設備情報
- トイレ
- 室内男女別
- 床
- -
- 空調
- 個別空調
- セキュリティ
- 有
- 駐車場
- 有
- 会議室
- -
- エレベーター
- 1基
- 天井高
- 2540mm
-
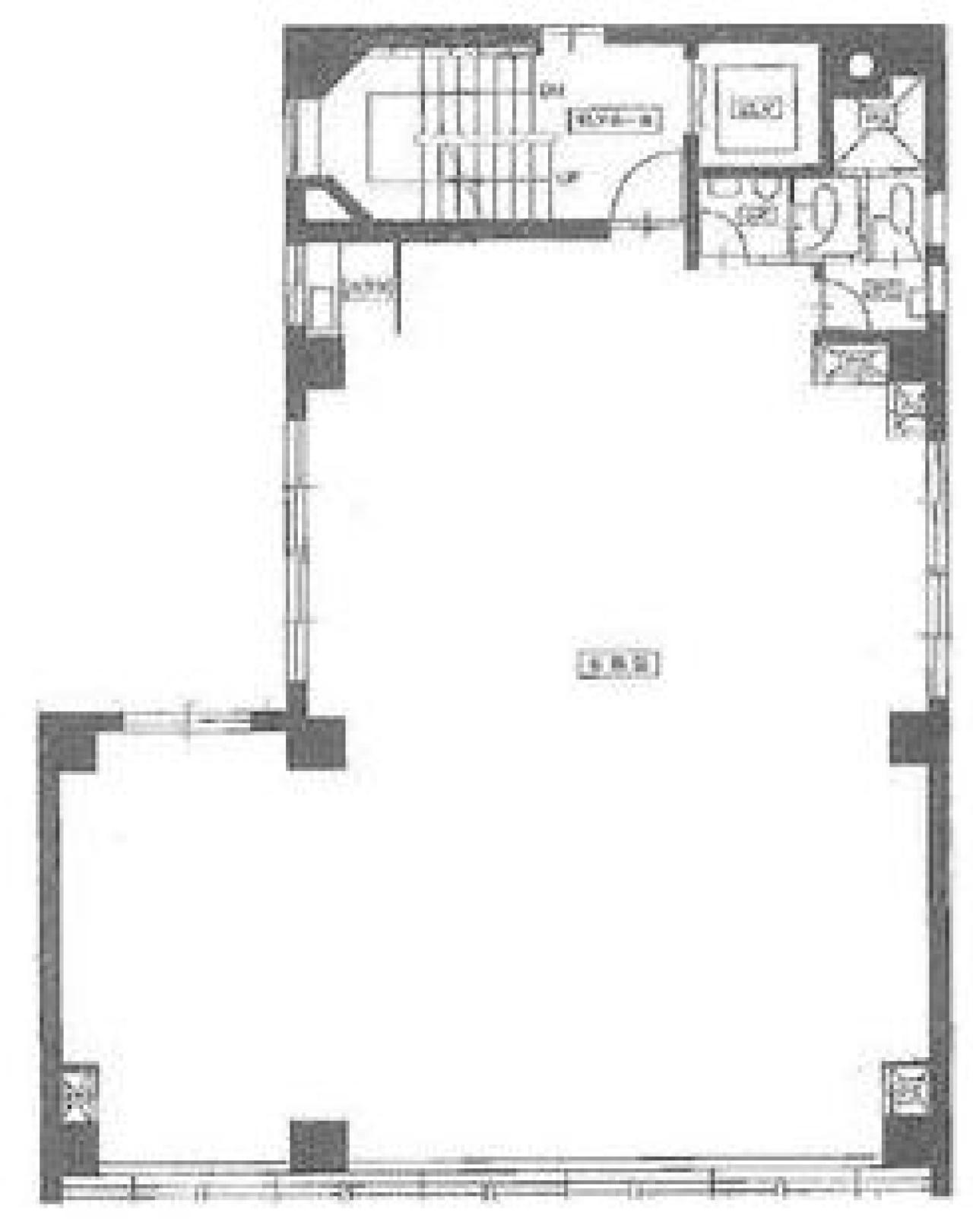
間取り図
-
近隣相場情報
湯島1丁目(40~50坪)の相場
13750 円 (坪)
※ビルサク調べ
周辺施設情報
| コンビニ |
ファミリーマート 御茶ノ水駅前店/550m(徒歩7分) ローソン 御茶ノ水/300m(徒歩4分) |
|---|---|
| 郵便局/銀行 |
イオン銀行 ATM ウエルシア千代田御茶ノ水店出張所/[営業時間]8:00~21:00/300m(徒歩4分) ゆうちょ ATM 本店 ファミリーマート清水坂下店内出張所/[営業時間] [ATM]平日 0:05~23:55 土曜日 0:05~23:55 日曜日・休日 0:05~23:55 [駐車場]なし [取扱]ATM/カードATM [備考]海外発行カードによる現金引き出しサービスにおいて、16言語でご利用いただけます/150m(徒歩2分) |
| 飲食店 |
神田小松屋/11時30分~15時00分 17時30分~21時00分/290m(徒歩4分) いなり寿司 みやび 門前店/11時30分~17時00分/350m(徒歩5分) |
| カフェ |
エクセルシオール カフェ お茶の水店/6時45分~22時00分/550m(徒歩8分) スターバックス 御茶ノ水ソラシティ店/[営業時間]月~金:7:00~21:00 土日祝:9:00~20:00 [休業日]不定休 [備考]無線LAN:STARBUCKS docomo Softbank Wi2 300/450m(徒歩6分) |
| コインパーキング |
タイムズ 本郷第17 [料金] 7:00~22:00 15分 440円 22:00~7:00 60分 110円 [台数]3台 ナビパーク 湯島第4 [料金] 全曜日 8:00~20:00 10分/300円 全曜日 20:00~8:00 60分/100円 [最大料金] 夜間最大(全曜日)20:00~8:00 500円 12時間最大(全曜日)3,800円 繰返し有 [台数]4台 |
周辺地図
利根川第2ビルは、文京区湯島にある貸事務所物件です。最寄駅は、JR、東京メトロ丸ノ内線御茶ノ水駅、千代田線新御茶ノ水駅、銀座線末広町駅です。1973年竣工で基準階が48.76坪の賃貸オフィスビルです。床はOAフロアで、天井の高さは2540mm。トイレは室内男女別で、空調は個別空調です。エレベーターは1基あり、セキュリティは機械警備となっています。駐車場が利用可能です。複数路線利用可能で交通アクセスの良い、文京区湯島の貸事務所です。
全フロア情報
更新日:2025年12月9日
| 階 | 面積 | 賃料 | 共益費 | 敷金 | 入居日 | お問合せ | お気に入り | |
|---|---|---|---|---|---|---|---|---|
| 4F |
48.76 坪 161.19 ㎡ |
※現在空室情報はございません |
※現在空室情報は 確認する |
|||||
| 6F |
48.76 坪 161.19 ㎡ |
※現在空室情報はございません |
※現在空室情報は 確認する |
|||||
| 7F |
48.76 坪 161.19 ㎡ |
487,600 円 10,000 円(坪) |
97,520 円 2,000 円(坪) |
2,925,600 円 6 ヶ月 |
2026/4 |
|
|
|
お問い合わせ
似た条件の物件はこちら
-
後楽1丁目ビル
東京都文京区後楽1-2-8
坪数:39.33 坪
坪単価:21,994 円(坪)
-
御茶ノ水天神ビル
東京都文京区湯島3-2-12
坪数:49.41 坪
坪単価:12,500 円(坪)
-
SHINO33BLDG
東京都文京区目白台3-25-14
坪数:44.57 坪
坪単価:17,603 円(坪)
-
南江堂ビル
東京都文京区本郷3-42-6
坪数:48.06 坪
坪単価:15,000 円(坪)
-
ITP本郷オフィス
東京都文京区湯島2-25-7
坪数:53.51 坪
坪単価:14,000 円(坪)
-
本郷弓町ビル
東京都文京区本郷2-38-4
坪数:53.73 坪
坪単価:11,500 円(坪)
-
IS弓町ビル
東京都文京区本郷1-28-24
坪数:57.24 坪
坪単価:11,500 円(坪)
-
ICNビル
東京都文京区本郷2-27-17
坪数:39.46 坪
坪単価:25,000 円(坪)
-
赤嶺ビル
東京都文京区水道1-8-8
坪数:39.83 坪
坪単価:12,553 円(坪)