池袋デュープレックスビズ(物件No:11981128)
池袋デュープレックスビズは、豊島区池袋にある貸事務所物件です。最寄り駅は、JR線、東武東上線、東京メトロ副都心線、東京メトロ丸ノ内線、東京メトロ有楽町線の池袋駅、東京メトロ副都心線、東京メトロ有楽町線の要町駅です。2008年竣工で、基準階が110.27坪の賃貸オフィスビルです。天高は2700mmで、床はOAフロアとなっております。空調は個別空調で、トイレは男女別です。有人警備、機械警備があり、エレベーターは2基あります。駐車場があり、複数路線利用可能な、アクセスの良い豊島区池袋の貸事務所です。
- 
                    
物件情報
 - 
                        
設備情報
- トイレ
 - 男女別
 - 床
 - フリーアクセス
 - 空調
 - 個別空調
 - セキュリティ
 - 有
 - 駐車場
 - 有
 - 会議室
 - -
 - エレベーター
 - 2基
 - 天井高
 - 2700mm
 
 - 
                        
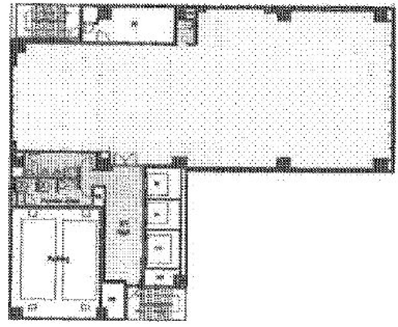
間取り図
 - 
                    
近隣相場情報
池袋2丁目(50~100坪)の相場
16097 円 (坪)
※ビルサク調べ 
周辺施設情報
| コンビニ | 
                                                                                                                     ローソン/池袋二丁目/200m(徒歩2分) セブンイレブン/池袋西一番街中央通り/250m(徒歩4分)  | 
                
|---|---|
| 郵便局/銀行 | 
                                                                                                                     西京信用金庫/池袋支店/350m(徒歩5分) セブン銀行/東京メトロ 副都心線 池袋駅/[営業時間]5:00~24:00 [備考]1 台/400m(徒歩5分)  | 
                
| 飲食店 | 
                                                                                                                     サクラカフェ&レストラン池袋/7時00分~23時00分/100m(徒歩1分) 玄品 池袋 ふぐ・うなぎ・かに料理/12時00分~22時30分/97m(徒歩2分)  | 
                
| カフェ | 
                                                                                                                     星乃珈琲店/池袋東武ホープセンター店/[営業時間]8:00~22:00(LO 21:15)モーニング Open~11:00 ランチ(平日)11:00~14:00 [備考]禁煙/450m(徒歩6分) クリスピークリーム/エチカ池袋店/[営業時間]10:00~21:00/300m(徒歩4分)  | 
                
| コインパーキング | 
                                                                                     タイムズ/池袋第12 [料金] [月~土]通常料金 8:00~2:00 20分 440円 2:00~8:00 30分 110円 [日・祝]通常料金 8:00~2:00 20分 440円 2:00~8:00 30分 110円 [最大料金] [月~土]最大料金(繰り返し適用)- [日・祝]最大料金(繰り返し適用)当日1日最大料金2200円(24時迄) [台数]3台 NPC24H/池袋ロサ [料金] 全日 8:00~18:00 300円/15分 全日 18:00~8:00 200円/60分 [最大料金] 全日 区間最大 8:00~18:00/2400円 全日 区間最大 18:00~8:00/1400円 [台数]15台  | 
                
周辺地図
池袋デュープレックスビズは、豊島区池袋にある貸事務所物件です。最寄り駅は、JR線、東武東上線、東京メトロ副都心線、東京メトロ丸ノ内線、東京メトロ有楽町線の池袋駅、東京メトロ副都心線、東京メトロ有楽町線の要町駅です。2008年竣工で、基準階が110.27坪の賃貸オフィスビルです。天高は2700mmで、床はOAフロアとなっております。空調は個別空調で、トイレは男女別です。有人警備、機械警備があり、エレベーターは2基あります。駐車場があり、複数路線利用可能な、アクセスの良い豊島区池袋の貸事務所です。
全フロア情報
更新日:2022年6月16日
| 階 | 面積 | 賃料 | 共益費 | 敷金 | 入居日 | お問合せ | お気に入り | |
|---|---|---|---|---|---|---|---|---|
| 1-2F | 
             128.41 坪 424.50 ㎡  | 
                    ※現在空室情報はございません | 
                 ※現在空室情報は 確認する  | 
            |||||
| 2F | 
             85.91 坪 284.00 ㎡  | 
                    ※現在空室情報はございません | 
                 ※現在空室情報は 確認する  | 
            |||||
| 4F | 
             116.02 坪 383.54 ㎡  | 
                    ※現在空室情報はございません | 
                 ※現在空室情報は 確認する  | 
            |||||
| 5F | 
             95.36 坪 315.24 ㎡  | 
                    ※現在空室情報はございません | 
                 ※現在空室情報は 確認する  | 
            |||||
| 6F | 
             95.36 坪 315.24 ㎡  | 
                    ※現在空室情報はございません | 
                 ※現在空室情報は 確認する  | 
            |||||
| 7F | 
             95.36 坪 315.24 ㎡  | 
                    ※現在空室情報はございません | 
                 ※現在空室情報は 確認する  | 
            |||||
| 8F | 
             95.36 坪 315.24 ㎡  | 
                    ※現在空室情報はございません | 
                 ※現在空室情報は 確認する  | 
            |||||
| 9F | 
             95.36 坪 315.24 ㎡  | 
                    ※現在空室情報はございません | 
                 ※現在空室情報は 確認する  | 
            |||||
| 12F | 
             110.27 坪 364.53 ㎡  | 
                    ※現在空室情報はございません | 
                 ※現在空室情報は 確認する  | 
            |||||
| 13F | 
             110.27 坪 364.53 ㎡  | 
                    ※現在空室情報はございません | 
                 ※現在空室情報は 確認する  | 
            |||||
| 14F | 
             110.27 坪 364.53 ㎡  | 
                    ※現在空室情報はございません | 
                 ※現在空室情報は 確認する  | 
            |||||
お問い合わせ
似た条件の物件はこちら
- 
                    
                        
大河内ビル
東京都豊島区池袋2-52-8
坪数:102 坪
坪単価:10,215 円(坪)
 - 
                    
                        
タカセセントラルビル
東京都豊島区東池袋1-1-4
坪数:76.34 坪
坪単価:23,000 円(坪)
 - 
                    
                        
オリックス池袋ビル
東京都豊島区南池袋1-19-6
坪数:85.78 坪
坪単価:30,000 円(坪)
 - 
                    
                        
千早2丁目一棟貸事務所
東京都豊島区千早2-30-11
坪数:96.69 坪
坪単価:12,411 円(坪)
 - 
                    
                        
藤久ビル西2号館
東京都豊島区西池袋3-28-1
坪数:76.42 坪
坪単価:15,000 円(坪)
 - 
                    
                        
光ビル
東京都豊島区長崎1-17-8
坪数:75.9 坪
坪単価:10,780 円(坪)
 - 
                    
                        
タカセビル本館
東京都豊島区東池袋1-25-8
坪数:104.6 坪
坪単価:16,000 円(坪)
 - 
                    
                        
東信東池袋ビル
東京都豊島区東池袋5-44-15
坪数:76.14 坪
坪単価:12,000 円(坪)
 - 
                    
                        
三経33ビル
東京都豊島区東池袋1-4-2
坪数:81.73 坪
坪単価:48,000 円(坪)