銀座セントラルビル(物件No:11889132)
銀座セントラルビルは、中央区銀座にある貸事務所物件で、最寄り駅は地下鉄各線の東銀座駅です。1988年竣工の物件で、1フロア75坪ほどの賃貸オフィスビルです。新耐震に適合しており、EVの数は2基。駐車場があり、セキュリティは機械警備です。トイレは男女別。他に銀座駅、銀座一丁目駅も利用可能な中央区銀座の貸事務所です。
-
物件情報
-
設備情報
- トイレ
- 室外男女別
- 床
- -
- 空調
- 個別空調
- セキュリティ
- 有
- 駐車場
- 有
- 会議室
- -
- エレベーター
- 2基
- 天井高
- 2500mm
-
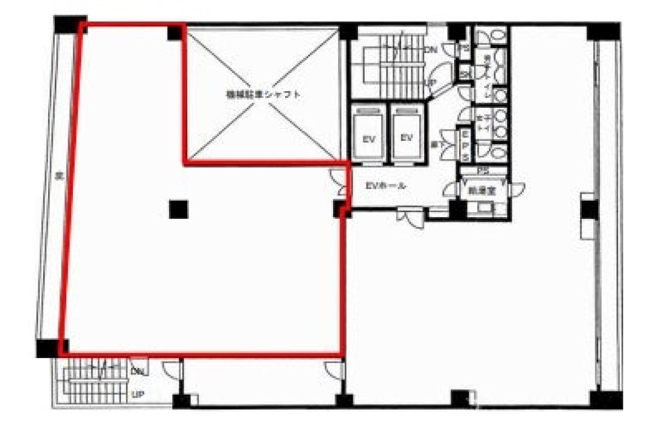
間取り図
-
近隣相場情報
銀座4丁目(30~40坪)の相場
30000 円 (坪)
※ビルサク調べ
周辺施設情報
| コンビニ |
ファミリーマート/銀座松屋通り店/49m(徒歩1分) ローソン/銀座四丁目昭和通/64m(徒歩1分) |
|---|---|
| 郵便局/銀行 |
東和銀行/東京支店/[営業時間]窓口 平日 (銀行休業日を除く) 9:00-15:00/85m(徒歩1分) みずほ銀行/ATM ミニストップピーアーク銀座店出張所/[営業時間]ATM 平日 /Monday - Friday 7:00~23:00 土曜日/Saturday 7:00~22:00 日曜日/Sunday 8:00~23:00/190m(徒歩3分) |
| 飲食店 |
ANDRE/15時00分~1時00分/11m(徒歩1分) 一風堂 銀座店/11時00分~1時00分/1m(徒歩1分) |
| カフェ |
ドトール/銀座4丁目店/[営業時間]平 日:06:45 - 21:20 土曜日:07:00 - 20:00 日 祝:07:30 - 19:00/140m(徒歩2分) タリーズ/歌舞伎座店/[営業時間]平日:7:30~22:00(L.O.21:30) 土:8:00~22:00(L.O.21:30) 日祝:8:00~22:00(L.O.21:30)/130m(徒歩2分) |
| コインパーキング |
NPC24H/銀座2丁目 [料金] 通常料金 20分/500円 [最大料金] 最大料金 ※最大料金の設定はございません [台数]1台 トラストパーク/【ネットのみ予約可】ソラリア西鉄ホテル銀座 [料金] [料金]【時間料金】 20分300円 [最大料金] 【長時間サービス料金】 (08:00~23:00)最大1400円 【泊まり料金】 (営業時間外)最大1000円 |
周辺地図
銀座セントラルビルは、中央区銀座にある貸事務所物件で、最寄り駅は地下鉄各線の東銀座駅です。1988年竣工の物件で、1フロア75坪ほどの賃貸オフィスビルです。新耐震に適合しており、EVの数は2基。駐車場があり、セキュリティは機械警備です。トイレは男女別。他に銀座駅、銀座一丁目駅も利用可能な中央区銀座の貸事務所です。
全フロア情報
更新日:2026年3月4日
| 階 | 面積 | 賃料 | 共益費 | 敷金 | 入居日 | お問合せ | お気に入り | |
|---|---|---|---|---|---|---|---|---|
| 1-2F |
93.3 坪 308.43 ㎡ |
※現在空室情報はございません |
※現在空室情報は 確認する |
|||||
|
6F
(2区画) |
35.11 坪 116.07 ㎡ |
※現在空室情報はございません |
※現在空室情報は 確認する |
|||||
|
7F
(1区画) |
34.93 坪 115.47 ㎡ |
※現在空室情報はございません |
※現在空室情報は 確認する |
|||||
|
7F
(A区画) |
40.17 坪 132.79 ㎡ |
※現在空室情報はございません |
※現在空室情報は 確認する |
|||||
|
10F
(1区画) |
67.56 坪 223.34 ㎡ |
※現在空室情報はございません |
※現在空室情報は 確認する |
|||||
お問い合わせ
似た条件の物件はこちら
-
第五安田ビル
東京都中央区銀座7-15-2
坪数:41.7 坪
坪単価:11,000 円(坪)
-
第2五味ビル
東京都中央区銀座1-14-5
坪数:26 坪
坪単価:13,000 円(坪)
-
DEAR GINZA
東京都中央区銀座1-6-8
坪数:39.82 坪
坪単価:36,000 円(坪)
-
銀座朝日ビル
東京都中央区銀座3-8-10
坪数:36.33 坪
坪単価:26,000 円(坪)
-
銀座ワカホビル
東京都中央区銀座5-14-8
坪数:24 坪
坪単価:17,000 円(坪)
-
TRUST VALUE銀座一丁目Ⅱ
東京都中央区銀座1-22-9
坪数:25.36 坪
坪単価:22,279 円(坪)
-
銀座清和ビル
東京都中央区銀座1-20-5
坪数:26.16 坪
坪単価:13,795 円(坪)
-
塚本素山ビルディング
東京都中央区銀座4-2-15
坪数:38 坪
坪単価:27,000 円(坪)
-
マロニエ通り銀座館
東京都中央区銀座2-10-11
坪数:25.33 坪
坪単価:44,414 円(坪)
-
ライトビル
東京都中央区銀座2-12-3
坪数:38.04 坪
坪単価:16,000 円(坪)