青山外苑ビル(物件No:11888173)
青山外苑ビルは港区北青山にある地下1階、地上9階建ての貸店舗事務所です。最寄駅は東京メトロ銀座線の外苑前駅から徒歩2分、都営大江戸線の青山一丁目駅から徒歩8分、東京メトロ千代田線の表参道駅から徒歩11分です。1967年2月竣工の基準階面積が21.22坪の鉄骨鉄筋コンクリート造です。設備としては、エレベーターが1基あります。トイレは室内男女共用です。空調は個別空調です。床仕様はスケルトンです。天高は2850mmです。複数路線利用可能なアクセスの良い港区北青山の貸店舗事務所です。
-
物件情報
-
設備情報
- トイレ
- 室内男女共用
- 床
- -
- 空調
- -
- セキュリティ
- -
- 駐車場
- -
- 会議室
- -
- エレベーター
- 1基
- 天井高
- 2380mm
-
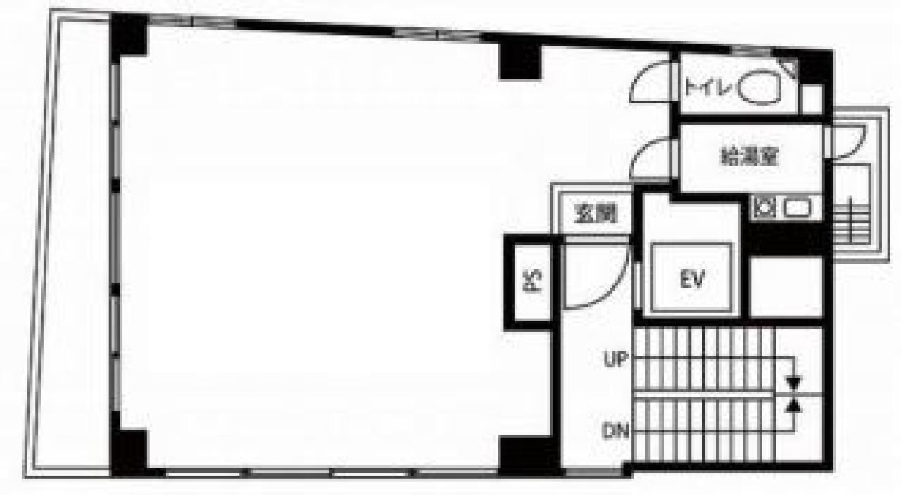
間取り図
-
近隣相場情報
北青山2丁目(20~30坪)の相場
29132 円 (坪)
※ビルサク調べ
周辺施設情報
| コンビニ |
ファミリーマート/神宮スタジアム通り店/10m(徒歩1分) デイリーヤマザキ/神宮前店/450m(徒歩6分) |
|---|---|
| 郵便局/銀行 |
イーネット/ファミリーマート伊藤忠ビル/[営業時間]6:30-21:00/350m(徒歩4分) 郵便局/ATM ファミリーマート外苑南青山二丁目店内出張所/[ATM]平日0:05~23:55、土曜0:05~23:55、日曜0:05~23:55/240m(徒歩3分) |
| 飲食店 |
串焼き 狄/[平日]Lunch 11:30~13:00、Dinner 17:00~24:00 (L.O.23:30) [土・日・祝日/56m(徒歩1分) かに漁師の家/11時30分~14時30分、17時30分~23時30分/130m(徒歩2分) |
| カフェ |
ベローチェ/外苑前店/[営業時間]7:00~23:00/20m(徒歩1分) プロント/外苑前店/[営業時間]平日:カフェ 7:00~17:30 バー 17:30~23:00 [休業日]土日祝 [備考]64席/分煙/350m(徒歩4分) |
| コインパーキング |
三井のリパーク/北青山2丁目第2 [料金] 全日 00:00~24:00 12分/300円 [台数]6 [料金] タイムズ駐車場/北青山TEPIA [料金] [全日]通常料金 / 00:00-00:00 15分 200円 [最大料金] [全日]駐車後5時間 最大料金2400円 [台数]30 |
周辺地図
青山外苑ビルは港区北青山にある地下1階、地上9階建ての貸店舗事務所です。最寄駅は東京メトロ銀座線の外苑前駅から徒歩2分、都営大江戸線の青山一丁目駅から徒歩8分、東京メトロ千代田線の表参道駅から徒歩11分です。1967年2月竣工の基準階面積が21.22坪の鉄骨鉄筋コンクリート造です。設備としては、エレベーターが1基あります。トイレは室内男女共用です。空調は個別空調です。床仕様はスケルトンです。天高は2850mmです。複数路線利用可能なアクセスの良い港区北青山の貸店舗事務所です。
全フロア情報
更新日:2025年12月24日
| 階 | 面積 | 賃料 | 共益費 | 敷金 | 入居日 | お問合せ | お気に入り | |
|---|---|---|---|---|---|---|---|---|
| 2F |
21.04 坪 69.55 ㎡ |
※現在空室情報はございません |
※現在空室情報は 確認する |
|||||
| 3F |
21.04 坪 69.55 ㎡ |
※現在空室情報はございません |
※現在空室情報は 確認する |
|||||
| 4F |
21.04 坪 69.55 ㎡ |
※現在空室情報はございません |
※現在空室情報は 確認する |
|||||
| 7F |
21.04 坪 69.55 ㎡ |
※現在空室情報はございません |
※現在空室情報は 確認する |
|||||
| 8F |
21.04 坪 69.55 ㎡ |
※現在空室情報はございません |
※現在空室情報は 確認する |
|||||
| 9F |
21.04 坪 69.55 ㎡ |
※現在空室情報はございません |
※現在空室情報は 確認する |
|||||
お問い合わせ
似た条件の物件はこちら
-
メゾン青山
東京都港区北青山2-7-26
坪数:18.75 坪
坪単価:20,267 円(坪)
-
たつむら青山マンション(青南吉川興産ビル)
東京都港区南青山5-4-35
坪数:21.29 坪
坪単価:21,982 円(坪)
-
KSビル
東京都港区南青山6-2-9
坪数:20.61 坪
坪単価:23,011 円(坪)
-
青山アレー
東京都港区南青山6-4-6
坪数:16.2 坪
坪単価:26,543 円(坪)
-
セントラル第二青山
東京都港区南青山4-1-1
坪数:20.09 坪
坪単価:15,630 円(坪)
-
南青山ユニハイツ
東京都港区南青山6-12-3
坪数:18.31 坪
坪単価:18,569 円(坪)
-
ティアック青山
東京都港区北青山3-10-21
坪数:16.52 坪
坪単価:22,397 円(坪)
-
リーラ乃木坂
東京都港区南青山1-15-18
坪数:17.2 坪
坪単価:18,000 円(坪)
-
南青山セピアコート
東京都港区南青山6-8-3
坪数:18.09 坪
坪単価:21,006 円(坪)
-
美松ビル
東京都港区南青山1-4-17
坪数:18.91 坪
坪単価:20,624 円(坪)