Daiwa新橋510ビル(物件No:11787194)
Daiwa新橋510ビルは、港区新橋にある貸事務所物件です。最寄り駅は都営三田線御成門駅、各線新橋駅です。1974年竣工で基準階が163.64坪の賃貸オフィスビルです。床はOAフロアで、天井の高さは2450mm。トイレは室外男女別で、空調は個別空調です。エレベーターは1基あり、セキュリティは機械警備となっています。駐車場が利用可能です。新橋駅周辺はたくさんの店舗が立ち並んでいます。また複数路線利用可能で交通アクセスが良く利便性の高い、港区新橋の貸事務所です。
-
物件情報
-
設備情報
- トイレ
- 室外男女別
- 床
- フリーアクセス
- 空調
- 個別空調
- セキュリティ
- 有
- 駐車場
- 有
- 会議室
- -
- エレベーター
- 1基
- 天井高
- 2450mm
-
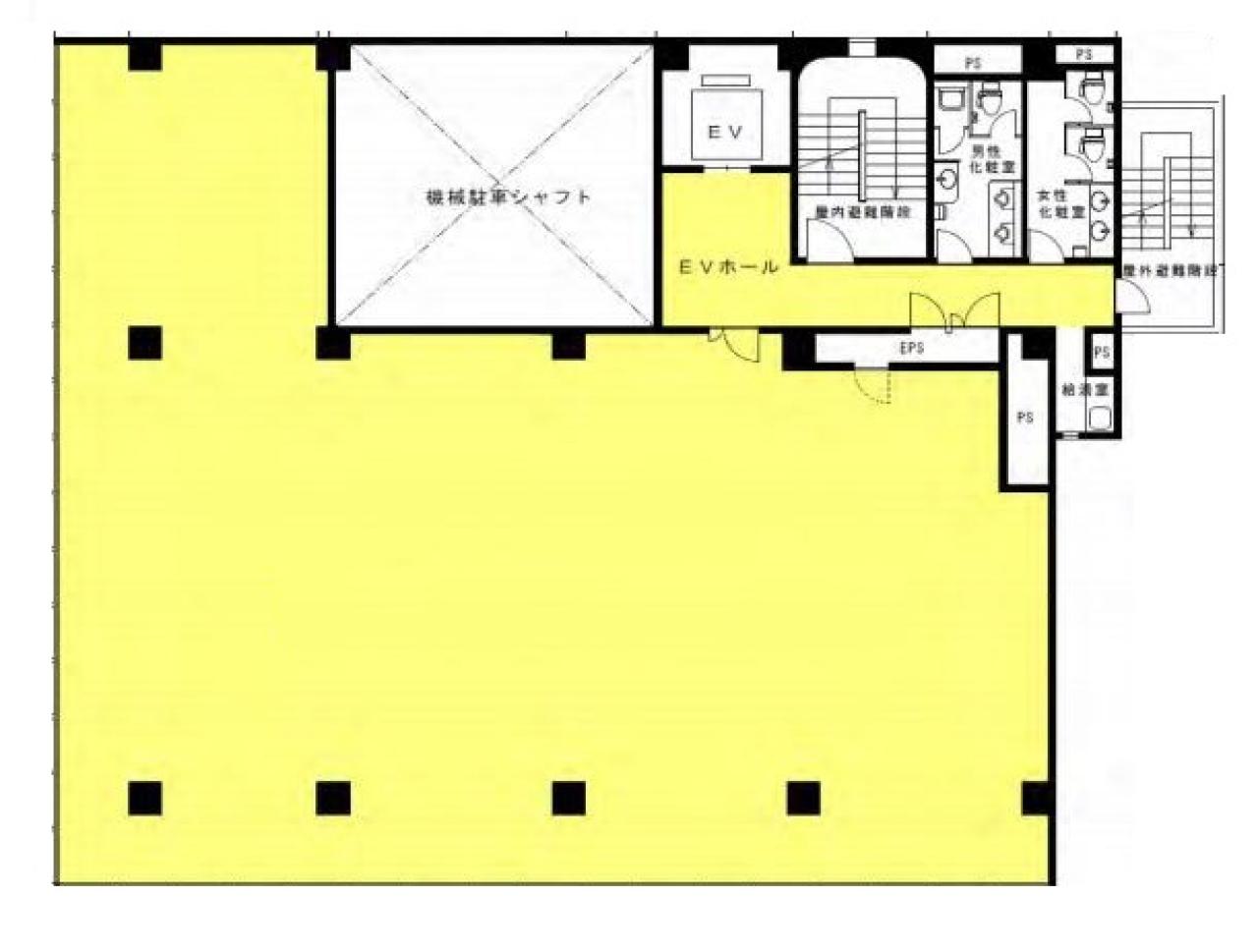
間取り図
-
近隣相場情報
新橋5丁目(50~100坪)の相場
21000 円 (坪)
※ビルサク調べ
周辺施設情報
| コンビニ |
セブンイレブン/新橋第一京浜/160m(徒歩2分) ローソン/新橋五丁目/110m(徒歩1分) |
|---|---|
| 郵便局/銀行 |
イーネット/ファミリーマート新橋五丁目/[営業時間]0:00~24:00/180m(徒歩2分) 関西みらい銀行/東京支店(旧関西アーバン銀行店舗)/[営業時間]平日/9:00~15:00 [ATM]平日/8:45~17:00/290m(徒歩4分) |
| 飲食店 |
ブラッセリー・ビアブルヴァード/17時00分~23時30分/57m(徒歩1分) おにかけ/11時00分~14時00分、17時00分~21時00分/210m(徒歩3分) |
| カフェ |
ラウンジ K憩/11時30分~17時00分、19時30分~0時00分/120m(徒歩2分) カフェ・ドゥー/8時30分~18時00分/400m(徒歩6分) |
| コインパーキング |
タイムズ駐車場/東新橋第3 [料金] [全日]00:00-00:00 15分 400円 [最大料金] [全日]駐車後24時間 最大料金3000円 [全日]17:00-08:00 最大料金1000円 [台数]17 大栄パーク/新橋5丁目 [料金] 平日(月~土)08:00~24:00 20分/400円 日祝08:00~24:00 30分/300円 全日24:00~08:00 60分/100円 [最大料金] 全日夜間最大(繰り返し無)500円 [台数]6 台 |
周辺地図
Daiwa新橋510ビルは、港区新橋にある貸事務所物件です。最寄り駅は都営三田線御成門駅、各線新橋駅です。1974年竣工で基準階が163.64坪の賃貸オフィスビルです。床はOAフロアで、天井の高さは2450mm。トイレは室外男女別で、空調は個別空調です。エレベーターは1基あり、セキュリティは機械警備となっています。駐車場が利用可能です。新橋駅周辺はたくさんの店舗が立ち並んでいます。また複数路線利用可能で交通アクセスが良く利便性の高い、港区新橋の貸事務所です。
全フロア情報
更新日:2025年12月24日
| 階 | 面積 | 賃料 | 共益費 | 敷金 | 入居日 | お問合せ | お気に入り | |
|---|---|---|---|---|---|---|---|---|
| B1F |
93.38 坪 308.69 ㎡ |
※現在空室情報はございません |
※現在空室情報は 確認する |
|||||
|
B1F
(2区画) |
15.79 坪 52.2 ㎡ |
※現在空室情報はございません |
※現在空室情報は 確認する |
|||||
| 1F |
86.9 坪 287.27 ㎡ |
※現在空室情報はございません |
※現在空室情報は 確認する |
|||||
| 2F |
116.61 坪 385.49 ㎡ |
※現在空室情報はございません |
※現在空室情報は 確認する |
|||||
| 3F |
122.45 坪 404.79 ㎡ |
※現在空室情報はございません |
※現在空室情報は 確認する |
|||||
|
3F
(1区画) |
37.67 坪 124.53 ㎡ |
※現在空室情報はございません |
※現在空室情報は 確認する |
|||||
| 4F |
92.84 坪 306.91 ㎡ |
※現在空室情報はございません |
※現在空室情報は 確認する |
|||||
| 5F |
92.84 坪 306.91 ㎡ |
※現在空室情報はございません |
※現在空室情報は 確認する |
|||||
| 6F |
81.42 坪 269.16 ㎡ |
※現在空室情報はございません |
※現在空室情報は 確認する |
|||||
| 7F |
73.36 坪 242.51 ㎡ |
※現在空室情報はございません |
※現在空室情報は 確認する |
|||||
| 8F |
50.03 坪 165.39 ㎡ |
※現在空室情報はございません |
※現在空室情報は 確認する |
|||||
お問い合わせ
似た条件の物件はこちら
-
新橋パークプレイス
東京都港区新橋5-27-1
坪数:99.76 坪
坪単価:15,000 円(坪)
-
新虎ノ門実業会館(新館)
東京都港区虎ノ門1-1-21
坪数:96.25 坪
坪単価:20,000 円(坪)
-
BIZCORE西新橋
東京都港区西新橋3-13-3
坪数:110.58 坪
坪単価:28,000 円(坪)
-
第3虎ノ門電気ビル
東京都港区虎ノ門1-2-20
坪数:85.02 坪
坪単価:28,000 円(坪)
-
虎ノ門きよしビル
東京都港区虎ノ門4-3-10
坪数:74.63 坪
坪単価:22,000 円(坪)
-
飯田ビル
東京都港区西新橋3-24-9
坪数:82 坪
坪単価:12,000 円(坪)
-
第2秋山ビルディング
東京都港区虎ノ門3-6-2
坪数:99.6 坪
坪単価:22,999 円(坪)
-
虎ノ門リンク
東京都港区西新橋2-11-13
坪数:73.8 坪
坪単価:27,100 円(坪)
-
村松ビル
東京都港区東新橋2-2-10
坪数:92.34 坪
坪単価:13,500 円(坪)