合人社東京秋葉原ビル(物件No:11787100)
合人社東京秋葉原ビル(旧:THE GATE AKIHABARA)は、千代田区岩本町にある貸事務所物件です。最寄り駅は都営新宿線岩本町駅、東京メトロ日比谷線小伝馬町駅、JR秋葉原駅です。1985年竣工で基準階が46.91坪の賃貸オフィスビルです。トイレは室内男女共用で、空調は個別空調です。エレベーターは1基あり、セキュリティは機械警備となっています。複数路線利用可能で、交通アクセスの良い、千代田区岩本町の貸事務所です。
| 階 | 面積 | 賃料 | 共益費 | 敷金 | 入居日 | お問合せ | お気に入り | |
|---|---|---|---|---|---|---|---|---|
|
8F
(802区画) |
19.46 坪 64.33 ㎡ |
※現在空室情報はございません |
※現在空室情報は 確認する |
|||||
| 階 | 面積 | 賃料 | 共益費 | 敷金 | 入居日 | お問合せ | お気に入り | |
|---|---|---|---|---|---|---|---|---|
|
8F
(802区画) |
19.46 坪 64.33 ㎡ |
※現在空室情報はございません |
※現在空室情報は 確認する |
|||||
-
物件情報
-
設備情報
- トイレ
- 室内男女別
- 床
- -
- 空調
- 個別空調
- セキュリティ
- 有
- 駐車場
- -
- 会議室
- -
- エレベーター
- 1基
- 天井高
- -
-
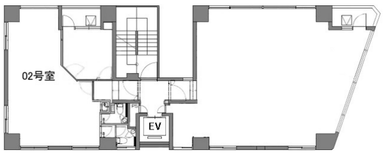
間取り図
-
近隣相場情報
岩本町3丁目(20坪以下)の相場
15735 円 (坪)
※ビルサク調べ
周辺施設情報
| コンビニ |
まいばすけっと/岩本町3丁目店/59m(徒歩1分) ローソン/岩本町三丁目/120m(徒歩1分) |
|---|---|
| 郵便局/銀行 |
セブン銀行/東神田2丁目店/[営業時間]24時間営業 [ATM台数]1/280m(徒歩3分) イーネット/デイリーヤマザキ岩本町3丁目/[営業時間]0:00-24:00/110m(徒歩1分) |
| 飲食店 |
随苑 神田岩本町/11時00分~15時00分、17時00分~23時00分/14m(徒歩1分) 海の幸 翔/昼11:30頃?、夜17:00~、(ラストオーダー21:30)/120m(徒歩1分) |
| カフェ |
ドトール/小伝馬町店/[営業時間]平 日:07:00 - 18:00 土曜日:07:00 - 16:00 日 祝:- [休業日]日曜、祝日 [備考]総席数:31 禁煙席:19 喫煙席:12/550m(徒歩7分) ベローチェ/岩本町店/[営業時間]7:00~22:00 土21:30閉店、日・祝21:00閉店/120m(徒歩1分) |
| コインパーキング |
タイムズ駐車場/岩本町第12 [料金] [月~土]08:00-20:00 20分 400円 20:00-08:00 60分 100円 [日・祝]08:00-20:00 20分 400円 20:00-08:00 60分 100円 [最大料金] [月~土]当日1日最大料金3600円(24時迄) [日・祝]当日1日最大料金1600円(24時迄) [台数]3 名鉄協商パーキング/東神田2丁目 [料金] 全日 20分 (00:00 - 24:00) 400円 [最大料金] 日祝 (07:00 - 19:00) 1,400円 全日 (19:00 - 07:00) 400円 平日・土 (07:00 - 19:00) 3,400円 [台数]4台 |
周辺地図
合人社東京秋葉原ビル(旧:THE GATE AKIHABARA)は、千代田区岩本町にある貸事務所物件です。最寄り駅は都営新宿線岩本町駅、東京メトロ日比谷線小伝馬町駅、JR秋葉原駅です。1985年竣工で基準階が46.91坪の賃貸オフィスビルです。トイレは室内男女共用で、空調は個別空調です。エレベーターは1基あり、セキュリティは機械警備となっています。複数路線利用可能で、交通アクセスの良い、千代田区岩本町の貸事務所です。
全フロア情報
更新日:2025年10月17日
| 階 | 面積 | 賃料 | 共益費 | 敷金 | 入居日 | お問合せ | お気に入り | |
|---|---|---|---|---|---|---|---|---|
|
1F
(101区画) |
25.45 坪 84.13 ㎡ |
585,350 円 23,000 円(坪) |
込 |
3,512,100 円 6 ヶ月 |
即日 |
|
|
|
|
1F
(102区画) |
17.27 坪 57.09 ㎡ |
※現在空室情報はございません |
※現在空室情報は 確認する |
|||||
|
2F
(202区画) |
19.46 坪 64.33 ㎡ |
※現在空室情報はございません |
※現在空室情報は 確認する |
|||||
| 3F |
27.81 坪 91.93 ㎡ |
※現在空室情報はございません |
※現在空室情報は 確認する |
|||||
|
3F
(1-2区画) |
47.94 坪 158.48 ㎡ |
※現在空室情報はございません |
※現在空室情報は 確認する |
|||||
|
3F
(301区画) |
28.48 坪 94.15 ㎡ |
※現在空室情報はございません |
※現在空室情報は 確認する |
|||||
|
3F
(302区画) |
19.46 坪 64.33 ㎡ |
447,580 円 23,000 円(坪) |
込 |
2,685,480 円 6 ヶ月 |
2026/02 |
|
|
|
|
4F
(401区画) |
28.48 坪 94.15 ㎡ |
※現在空室情報はございません |
※現在空室情報は 確認する |
|||||
|
4F
(402区画) |
19.46 坪 64.33 ㎡ |
※現在空室情報はございません |
※現在空室情報は 確認する |
|||||
|
5F
(501区画) |
28.48 坪 94.15 ㎡ |
※現在空室情報はございません |
※現在空室情報は 確認する |
|||||
|
5F
(502区画) |
19.46 坪 64.33 ㎡ |
※現在空室情報はございません |
※現在空室情報は 確認する |
|||||
| 6F |
47.94 坪 158.48 ㎡ |
※現在空室情報はございません |
※現在空室情報は 確認する |
|||||
|
6F
(601区画) |
28.48 坪 94.15 ㎡ |
※現在空室情報はございません |
※現在空室情報は 確認する |
|||||
|
6F
(602区画) |
19.46 坪 64.33 ㎡ |
※現在空室情報はございません |
※現在空室情報は 確認する |
|||||
| 7F |
27.81 坪 91.93 ㎡ |
※現在空室情報はございません |
※現在空室情報は 確認する |
|||||
|
7F
(701区画) |
28.25 坪 93.39 ㎡ |
※現在空室情報はございません |
※現在空室情報は 確認する |
|||||
| 8F |
27.81 坪 91.93 ㎡ |
※現在空室情報はございません |
※現在空室情報は 確認する |
|||||
|
8F
(801区画) |
28.48 坪 94.15 ㎡ |
※現在空室情報はございません |
※現在空室情報は 確認する |
|||||
|
8F
(802区画) |
19.46 坪 64.33 ㎡ |
※現在空室情報はございません |
※現在空室情報は 確認する |
|||||
|
9F
(901区画) |
27.76 坪 91.77 ㎡ |
※現在空室情報はございません |
※現在空室情報は 確認する |
|||||
|
9F
(902区画) |
18.96 坪 62.68 ㎡ |
※現在空室情報はございません |
※現在空室情報は 確認する |
|||||
お問い合わせ
似た条件の物件はこちら
-
KSYビル
東京都千代田区神田須田町2-15
坪数:22.12 坪
坪単価:13,562 円(坪)
-
KM千代田ビル
東京都千代田区岩本町1-12-1
坪数:20.02 坪
坪単価:12,996 円(坪)
-
アーバンスクエア神田ビル
東京都千代田区神田須田町1-18
坪数:14.18 坪
坪単価:17,000 円(坪)
-
TOKENビル
東京都千代田区外神田5-2-4
坪数:21.37 坪
坪単価:11,500 円(坪)
-
第二櫻井ビル
東京都千代田区神田佐久間町3-5
坪数:17.24 坪
坪単価:11,996 円(坪)
-
新東ビル
東京都千代田区内神田2-8-3
坪数:21.5 坪
坪単価:11,000 円(坪)
-
松本ビル
東京都千代田区外神田6-2-8
坪数:20.6 坪
坪単価:10,997 円(坪)
-
野沢ビル
東京都千代田区外神田6-7-4
坪数:14 坪
坪単価:12,143 円(坪)
-
藤和内神田ビル
東京都千代田区内神田2-4-4
坪数:18.49 坪
坪単価:16,500 円(坪)
-
昭和ビル
東京都千代田区神田和泉町1-2-5
坪数:16.5 坪
坪単価:11,000 円(坪)
関連エリアから探す
- 内神田
- 神田淡路町
- 神田小川町
- 神田鍛冶町
- 神田須田町
- 神田駿河台
- 神田多町
- 神田司町
- 神田錦町
- 神田美土代町
- 岩本町
- 鍛冶町
- 神田岩本町
- 神田北乗物町
- 神田紺屋町
- 神田富山町
- 神田西福田町
- 神田東松下町
- 神田東紺屋町
- 神田美倉町
- 東神田
- 神田相生町
- 神田和泉町
- 神田佐久間町
- 神田佐久間河岸
- 神田練塀町
- 神田花岡町
- 神田松永町
- 外神田
- 神田平河町