岩片ビル(物件No:11786166)
岩片ビルは文京区本郷にある地上8階建ての賃貸事務所です。最寄駅は東京メトロ丸ノ内線の本郷三丁目駅から徒歩3分、都営大江戸線の本郷三丁目駅から徒歩4分、東京メトロ丸ノ内線の御茶ノ水駅から徒歩6分、都営三田線の水道橋駅から徒歩8分です。1985年7月竣工の基準階面積が55坪の鉄骨鉄筋コンクリート造です。設備としては、エレベーターが1基あります。警備は機械警備です。トイレは男女別です。空調は個別空調です。耐震設計となっている、最寄駅から近くて便利な文京区本郷の賃貸オフィスです。
-
物件情報
-
設備情報
- トイレ
- 男女別
- 床
- -
- 空調
- 個別空調
- セキュリティ
- 有
- 駐車場
- -
- 会議室
- -
- エレベーター
- 1基
- 天井高
- -
-
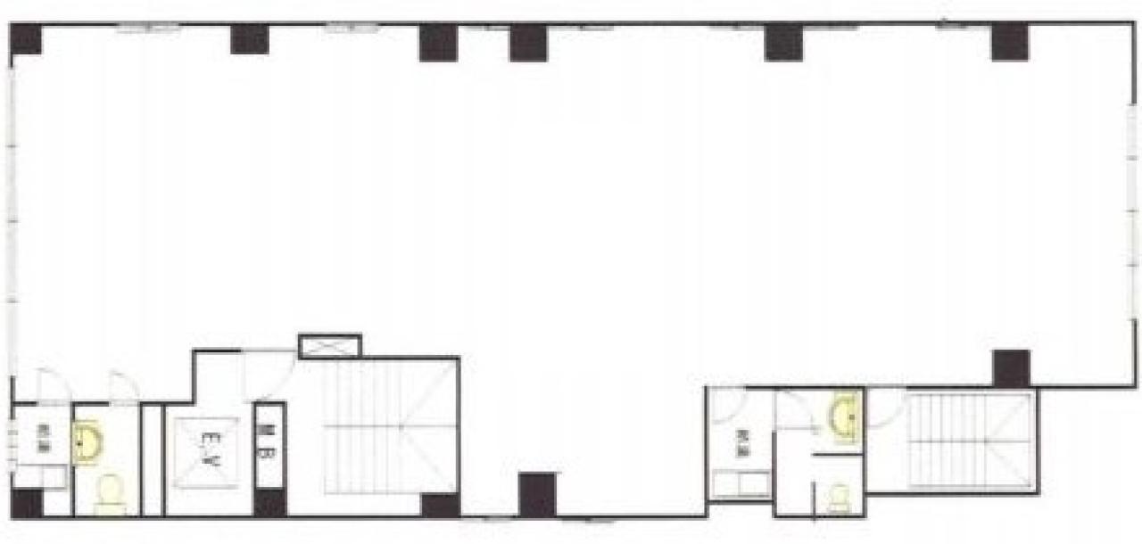
間取り図
-
近隣相場情報
本郷3丁目(50~100坪)の相場
23590 円 (坪)
※ビルサク調べ
周辺地図
岩片ビルは文京区本郷にある地上8階建ての賃貸事務所です。最寄駅は東京メトロ丸ノ内線の本郷三丁目駅から徒歩3分、都営大江戸線の本郷三丁目駅から徒歩4分、東京メトロ丸ノ内線の御茶ノ水駅から徒歩6分、都営三田線の水道橋駅から徒歩8分です。1985年7月竣工の基準階面積が55坪の鉄骨鉄筋コンクリート造です。設備としては、エレベーターが1基あります。警備は機械警備です。トイレは男女別です。空調は個別空調です。耐震設計となっている、最寄駅から近くて便利な文京区本郷の賃貸オフィスです。
全フロア情報
更新日:2017年12月13日
| 階 | 面積 | 賃料 | 共益費 | 敷金 | 入居日 | お問合せ | お気に入り | |
|---|---|---|---|---|---|---|---|---|
| 3F |
55.00 坪 181.82 ㎡ |
※現在空室情報はございません |
※現在空室情報は 確認する |
|||||
| 4F |
55.00 坪 181.82 ㎡ |
※現在空室情報はございません |
※現在空室情報は 確認する |
|||||
お問い合わせ
似た条件の物件はこちら
-
三共小石川THビル
東京都文京区小石川5-36-5
坪数:59.49 坪
坪単価:10,000 円(坪)
-
御茶ノ水天神ビル
東京都文京区湯島3-2-12
坪数:49.41 坪
坪単価:12,500 円(坪)
-
SHINO33BLDG
東京都文京区目白台3-25-14
坪数:44.57 坪
坪単価:17,603 円(坪)
-
南江堂ビル
東京都文京区本郷3-42-6
坪数:48.06 坪
坪単価:15,000 円(坪)
-
利根川第2ビル
東京都文京区湯島1-6-1
坪数:48.76 坪
坪単価:10,000 円(坪)
-
ITP本郷オフィス
東京都文京区湯島2-25-7
坪数:53.51 坪
坪単価:14,000 円(坪)
-
本郷弓町ビル
東京都文京区本郷2-38-4
坪数:53.73 坪
坪単価:11,500 円(坪)
-
IS弓町ビル
東京都文京区本郷1-28-24
坪数:57.24 坪
坪単価:15,000 円(坪)
-
VORT本郷
東京都文京区本郷5-1-16
坪数:42.97 坪
坪単価:14,000 円(坪)
-
本郷天理ビル
東京都文京区本郷3-16-4
坪数:53.03 坪
坪単価:10,500 円(坪)