立石本町ビル(物件No:11784133)
立石本町ビルは中央区日本橋本町にある地上9階建ての賃貸事務所です。最寄駅は東京メトロ半蔵門線の三越前駅から徒歩3分、東京メトロ東西線の日本橋駅から徒歩5分、東京メトロ銀座線の三越前駅から徒歩4分、東京メトロ銀座線の銀座駅から徒歩5分、都営浅草線の日本橋駅から徒歩5分です。2008年竣工の鉄骨造です。設備としては、エレベーターが1基あり、機械警備もあります。トイレは男女別です。空調は個別空調です。床仕様はフリーアクセスです。天高は2600mmです。耐震性は新耐震となっている、最寄駅から近く便利な中央区日本橋本町の賃貸オフィスです。
| 階 | 面積 | 賃料 | 共益費 | 敷金 | 入居日 | お問合せ | お気に入り |
|---|---|---|---|---|---|---|---|
| 3F |
25.9 坪 85.62 ㎡ |
相談 |
込 |
12ヶ月 |
2026/04 |
|
|
| 階 | 面積 | 賃料 | 共益費 | 敷金 | 入居日 | お問合せ | お気に入り |
|---|---|---|---|---|---|---|---|
| 3F |
25.9 坪 85.62 ㎡ |
相談 |
込 |
12ヶ月 |
2026/04 |
|
|
-
物件情報
-
設備情報
- トイレ
- 室外男女別
- 床
- フリーアクセス
- 空調
- 個別空調
- セキュリティ
- 有
- 駐車場
- -
- 会議室
- -
- エレベーター
- 1基
- 天井高
- 2600mm
-
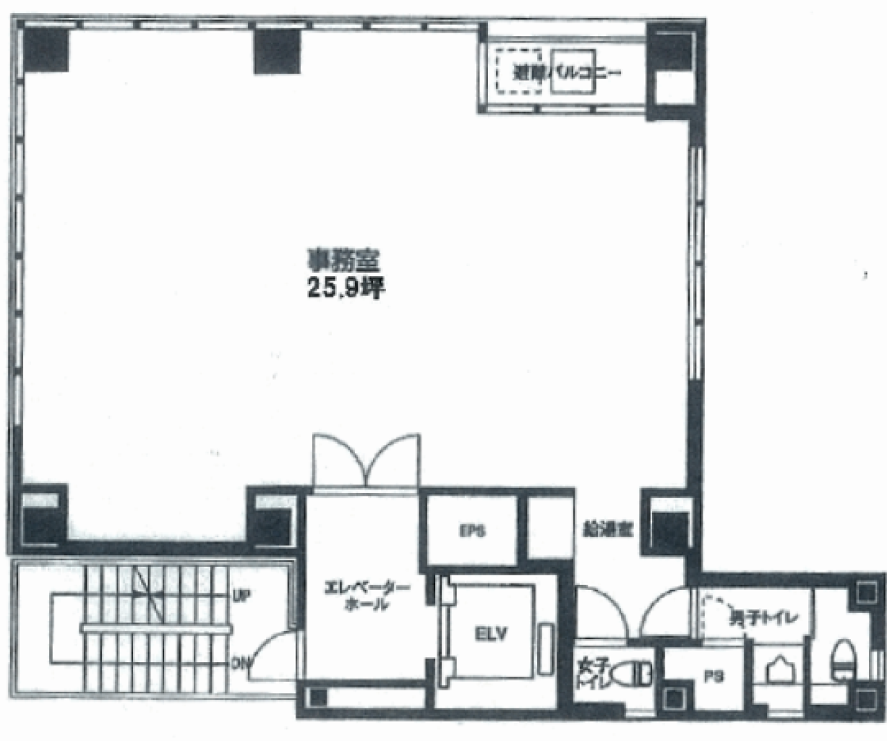
間取り図
-
近隣相場情報
日本橋本町1丁目(20~30坪)の相場
25750 円 (坪)
※ビルサク調べ
周辺施設情報
| コンビニ |
デイリーヤマザキ/日本橋室町1丁目店/22m(徒歩1分) セブンイレブン/日本橋本町1丁目/220m(徒歩3分) |
|---|---|
| 郵便局/銀行 |
セブン銀行/日本橋本町1丁目店/[営業時間]24時間営業/220m(徒歩3分) 東京シティ信用金庫/本店/電話番号03-3279-4321/120m(徒歩2分) |
| 飲食店 |
そばよし 本店/7時30分~20時00分/37m(徒歩1分) HATY HATY 日本橋/11時30分~14時30分 17時30分~23時00分/300m(徒歩4分) |
| カフェ |
ベローチェ/室町一丁目店/[営業時間]7:00~22:00/130m(徒歩2分) ルノアール/日本橋三越前店/[営業時間]平日:8:00~22:00 土曜日:8:00~22:00 日祝日:店休/3m(徒歩1分) |
| コインパーキング |
タイムズ駐車場/日本橋本町第7 [料金] [月~土]通常料金 / 0:00~0:00 15分 330円 [日・祝]通常料金 / 0:00~0:00 15分 330円 [最大料金] [月~土]8:00~21:00 最大料金3850円 21:00~8:00 最大料金440円 [日・祝]8:00~21:00 最大料金770円 21:00~8:00 最大料金440円 [台数]8 コインパーク/日本橋本町第4 [料金] 【月~土】■通常料金【0:00~24:00】20分/300円 【日祝】■通常料金【0:00~24:00】20分/300円 [最大料金] 【月~土】■最大料金【8:00~20:00】3700円【20:00~8:00】500円 【日祝】■最大料金【8:00~20:00】1100円【20:00~8:00】500円 [台数] [車: 2台] |
周辺地図
立石本町ビルは中央区日本橋本町にある地上9階建ての賃貸事務所です。最寄駅は東京メトロ半蔵門線の三越前駅から徒歩3分、東京メトロ東西線の日本橋駅から徒歩5分、東京メトロ銀座線の三越前駅から徒歩4分、東京メトロ銀座線の銀座駅から徒歩5分、都営浅草線の日本橋駅から徒歩5分です。2008年竣工の鉄骨造です。設備としては、エレベーターが1基あり、機械警備もあります。トイレは男女別です。空調は個別空調です。床仕様はフリーアクセスです。天高は2600mmです。耐震性は新耐震となっている、最寄駅から近く便利な中央区日本橋本町の賃貸オフィスです。
全フロア情報
更新日:2026年3月3日
| 階 | 面積 | 賃料 | 共益費 | 敷金 | 入居日 | お問合せ | お気に入り | |
|---|---|---|---|---|---|---|---|---|
| 2F |
25.9 坪 85.62 ㎡ |
※現在空室情報はございません |
※現在空室情報は 確認する |
|||||
| 3F |
25.9 坪 85.62 ㎡ |
相談 |
込 |
12ヶ月 |
2026/04 |
|
|
|
| 4F |
25.9 坪 85.62 ㎡ |
相談 |
込 |
12ヶ月 |
2026/06/01 |
|
|
|
| 5F |
25.9 坪 85.62 ㎡ |
※現在空室情報はございません |
※現在空室情報は 確認する |
|||||
お問い合わせ
似た条件の物件はこちら
-
新々会館
東京都中央区日本橋3-14-1
坪数:21.35 坪
坪単価:15,000 円(坪)
-
協同ビル
東京都中央区日本橋本町2-3-6
坪数:19.18 坪
坪単価:8,996 円(坪)
-
寺沢ビル
東京都中央区京橋2-12-9
坪数:15.96 坪
坪単価:20,000 円(坪)
-
京橋エー・エスビルディング
東京都中央区京橋2-9-9
坪数:29.25 坪
坪単価:15,000 円(坪)
-
朝日第3ビル
東京都中央区日本橋本石町4-4-12
坪数:20 坪
坪単価:13,000 円(坪)
-
松木ビル
東京都中央区日本橋3-15-6
坪数:26.24 坪
坪単価:13,000 円(坪)
-
讃金ビル
東京都中央区日本橋本町1-7-10
坪数:26.42 坪
坪単価:13,000 円(坪)
-
山三ビル
東京都中央区日本橋2-6-13
坪数:29.58 坪
坪単価:11,500 円(坪)
-
友泉本石町ビル
東京都中央区日本橋本石町4-5-12
坪数:30.21 坪
坪単価:19,000 円(坪)
-
バンセイ室町
東京都中央区日本橋室町4-3-12
坪数:25.5 坪
坪単価:23,000 円(坪)