プルミエⅠ(物件No:11687159)
プルミエⅠは台東区柳橋にある地上5階建ての賃貸事務所です。最寄駅は都営浅草線の浅草橋駅から徒歩7分、都営浅草線の蔵前駅から徒歩7分です。1988年10月竣工の鉄筋コンクリート造です。設備としては、エレベーターが1基あります。耐震設計となっている、複数路線利用可能なアクセスの良い台東区柳橋の賃貸オフィスです。
-
物件情報
-
設備情報
- トイレ
- -
- 床
- -
- 空調
- -
- セキュリティ
- -
- 駐車場
- -
- 会議室
- -
- エレベーター
- 1基
- 天井高
- -
-
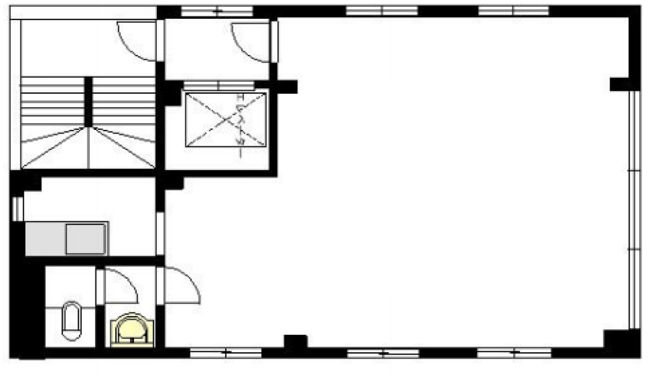
間取り図
-
近隣相場情報
柳橋2丁目(20~30坪)の相場
13190 円 (坪)
※ビルサク調べ
周辺地図
プルミエⅠは台東区柳橋にある地上5階建ての賃貸事務所です。最寄駅は都営浅草線の浅草橋駅から徒歩7分、都営浅草線の蔵前駅から徒歩7分です。1988年10月竣工の鉄筋コンクリート造です。設備としては、エレベーターが1基あります。耐震設計となっている、複数路線利用可能なアクセスの良い台東区柳橋の賃貸オフィスです。
全フロア情報
更新日:2026年3月6日
| 階 | 面積 | 賃料 | 共益費 | 敷金 | 入居日 | お問合せ | お気に入り | |
|---|---|---|---|---|---|---|---|---|
| 2F |
21.24 坪 70.23 ㎡ |
270,000 円 12,712 円(坪) |
10,000 円 478 円(坪) |
810,000 円 3 ヶ月 |
相談 |
|
|
|
| 3F |
20.94 坪 69.22 ㎡ |
※現在空室情報はございません |
※現在空室情報は 確認する |
|||||
| 4F |
21.66 坪 71.6 ㎡ |
※現在空室情報はございません |
※現在空室情報は 確認する |
|||||
お問い合わせ
似た条件の物件はこちら
-
岡安ビル
東京都台東区蔵前3-12-8
坪数:23.86 坪
坪単価:11,000 円(坪)
-
大島屋浅草橋ビル
東京都台東区柳橋1-13-5
坪数:16 坪
坪単価:15,625 円(坪)
-
大手山ビル
東京都台東区柳橋1-7-7
坪数:15.70 坪
坪単価:10,000 円(坪)
-
原田ビル
東京都台東区浅草橋5-9-7
坪数:19.63 坪
坪単価:9,424 円(坪)
-
浅草橋STビル
東京都台東区浅草橋1-13-6
坪数:21.25 坪
坪単価:9,500 円(坪)
-
ラッキー浅草橋ビル
東京都台東区浅草橋5-27-11
坪数:18.05 坪
坪単価:5,769 円(坪)
-
サンポービル
東京都台東区元浅草1-19-9
坪数:23.88 坪
坪単価:9,000 円(坪)
-
松田ビル
東京都台東区浅草橋4-10-2
坪数:17.3 坪
坪単価:8,092 円(坪)
-
鈴武浅草橋駅前ビル
東京都台東区浅草橋1-11-5
坪数:23.53 坪
坪単価:13,000 円(坪)