VORT外苑前Ⅱ(物件No:11583125)
VORT外苑前Ⅱ(旧:CGAビル)は港区南青山にある地下1階、地上8階建ての賃貸事務所です。最寄駅は東京メトロ銀座線の外苑前駅から徒歩2分、東京メトロ半蔵門線の表参道駅から徒歩7分、都営大江戸線の青山一丁目駅から徒歩10分です。1990年4月竣工の基準階面積が33.03坪の鉄骨鉄筋コンクリート造です。設備としては、エレベーターが1基あります。トイレは男女別です。空調は個別空調です。床仕様はフリーアクセスです。耐震設計となっている、複数路線利用可能なアクセスの良い港区南青山の賃貸オフィスです。
| 階 | 面積 | 賃料 | 共益費 | 敷金 | 入居日 | お問合せ | お気に入り |
|---|---|---|---|---|---|---|---|
| 8F |
24.6 坪 81.32 ㎡ |
相談 |
込 |
5ヶ月 |
即日 |
|
|
| 階 | 面積 | 賃料 | 共益費 | 敷金 | 入居日 | お問合せ | お気に入り |
|---|---|---|---|---|---|---|---|
| 8F |
24.6 坪 81.32 ㎡ |
相談 |
込 |
5ヶ月 |
即日 |
|
|
-
物件情報
-
設備情報
- トイレ
- 男女別
- 床
- -
- 空調
- 個別空調
- セキュリティ
- -
- 駐車場
- -
- 会議室
- -
- エレベーター
- 1基
- 天井高
- 2300mm
-
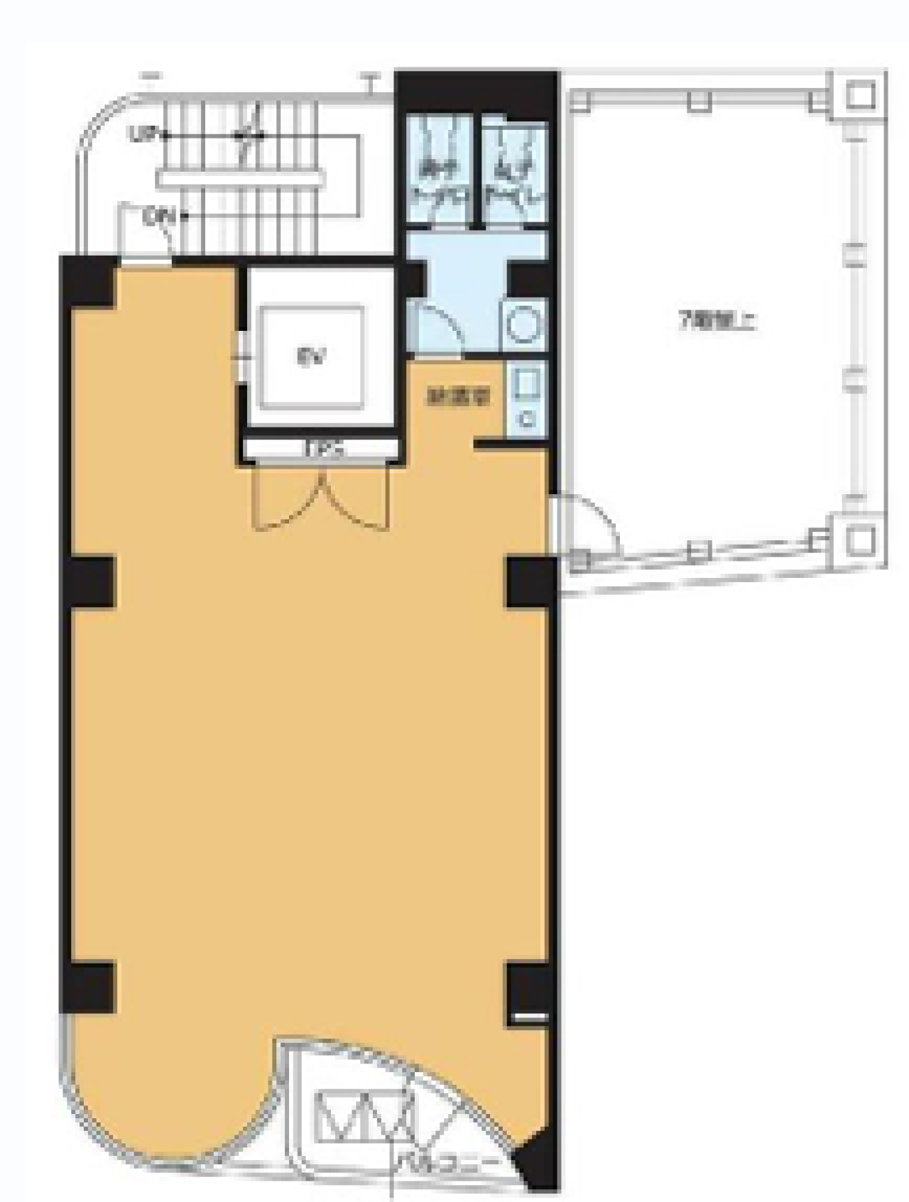
間取り図
-
近隣相場情報
南青山2丁目(20~30坪)の相場
21535 円 (坪)
※ビルサク調べ
周辺施設情報
| コンビニ |
セブンイレブン/北青山青山通り/110m(徒歩1分) ファミリーマート/北青山二丁目店/220m(徒歩3分) |
|---|---|
| 郵便局/銀行 |
郵便局/ATM ファミリーマート外苑南青山二丁目店内出張所/[ATM]平日0:05~23:55、土曜0:05~23:55、日曜0:05~23:55/120m(徒歩2分) みずほ銀行/ATM ヴィルマルシェ青山店出張所/[営業時間]ATM 平日 /Monday - Friday 7:00~23:00 土曜日/Saturday 7:00~22:00 日曜日/Sunday 8:00~23:00 祝日・振替休日 /Public Holidays 曜日に準ずる 備考 通帳繰越機 設置なし/150m(徒歩2分) |
| 飲食店 |
リストランテ アクアパッツァ/11時30分~14時00分、17時30分~21時30分/130m(徒歩2分) CITRON/8時00分~21時00分/13m(徒歩1分) |
| カフェ |
LE PATISSIER TAKAGI/11時00分~20時00分/140m(徒歩2分) moana/[月?土・祝]LUNCH 12:00?16:00(L.O) 16:00?翌5:00、[日]CAFE 12:00?18:00 18:00?23:00/110m(徒歩1分) |
| コインパーキング |
NBパーキング/南青山第2 2台 タイムズ駐車場/南青山2丁目第2 [料金] [月~金]通常料金 / 00:00-00:00 15分 300円 [土・日・祝]通常料金 / 00:00-00:00 15分 300円 [最大料金] [月~金]19:00-07:00 最大料金500円 [土・日・祝]07:00-19:00 最大料金2500円 19:00-07:00 最大料金500円 [台数]6 |
周辺地図
VORT外苑前Ⅱ(旧:CGAビル)は港区南青山にある地下1階、地上8階建ての賃貸事務所です。最寄駅は東京メトロ銀座線の外苑前駅から徒歩2分、東京メトロ半蔵門線の表参道駅から徒歩7分、都営大江戸線の青山一丁目駅から徒歩10分です。1990年4月竣工の基準階面積が33.03坪の鉄骨鉄筋コンクリート造です。設備としては、エレベーターが1基あります。トイレは男女別です。空調は個別空調です。床仕様はフリーアクセスです。耐震設計となっている、複数路線利用可能なアクセスの良い港区南青山の賃貸オフィスです。
全フロア情報
更新日:2026年3月12日
| 階 | 面積 | 賃料 | 共益費 | 敷金 | 入居日 | お問合せ | お気に入り | |
|---|---|---|---|---|---|---|---|---|
| B1F |
30.17 坪 99.74 ㎡ |
※現在空室情報はございません |
※現在空室情報は 確認する |
|||||
| 3F |
33.11 坪 109.45 ㎡ |
相談 |
込 |
5ヶ月 |
2026/03/25 |
|
|
|
| 4F |
33.11 坪 109.45 ㎡ |
※現在空室情報はございません |
※現在空室情報は 確認する |
|||||
| 6F |
33.11 坪 109.45 ㎡ |
※現在空室情報はございません |
※現在空室情報は 確認する |
|||||
| 8F |
24.6 坪 81.32 ㎡ |
相談 |
込 |
5ヶ月 |
即日 |
|
|
|
お問い合わせ
似た条件の物件はこちら
-
南青山KFKビル
東京都南青山2-14-14
坪数:28.4 坪
坪単価:11,396 円(坪)
-
たつむら青山マンション(青南吉川興産ビル)
東京都港区南青山5-4-35
坪数:21.29 坪
坪単価:21,982 円(坪)
-
KSビル
東京都港区南青山6-2-9
坪数:20.61 坪
坪単価:23,011 円(坪)
-
G-FRONT AOYAMA
東京都港区北青山2-12-15
坪数:26 坪
坪単価:29,002 円(坪)
-
NCN南青山
東京都港区南青山7-4-18
坪数:27.47 坪
坪単価:18,202 円(坪)
-
南青山第2韮澤ビル
東京都港区南青山3-5-2
坪数:28.75 坪
坪単価:19,000 円(坪)
-
南青山426ビル
東京都港区南青山4-2-6
坪数:21.11 坪
坪単価:20,843 円(坪)
-
MAビル
東京都港区南青山2-7-7
坪数:26.28 坪
坪単価:16,514 円(坪)
-
南青山オークビル
東京都港区南青山4-16-3
坪数:21.18 坪
坪単価:18,886 円(坪)
-
北青山三丁目ビル
東京都港区北青山3-12-3
坪数:19.02 坪
坪単価:100,000 円(坪)