日本橋大江戸ビル(物件No:11582161)
日本橋大江戸ビルは、中央区日本橋茅場町にある地上9階建ての賃貸事務所です。最寄駅は東京メトロ東西線の茅場町駅から徒歩1分、都営浅草線の日本橋駅から徒歩6分、東京メトロ日比谷線の茅場町駅から徒歩1分、東京メトロ日比谷線の八丁堀駅から徒歩2分です。2011年4月竣工の基準階面積が40.68坪の鉄骨造です。設備としては、エレベーターが1基あります。貸し会議室もあります。セキュリティは機械警備です。トイレは室外男女別です。空調は個別空調です。床仕様はフリーアクセスです。天高は2650mmです。耐震設計となっている、複数駅利用可能なアクセスの良い中央区日本橋茅場町の賃貸オフィスです。
| 階 | 面積 | 賃料 | 共益費 | 敷金 | 入居日 | お問合せ | お気に入り | |
|---|---|---|---|---|---|---|---|---|
|
4F
(402区画) |
14.11 坪 46.64 ㎡ |
※現在空室情報はございません |
※現在空室情報は 確認する |
|||||
| 階 | 面積 | 賃料 | 共益費 | 敷金 | 入居日 | お問合せ | お気に入り | |
|---|---|---|---|---|---|---|---|---|
|
4F
(402区画) |
14.11 坪 46.64 ㎡ |
※現在空室情報はございません |
※現在空室情報は 確認する |
|||||
-
物件情報
-
設備情報
- トイレ
- 室外男女別
- 床
- フリーアクセス
- 空調
- 個別空調
- セキュリティ
- 有
- 駐車場
- 無
- 会議室
- 有
- エレベーター
- 1基
- 天井高
- 2650mm
-
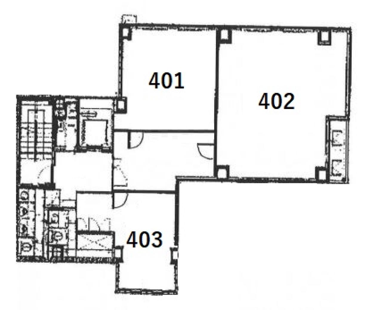
間取り図
-
近隣相場情報
日本橋茅場町2丁目(20坪以下)の相場
17782 円 (坪)
※ビルサク調べ
周辺施設情報
| コンビニ |
セブンイレブン/日本橋茅場町2丁目/100m(徒歩1分) まいばすけっと/茅場町3丁目店/110m(徒歩1分) |
|---|---|
| 郵便局/銀行 |
郵便局/日本橋茅場町/[駐車場]なし [取扱]郵便/貯金/保険/ATM/48m(徒歩1分) セブン銀行/日本橋茅場町2丁目店/[営業時間]24時間営業/100m(徒歩1分) |
| 飲食店 |
鳥徳/11時00分~13時30分 17時00分~21時15分/13m(徒歩1分) おわん/11時00分~13時45分 17時00分~23時00分/77m(徒歩1分) |
| カフェ |
ベローチェ/茅場町駅前店/[営業時間]7:00~23:00/300m(徒歩4分) ドトール/茅場町店/[営業時間]平日:7:00~20:30 土曜日:8:00~16:00 日 祝:8:00~16:00 /160m(徒歩2分) |
| コインパーキング |
ユアー・パーキング/日本橋茅場町第2 [料金] [料金]【全日】 08時~20時 20分/400円 20時~08時 60分/100円 [最大料金] 【最大料金】 平 日:入庫後6時間最大3,000円(1回限り) 土日祝:入庫後6時間最大1,300円(1回限り) [台数]2 ユアー・パーキング/日本橋茅場町第4 [料金] 【全日】 08時~20時 30分500円 20時~08時 60分100円 [最大料金] 【最大料金】 全日:夜間最大(20時~08時の間)500円 【最大料金】 日祝:昼間最大(08時~20時の間)1,000円 [台数]2 |
周辺地図
日本橋大江戸ビルは、中央区日本橋茅場町にある地上9階建ての賃貸事務所です。最寄駅は東京メトロ東西線の茅場町駅から徒歩1分、都営浅草線の日本橋駅から徒歩6分、東京メトロ日比谷線の茅場町駅から徒歩1分、東京メトロ日比谷線の八丁堀駅から徒歩2分です。2011年4月竣工の基準階面積が40.68坪の鉄骨造です。設備としては、エレベーターが1基あります。貸し会議室もあります。セキュリティは機械警備です。トイレは室外男女別です。空調は個別空調です。床仕様はフリーアクセスです。天高は2650mmです。耐震設計となっている、複数駅利用可能なアクセスの良い中央区日本橋茅場町の賃貸オフィスです。
全フロア情報
更新日:2026年2月25日
| 階 | 面積 | 賃料 | 共益費 | 敷金 | 入居日 | お問合せ | お気に入り | |
|---|---|---|---|---|---|---|---|---|
| 2F |
40.68 坪 134.48 ㎡ |
※現在空室情報はございません |
※現在空室情報は 確認する |
|||||
|
4F
(402区画) |
14.11 坪 46.64 ㎡ |
※現在空室情報はございません |
※現在空室情報は 確認する |
|||||
|
4F
(403区画) |
6.18 坪 20.43 ㎡ |
※現在空室情報はございません |
※現在空室情報は 確認する |
|||||
| 5F |
40.68 坪 134.48 ㎡ |
※現在空室情報はございません |
※現在空室情報は 確認する |
|||||
|
5F
(502区画) |
14.11 坪 46.64 ㎡ |
※現在空室情報はございません |
※現在空室情報は 確認する |
|||||
|
5F
(503区画) |
6.18 坪 20.43 ㎡ |
180,147 円 29,150 円(坪) |
23,793 円 3,850 円(坪) |
1,080,882 円 6 ヶ月 |
相談 |
|
|
|
| 7F |
40.68 坪 134.48 ㎡ |
※現在空室情報はございません |
※現在空室情報は 確認する |
|||||
| 8F |
40.68 坪 134.48 ㎡ |
※現在空室情報はございません |
※現在空室情報は 確認する |
|||||
お問い合わせ
似た条件の物件はこちら
-
AUBE新川ビル
東京都中央区新川2-18-10
坪数:13.41 坪
坪単価:13,500 円(坪)
-
大湯ビル
東京都中央区日本橋茅場町2-6-8
坪数:10 坪
坪単価:18,000 円(坪)
-
第1井上ビル
東京都中央区日本橋茅場町2-14-1
坪数:12.3 坪
坪単価:15,000 円(坪)
-
ニューリバータワー
東京都中央区新川1-6-11
坪数:16.2 坪
坪単価:22,000 円(坪)
-
BM兜町ビル
東京都中央区日本橋兜町11-7
坪数:12.8 坪
坪単価:11,000 円(坪)
-
日興パレス日本橋
東京都中央区新川1-27-7
坪数:15.37 坪
坪単価:14,964 円(坪)
-
新井ビル
東京都中央区日本橋茅場町1-12-1
坪数:10.62 坪
坪単価:15,113 円(坪)
-
ゼロワンビル
東京都中央区新川2-8-5
坪数:16.51 坪
坪単価:13,766 円(坪)
-
八丁堀2185
東京都中央区八丁堀2-18-5
坪数:17.59 坪
坪単価:13,500 円(坪)
-
新川田所ビル
東京都中央区新川2-3-4
坪数:18.6 坪
坪単価:11,000 円(坪)