溝呂木第1ビル(物件No:11580125)
溝呂木第1ビルは新宿区新宿にある地上6階建ての賃貸事務所です。最寄駅は東京メトロ丸ノ内線の新宿御苑前駅から徒歩1分、都営新宿線の新宿三丁目駅から徒歩7分、東京メトロ副都心線の新宿三丁目駅から徒歩9分、東京メトロ丸ノ内線の四谷三丁目駅から徒歩9分です。1979年6月竣工の鉄筋コンクリート造です。設備としては、エレベーターが1基あります。トイレは男女別です。空調は個別空調です。最寄駅から近くて便利な新宿区新宿の賃貸オフィスです。
| 階 | 面積 | 賃料 | 共益費 | 敷金 | 入居日 | お問合せ | お気に入り | |
|---|---|---|---|---|---|---|---|---|
|
3F
(303区画) |
11.2 坪 37.02 ㎡ |
※現在空室情報はございません |
※現在空室情報は 確認する |
|||||
| 階 | 面積 | 賃料 | 共益費 | 敷金 | 入居日 | お問合せ | お気に入り | |
|---|---|---|---|---|---|---|---|---|
|
3F
(303区画) |
11.2 坪 37.02 ㎡ |
※現在空室情報はございません |
※現在空室情報は 確認する |
|||||
-
物件情報
-
設備情報
- トイレ
- 男女別
- 床
- -
- 空調
- 個別空調
- セキュリティ
- -
- 駐車場
- 無
- 会議室
- -
- エレベーター
- 1基
- 天井高
- -
-
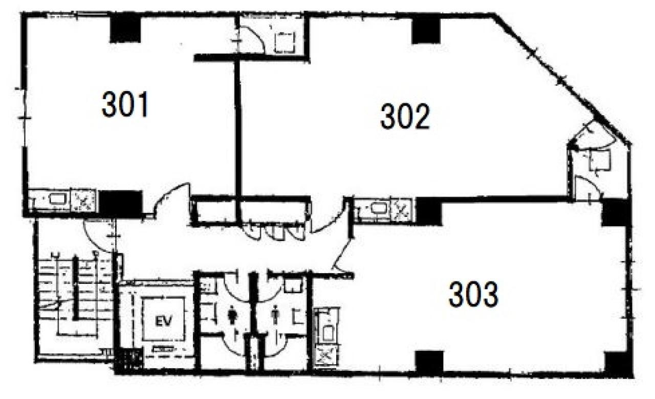
間取り図
-
近隣相場情報
新宿1丁目(20坪以下)の相場
15538 円 (坪)
※ビルサク調べ
周辺施設情報
| コンビニ |
ファミリーマート/新宿通り店/220m(徒歩3分) セブンイレブン/新宿1丁目新宿通り/140m(徒歩2分) |
|---|---|
| 郵便局/銀行 |
セブン銀行/新宿2丁目店/[営業時間]24時間営業 [ATM台数]2/400m(徒歩5分) イーネット/ファミリーマート新宿御苑駅前1号機/[営業時間]0:00-24:00/120m(徒歩2分) |
| 飲食店 |
古月 新宿/11時30分~14時00分、17時30分~21時00分/120m(徒歩1分) Pizzeria Bar Romana/11時30分~14時30分、17時30分~22時30分/130m(徒歩2分) |
| カフェ |
アンド サンドイッチ/11時00分~19時00分/68m(徒歩1分) カフェ ハイフ/9時00分~17時00分/170m(徒歩2分) |
| コインパーキング |
コインパーク/新宿1丁目第2 [料金] 【全日】 ■通常料金 【オ-ルタイム[24時間]】 30分/400円 [最大料金] 【全日】 【駐車後4時間以内1回限り】 1800円 【全日】 【22:00~8:00】400円 [台数][車: 2台] 三井のリパーク/新宿御苑前第2 [料金] 全日 08:00~22:00 20分/400円 全日 22:00~08:00 60分/100円 [最大料金] 【全日】最大料金入庫後3時間以内2000円 [台数]12 |
周辺地図
溝呂木第1ビルは新宿区新宿にある地上6階建ての賃貸事務所です。最寄駅は東京メトロ丸ノ内線の新宿御苑前駅から徒歩1分、都営新宿線の新宿三丁目駅から徒歩7分、東京メトロ副都心線の新宿三丁目駅から徒歩9分、東京メトロ丸ノ内線の四谷三丁目駅から徒歩9分です。1979年6月竣工の鉄筋コンクリート造です。設備としては、エレベーターが1基あります。トイレは男女別です。空調は個別空調です。最寄駅から近くて便利な新宿区新宿の賃貸オフィスです。
全フロア情報
更新日:2026年1月15日
| 階 | 面積 | 賃料 | 共益費 | 敷金 | 入居日 | お問合せ | お気に入り | |
|---|---|---|---|---|---|---|---|---|
|
2F
(201区画) |
15 坪 49.59 ㎡ |
170,000 円 11,333 円(坪) |
40,000 円 2,667 円(坪) |
510,000 円 3 ヶ月 |
即日 |
|
|
|
|
2F
(202区画) |
16 坪 52.89 ㎡ |
※現在空室情報はございません |
※現在空室情報は 確認する |
|||||
|
3F
(301区画) |
8 坪 26.45 ㎡ |
※現在空室情報はございません |
※現在空室情報は 確認する |
|||||
|
3F
(302区画) |
13 坪 42.98 ㎡ |
※現在空室情報はございません |
※現在空室情報は 確認する |
|||||
|
3F
(303区画) |
11.2 坪 37.02 ㎡ |
※現在空室情報はございません |
※現在空室情報は 確認する |
|||||
|
4F
(403区画) |
11.2 坪 37.02 ㎡ |
※現在空室情報はございません |
※現在空室情報は 確認する |
|||||
|
5F
(501区画) |
18.2 坪 60.16 ㎡ |
※現在空室情報はございません |
※現在空室情報は 確認する |
|||||
| 6F |
17 坪 56.2 ㎡ |
※現在空室情報はございません |
※現在空室情報は 確認する |
|||||
お問い合わせ
似た条件の物件はこちら
-
信栄ビル
東京都新宿区西新宿8-5-6
坪数:15.13 坪
坪単価:14,541 円(坪)
-
新宿Qフラットビル
東京都新宿区新宿5-4-1
坪数:14.22 坪
坪単価:13,010 円(坪)
-
永谷リヴェール新宿
東京都新宿区西新宿4-31-3
坪数:12.09 坪
坪単価:13,234 円(坪)
-
パシフィックワコービル
東京都新宿区新宿4-3-12
坪数:12.08 坪
坪単価:16,391 円(坪)
-
レイフラット新宿B棟
東京都新宿区新宿4-3-15
坪数:13.66 坪
坪単価:16,105 円(坪)
-
西新宿水間ビル
東京都新宿区西新宿3-3-13
坪数:14.38 坪
坪単価:22,000 円(坪)
-
光和ビル
東京都新宿区新宿2-3-12
坪数:15 坪
坪単価:19,500 円(坪)
-
新宿Qビル
東京都新宿区新宿3-8-9
坪数:15 坪
坪単価:27,667 円(坪)
-
御苑ビル
東京都新宿区新宿1-5-6
坪数:10.8 坪
坪単価:15,278 円(坪)