東京フロントテラス(物件No:11382802)
東京フロントテラスは品川区東品川にある地下1階、地上22階建ての賃貸事務所です。最寄駅は東京モノレールの天王洲アイル駅から徒歩1分、りんかい線の天王洲アイル駅から徒歩5分です。1992年6月竣工の基準階面積が282.69坪の鉄骨鉄筋コンクリート造です。設備としては、エレベーターが8基あり、駐車場もあります。警備は機械警備+有人警備です。トイレは室外男女別です。空調は個別空調です。床仕様はフリーアクセスです。天高は2630mmです。耐震設計となっている、最寄駅から近くて便利な品川区東品川の賃貸オフィスです。
階 | 面積 | 賃料 | 共益費 | 敷金 | 入居日 | お問合せ | お気に入り |
---|---|---|---|---|---|---|---|
10F
(CD区画) |
130.91 坪 432.76 ㎡ |
2,023,154 円 15,455 円(坪) |
込 |
24,277,848 円 12 ヶ月 |
即日 |
|
|
階 | 面積 | 賃料 | 共益費 | 敷金 | 入居日 | お問合せ | お気に入り |
---|---|---|---|---|---|---|---|
10F
(CD区画) |
130.91 坪 432.76 ㎡ |
2,023,154 円 15,455 円(坪) |
込 |
24,277,848 円 12 ヶ月 |
即日 |
|
|
-
物件情報
-
設備情報
- トイレ
- 室外男女別
- 床
- フリーアクセス
- 空調
- 個別空調
- セキュリティ
- 有
- 駐車場
- 有
- 会議室
- -
- エレベーター
- 8基
- 天井高
- 2630mm
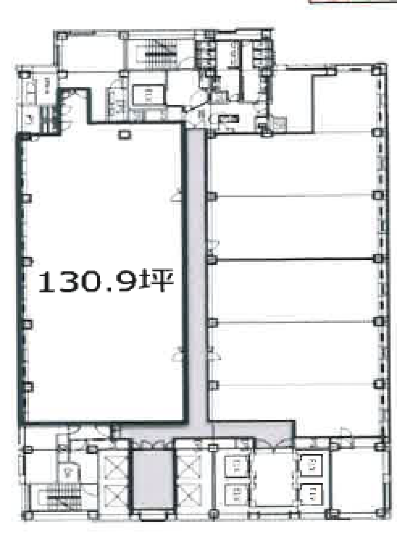
-
間取り図
-
近隣相場情報
東品川2丁目(100坪以上)の相場
16201 円 (坪)
※ビルサク調べ
周辺地図
東京フロントテラスは品川区東品川にある地下1階、地上22階建ての賃貸事務所です。最寄駅は東京モノレールの天王洲アイル駅から徒歩1分、りんかい線の天王洲アイル駅から徒歩5分です。1992年6月竣工の基準階面積が282.69坪の鉄骨鉄筋コンクリート造です。設備としては、エレベーターが8基あり、駐車場もあります。警備は機械警備+有人警備です。トイレは室外男女別です。空調は個別空調です。床仕様はフリーアクセスです。天高は2630mmです。耐震設計となっている、最寄駅から近くて便利な品川区東品川の賃貸オフィスです。
全フロア情報
更新日:2025年10月7日
階 | 面積 | 賃料 | 共益費 | 敷金 | 入居日 | お問合せ | お気に入り | |
---|---|---|---|---|---|---|---|---|
3F |
286.99 坪 948.73 ㎡ |
※現在空室情報はございません |
※現在空室情報は 確認する |
|||||
4F |
288.99 坪 955.34 ㎡ |
※現在空室情報はございません |
※現在空室情報は 確認する |
|||||
5F |
288.92 坪 955.11 ㎡ |
※現在空室情報はございません |
※現在空室情報は 確認する |
|||||
6F |
288.3 坪 953.06 ㎡ |
※現在空室情報はございません |
※現在空室情報は 確認する |
|||||
7F |
289.24 坪 956.16 ㎡ |
※現在空室情報はございません |
※現在空室情報は 確認する |
|||||
7F
(1区画) |
143.67 坪 474.94 ㎡ |
※現在空室情報はございません |
※現在空室情報は 確認する |
|||||
7F
(2区画) |
145.57 坪 481.22 ㎡ |
※現在空室情報はございません |
※現在空室情報は 確認する |
|||||
8F |
289.24 坪 956.16 ㎡ |
※現在空室情報はございません |
※現在空室情報は 確認する |
|||||
8F
(3区画) |
70.04 坪 231.54 ㎡ |
※現在空室情報はございません |
※現在空室情報は 確認する |
|||||
8F
(A区画) |
71.64 坪 236.83 ㎡ |
※現在空室情報はございません |
※現在空室情報は 確認する |
|||||
8F
(C区画) |
60.87 坪 201.22 ㎡ |
※現在空室情報はございません |
※現在空室情報は 確認する |
|||||
8F
(DE区画) |
76.96 坪 254.41 ㎡ |
※現在空室情報はございません |
※現在空室情報は 確認する |
|||||
9F |
289.24 坪 956.16 ㎡ |
4,470,072 円 15,455 円(坪) |
込 |
53,640,864 円 12 ヶ月 |
即日 |
|
|
|
10F |
289.24 坪 956.16 ㎡ |
※現在空室情報はございません |
※現在空室情報は 確認する |
|||||
10F
(1区画) |
71.64 坪 236.83 ㎡ |
※現在空室情報はございません |
※現在空室情報は 確認する |
|||||
10F
(2区画) |
217.6 坪 719.34 ㎡ |
※現在空室情報はございません |
※現在空室情報は 確認する |
|||||
10F
(CD区画) |
130.91 坪 432.76 ㎡ |
2,023,154 円 15,455 円(坪) |
込 |
24,277,848 円 12 ヶ月 |
即日 |
|
|
|
11F |
289.24 坪 956.16 ㎡ |
※現在空室情報はございません |
※現在空室情報は 確認する |
|||||
11F
(2区画) |
143.67 坪 474.94 ㎡ |
相談 |
相談 |
12ヶ月 |
2024/04/01 |
|
|
|
11F
(AB区画) |
143.67 坪 474.94 ㎡ |
※現在空室情報はございません |
※現在空室情報は 確認する |
|||||
11F
(CD区画) |
145.57 坪 481.22 ㎡ |
※現在空室情報はございません |
※現在空室情報は 確認する |
|||||
12F |
267.62 坪 884.69 ㎡ |
※現在空室情報はございません |
※現在空室情報は 確認する |
|||||
12F
(1区画) |
62.43 坪 206.38 ㎡ |
※現在空室情報はございません |
※現在空室情報は 確認する |
|||||
12F
(2区画) |
82.21 坪 271.77 ㎡ |
※現在空室情報はございません |
※現在空室情報は 確認する |
|||||
12F
(3区画) |
71.61 坪 236.73 ㎡ |
※現在空室情報はございません |
※現在空室情報は 確認する |
|||||
12F
(4区画) |
73.78 坪 243.9 ㎡ |
※現在空室情報はございません |
※現在空室情報は 確認する |
|||||
12F
(5区画) |
134.04 坪 443.11 ㎡ |
※現在空室情報はございません |
※現在空室情報は 確認する |
|||||
13F |
290.77 坪 961.22 ㎡ |
※現在空室情報はございません |
※現在空室情報は 確認する |
|||||
13F
(A区画) |
70.42 坪 232.79 ㎡ |
※現在空室情報はございません |
※現在空室情報は 確認する |
|||||
13F
(B区画) |
90.59 坪 299.47 ㎡ |
※現在空室情報はございません |
※現在空室情報は 確認する |
|||||
13F
(C区画) |
60.61 坪 200.36 ㎡ |
※現在空室情報はございません |
※現在空室情報は 確認する |
|||||
13F
(D区画) |
69.15 坪 228.59 ㎡ |
※現在空室情報はございません |
※現在空室情報は 確認する |
|||||
14F |
284.29 坪 939.8 ㎡ |
※現在空室情報はございません |
※現在空室情報は 確認する |
|||||
14F
(A区画) |
71.81 坪 237.39 ㎡ |
※現在空室情報はございません |
※現在空室情報は 確認する |
|||||
14F
(B区画) |
80.55 坪 266.28 ㎡ |
※現在空室情報はございません |
※現在空室情報は 確認する |
|||||
14F
(C区画) |
61.52 坪 203.37 ㎡ |
※現在空室情報はございません |
※現在空室情報は 確認する |
|||||
14F
(D区画) |
70.41 坪 232.76 ㎡ |
※現在空室情報はございません |
※現在空室情報は 確認する |
|||||
15F |
284.29 坪 939.8 ㎡ |
※現在空室情報はございません |
※現在空室情報は 確認する |
|||||
15F
(B区画) |
80.55 坪 266.28 ㎡ |
※現在空室情報はございません |
※現在空室情報は 確認する |
|||||
16F |
302.59 坪 1000.3 ㎡ |
※現在空室情報はございません |
※現在空室情報は 確認する |
|||||
17F |
302.59 坪 1000.3 ㎡ |
※現在空室情報はございません |
※現在空室情報は 確認する |
|||||
18F |
303.5 坪 1003.3 ㎡ |
※現在空室情報はございません |
※現在空室情報は 確認する |
|||||
19F |
303.5 坪 1003.3 ㎡ |
※現在空室情報はございません |
※現在空室情報は 確認する |
|||||
19F
(1区画) |
162.06 坪 535.73 ㎡ |
※現在空室情報はございません |
※現在空室情報は 確認する |
|||||
19F
(CD区画) |
141.44 坪 467.57 ㎡ |
※現在空室情報はございません |
※現在空室情報は 確認する |
|||||
19F
(D区画) |
70.01 坪 231.44 ㎡ |
※現在空室情報はございません |
※現在空室情報は 確認する |
|||||
20F |
303.5 坪 1003.3 ㎡ |
※現在空室情報はございません |
※現在空室情報は 確認する |
|||||
20F
(1区画) |
138.05 坪 456.36 ㎡ |
※現在空室情報はございません |
※現在空室情報は 確認する |
|||||
20F
(2区画) |
165.45 坪 546.94 ㎡ |
※現在空室情報はございません |
※現在空室情報は 確認する |
|||||
21F |
303.5 坪 1003.3 ㎡ |
※現在空室情報はございません |
※現在空室情報は 確認する |
|||||
22F |
303.5 坪 1003.3 ㎡ |
※現在空室情報はございません |
※現在空室情報は 確認する |
お問い合わせ
似た条件の物件はこちら
-
リバーサイド品川港南ビル
東京都品川区東品川1-2-5
坪数:139.6 坪
坪単価:14,000 円(坪)
-
品川シーサイドパークタワー
東京都品川区東品川4-12-4
坪数:151.77 坪
坪単価:15,455 円(坪)
-
大井町センタービル
東京都品川区大井1-24-5
坪数:154.49 坪
坪単価:13,600 円(坪)
-
JSCビル
東京都品川区南大井5-26-12
坪数:145.66 坪
坪単価:8,000 円(坪)
-
第3小池ビル
東京都品川区北品川1-1-11
坪数:139.76 坪
坪単価:10,017 円(坪)
-
HarborOneBldg
東京都品川区東品川2-5-5
坪数:100.64 坪
坪単価:12,000 円(坪)
-
シーフォートスクエアセンタービル
東京都品川区東品川2-3-12
坪数:126.81 坪
坪単価:15,413 円(坪)
-
第2小池ビル
東京都品川区北品川1-1-16
坪数:111.8 坪
坪単価:8,951 円(坪)