カノウビル(物件No:11289138)
カノウビルは、品川区西五反田にある貸事務所物件です。最寄駅はJR、都営浅草線、東急池上線五反田駅となっています。2000年竣工で、基準階が44.72坪の賃貸オフィスビルです。床はOAフロアとなっています。トイレは室外男女別で、空調は個別空調です。エレベーターは1基あります。複数路線利用可能で交通アクセスの良い、品川区西五反田の貸事務所です。
-
物件情報
-
設備情報
- トイレ
- 室内男女別
- 床
- フリーアクセス
- 空調
- 個別空調
- セキュリティ
- 有
- 駐車場
- -
- 会議室
- -
- エレベーター
- 1基
- 天井高
- 2550mm
-
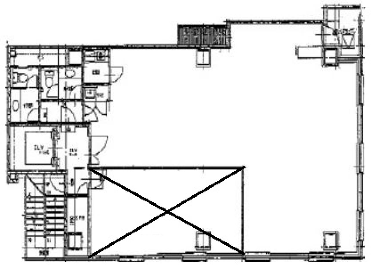
間取り図
-
近隣相場情報
西五反田1丁目(30~40坪)の相場
15629 円 (坪)
※ビルサク調べ
周辺地図
カノウビルは、品川区西五反田にある貸事務所物件です。最寄駅はJR、都営浅草線、東急池上線五反田駅となっています。2000年竣工で、基準階が44.72坪の賃貸オフィスビルです。床はOAフロアとなっています。トイレは室外男女別で、空調は個別空調です。エレベーターは1基あります。複数路線利用可能で交通アクセスの良い、品川区西五反田の貸事務所です。
全フロア情報
更新日:2025年11月5日
| 階 | 面積 | 賃料 | 共益費 | 敷金 | 入居日 | お問合せ | お気に入り | |
|---|---|---|---|---|---|---|---|---|
| B1F |
42.25 坪 139.67 ㎡ |
※現在空室情報はございません |
※現在空室情報は 確認する |
|||||
| 4F |
44.72 坪 147.83 ㎡ |
※現在空室情報はございません |
※現在空室情報は 確認する |
|||||
| 5F |
44.72 坪 147.83 ㎡ |
※現在空室情報はございません |
※現在空室情報は 確認する |
|||||
| 6F |
44.72 坪 147.83 ㎡ |
※現在空室情報はございません |
※現在空室情報は 確認する |
|||||
|
8F
(1区画) |
32.41 坪 107.14 ㎡ |
※現在空室情報はございません |
※現在空室情報は 確認する |
|||||
お問い合わせ
似た条件の物件はこちら
-
トラスト・リンク第Ⅲビル
東京都品川区上大崎2-13-45
坪数:28.37 坪
坪単価:19,017 円(坪)
-
ファミネスハイツ海老澤
東京都品川区大崎4-6-8
坪数:39 坪
坪単価:10,256 円(坪)
-
東京モリスビル第10
東京都品川区西五反田7-16-3
坪数:26.33 坪
坪単価:14,500 円(坪)
-
THE GATE GOTANDA EAST
東京都品川区東五反田1-25-11
坪数:40.16 坪
坪単価:27,000 円(坪)
-
いちご五反田ビル
東京都品川区東五反田1-13-12
坪数:31.89 坪
坪単価:19,000 円(坪)
-
Y.BLDG
東京都品川区西五反田6-24-15
坪数:27.6 坪
坪単価:12,000 円(坪)
-
神野商事第二ビル
東京都品川区東五反田1-20-7
坪数:40.44 坪
坪単価:10,989 円(坪)
-
吾作ビル
東京都品川区西五反田1-29-2
坪数:35 坪
坪単価:13,000 円(坪)
-
五反田第三花谷ビル
東京都品川区東五反田5-28-9
坪数:38 坪
坪単価:12,500 円(坪)
-
オフィスサークルN五反田
東京都品川区東五反田5-22-37
坪数:33.59 坪
坪単価:14,000 円(坪)