銀座ビル(物件No:11289118)
銀座ビルは、台東区浅草橋にある貸事務所物件です。最寄り駅は、JR中央・総武線、都営浅草線の浅草橋駅、都営浅草線、都営大江戸線の蔵前駅、JR中央・総武線の両国駅、都営大江戸線の新御徒町駅です。1990年竣工で、基準階が22.66坪の賃貸オフィスビルです。空調は個別空調で、トイレは室内にあります。エレベーターは1基あります。複数路線利用可能な、アクセスの良い台東区浅草橋の貸事務所です。
-
物件情報
-
設備情報
- トイレ
- 室内
- 床
- -
- 空調
- 個別空調
- セキュリティ
- -
- 駐車場
- -
- 会議室
- -
- エレベーター
- 1基
- 天井高
- -
-
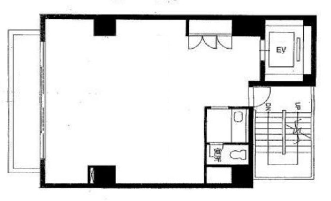
間取り図
-
近隣相場情報
浅草橋3丁目(20坪以下)の相場
11911 円 (坪)
※ビルサク調べ
周辺地図
銀座ビルは、台東区浅草橋にある貸事務所物件です。最寄り駅は、JR中央・総武線、都営浅草線の浅草橋駅、都営浅草線、都営大江戸線の蔵前駅、JR中央・総武線の両国駅、都営大江戸線の新御徒町駅です。1990年竣工で、基準階が22.66坪の賃貸オフィスビルです。空調は個別空調で、トイレは室内にあります。エレベーターは1基あります。複数路線利用可能な、アクセスの良い台東区浅草橋の貸事務所です。
全フロア情報
更新日:2025年10月7日
| 階 | 面積 | 賃料 | 共益費 | 敷金 | 入居日 | お問合せ | お気に入り | |
|---|---|---|---|---|---|---|---|---|
| 2F |
22.66 坪 74.91 ㎡ |
※現在空室情報はございません |
※現在空室情報は 確認する |
|||||
| 5F |
22.66 坪 74.91 ㎡ |
181,280 円 8,000 円(坪) |
67,980 円 3,000 円(坪) |
1,450,240 円 8 ヶ月 |
即日 |
|
|
|
| 6F |
21.29 坪 70.38 ㎡ |
※現在空室情報はございません |
※現在空室情報は 確認する |
|||||
| 7F |
17.22 坪 56.93 ㎡ |
※現在空室情報はございません |
※現在空室情報は 確認する |
|||||
| 9F |
8.66 坪 28.63 ㎡ |
※現在空室情報はございません |
※現在空室情報は 確認する |
|||||
お問い合わせ
似た条件の物件はこちら
-
大島屋浅草橋ビル
東京都台東区柳橋1-13-5
坪数:16 坪
坪単価:15,625 円(坪)
-
三筋クレセントビル
東京都台東区三筋1-9-4
坪数:19.78 坪
坪単価:7,009 円(坪)
-
堀ビル
東京都台東区浅草橋3-11-1
坪数:18.02 坪
坪単価:9,989 円(坪)
-
大手山ビル
東京都台東区柳橋1-7-7
坪数:15.70 坪
坪単価:10,000 円(坪)
-
原田ビル
東京都台東区浅草橋5-9-7
坪数:19.63 坪
坪単価:9,424 円(坪)
-
浅草橋STビル
東京都台東区浅草橋1-13-6
坪数:21.25 坪
坪単価:9,500 円(坪)
-
浅草1丁目戸建店舗
東京都台東区浅草1-7-5
坪数:14.00 坪
坪単価:21,429 円(坪)
-
松田ビル
東京都台東区浅草橋4-10-2
坪数:17.3 坪
坪単価:8,092 円(坪)
-
信成ビル
東京都台東区浅草橋1-10-7
坪数:21.28 坪
坪単価:16,191 円(坪)
-
田中第1ビル
東京都台東区浅草橋3-22-2
坪数:15.73 坪
坪単価:12,715 円(坪)