西新宿三晃ビル(物件No:11285107)
西新宿三晃ビルは新宿区西新宿にある地下1階、地上4階建ての賃貸事務所です。最寄駅は西武新宿線の西武新宿駅から徒歩5分、東京メトロ丸ノ内線の西新宿駅から徒歩5分、JR中央・総武線の大久保駅から徒歩5分、都営大江戸線の新宿西口駅から徒歩6分、JR線の新大久保駅から徒歩7分です。1987年9月竣工の基準階面積が198.21坪の鉄骨鉄筋コンクリート造です。設備としては、エレベーターが1基あり、駐車場もあります。セキュリティは機械警備です。トイレは男女別です。空調は個別空調です。床仕様はフリーアクセスです。天高は2450mmです。耐震設計となっている、複数駅利用可能なアクセスの良い新宿区西新宿の賃貸オフィスです。
| 階 | 面積 | 賃料 | 共益費 | 敷金 | 入居日 | お問合せ | お気に入り |
|---|---|---|---|---|---|---|---|
|
4F
(402区画) |
123.52 坪 408.33 ㎡ |
相談 |
込 |
12ヶ月 |
2026/07 |
|
|
| 階 | 面積 | 賃料 | 共益費 | 敷金 | 入居日 | お問合せ | お気に入り |
|---|---|---|---|---|---|---|---|
|
4F
(402区画) |
123.52 坪 408.33 ㎡ |
相談 |
込 |
12ヶ月 |
2026/07 |
|
|
-
物件情報
-
設備情報
- トイレ
- 室外男女別
- 床
- フリーアクセス
- 空調
- 個別空調
- セキュリティ
- 有
- 駐車場
- 有
- 会議室
- -
- エレベーター
- 1基
- 天井高
- 2450mm
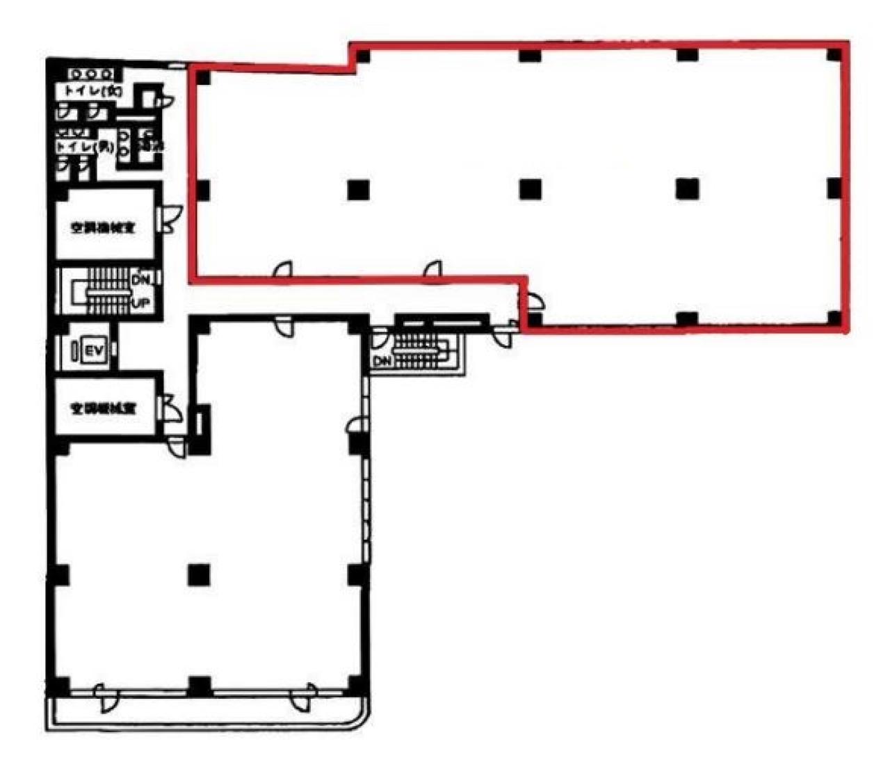
-
間取り図
-
近隣相場情報
西新宿7丁目(100坪以上)の相場
30000 円 (坪)
※ビルサク調べ
周辺施設情報
| コンビニ |
セブンイレブン/新宿都税事務所前/350m(徒歩5分) セブンイレブン/北新宿1丁目/190m(徒歩3分) |
|---|---|
| 郵便局/銀行 |
セブン銀行/北新宿1丁目店/[営業時間]24時間営業/190m(徒歩3分) セブン銀行/新宿都税事務所前店/[営業時間]24時間営業/350m(徒歩5分) |
| 飲食店 |
ティーヌンキッチン西新宿店/11時30分~15時00分 17時00分~20時00分/230m(徒歩3分) navi caf?/10時00分~18時00分/180m(徒歩2分) |
| カフェ |
エクセルシオール/カフェ 新宿小滝橋通り店/■通常営業時間 平日 7:00~22:00 土曜 8:00~21:00 日祝 8:00~21:00 /450m(徒歩6分) タリーズ/新宿小滝橋通り店/[営業時間]平日:7:30~22:00(L.O.21:30)土:8:00~21:00 日祝:8:00~20:00/450m(徒歩6分) |
| コインパーキング |
エコロパーク/西新宿第9 [料金] [料金] 全日 夜 20時~8時 最大800円, 全日 終日 15分300円 [最大料金] 月~土 24時間 最大1900円 日曜/祝日 24時間 最大1200円, [台数]40 PARKS PARK/西新宿8丁目第1 [料金] 【昼間】 8:00~20:00 200円 / 30分 【夜間】 20:00~8:00 100円 / 60分 [最大料金] 【24時間最大料金】 全日 1600円 (一回限り) 【夜間最大料金】 全日 20:00~8:00 500円 (一回限り) [台数]2台 |
周辺地図
西新宿三晃ビルは新宿区西新宿にある地下1階、地上4階建ての賃貸事務所です。最寄駅は西武新宿線の西武新宿駅から徒歩5分、東京メトロ丸ノ内線の西新宿駅から徒歩5分、JR中央・総武線の大久保駅から徒歩5分、都営大江戸線の新宿西口駅から徒歩6分、JR線の新大久保駅から徒歩7分です。1987年9月竣工の基準階面積が198.21坪の鉄骨鉄筋コンクリート造です。設備としては、エレベーターが1基あり、駐車場もあります。セキュリティは機械警備です。トイレは男女別です。空調は個別空調です。床仕様はフリーアクセスです。天高は2450mmです。耐震設計となっている、複数駅利用可能なアクセスの良い新宿区西新宿の賃貸オフィスです。
全フロア情報
更新日:2026年2月27日
| 階 | 面積 | 賃料 | 共益費 | 敷金 | 入居日 | お問合せ | お気に入り | |
|---|---|---|---|---|---|---|---|---|
|
1F
(101区画) |
17.16 坪 56.73 ㎡ |
※現在空室情報はございません |
※現在空室情報は 確認する |
|||||
|
2F
(203区画) |
125.73 坪 415.64 ㎡ |
※現在空室情報はございません |
※現在空室情報は 確認する |
|||||
|
3F
(1区画) |
126.2 坪 417.19 ㎡ |
※現在空室情報はございません |
※現在空室情報は 確認する |
|||||
|
4F
(401区画) |
74.69 坪 246.91 ㎡ |
※現在空室情報はございません |
※現在空室情報は 確認する |
|||||
|
4F
(402区画) |
123.52 坪 408.33 ㎡ |
相談 |
込 |
12ヶ月 |
2026/07 |
|
|
|
|
4F
(403区画) |
123.52 坪 408.33 ㎡ |
相談 |
相談 |
12ヶ月 |
2026/07 |
|
|
|
お問い合わせ
似た条件の物件はこちら
-
サンパレス新宿
東京都新宿区西新宿8-12-1
坪数:147 坪
坪単価:218,379 円(坪)
-
西新宿PARKWEST
東京都新宿区西新宿6-12-1
坪数:127.29 坪
坪単価:20,000 円(坪)
-
新宿タツミビル
東京都新宿区西新宿6-16-6
坪数:112.29 坪
坪単価:14,500 円(坪)
-
新宿御苑ビル
東京都新宿区新宿2-3-10
坪数:110.56 坪
坪単価:18,000 円(坪)