HF溜池ビルディング(物件No:11280184)
HF溜池ビルディング(旧:国際溜池ビル)は港区赤坂にある地下1階、地上7階建ての賃貸事務所です。最寄駅は東京メトロ千代田線の赤坂駅から徒歩4分、東京メトロ銀座線の溜池山王駅から徒歩3分、東京メトロ南北線の溜池山王駅から徒歩3分、東京メトロ丸ノ内線の国会議事堂前駅から徒歩7分、東京メトロ千代田線の国会議事堂前駅から徒歩7分です。1992年2月竣工の基準階面積が98.13坪の鉄骨鉄筋コンクリート造です。設備としては、エレベーターが2基あり、駐車場もあります。セキュリティは機械警備です。トイレは男女別です。空調は個別空調です。床仕様はフリーアクセスです。耐震設計となっている、複数路線利用可能なアクセスの良い港区赤坂の賃貸オフィスです。
-
物件情報
-
設備情報
- トイレ
- 室外男女別
- 床
- フリーアクセス
- 空調
- 個別空調
- セキュリティ
- 有
- 駐車場
- 有
- 会議室
- -
- エレベーター
- 2基
- 天井高
- 2500mm
-
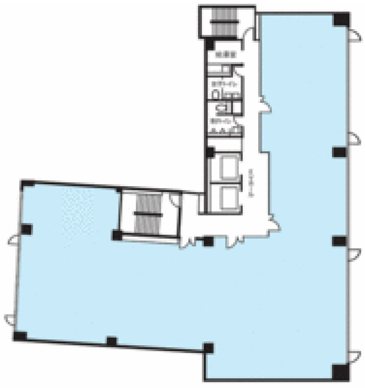
間取り図
-
近隣相場情報
赤坂2丁目(50~100坪)の相場
20000 円 (坪)
※ビルサク調べ
周辺施設情報
| コンビニ |
ローソン/赤坂氷川公園前/350m(徒歩4分) ファミリーマート/山王パークタワー店/450m(徒歩6分) |
|---|---|
| 郵便局/銀行 |
セブン銀行/東京メトロ 銀座線 溜池山王駅 溜池口/[営業時間]5:00~24:00 [備考]1 台/170m(徒歩2分) りそな銀行/赤坂支店/[営業時間]平日/9:00~17:00 [ATM]平日/7:00~23:00 土/7:00~21:00 日・祝/8:00~21:00/190m(徒歩2分) |
| 飲食店 |
新悦園/[月~土] 11:00~23:30(LO.23:00)/180m(徒歩2分) 伊真沁 赤坂店/11:30~14:30、17:30~21:30(L.O)/230m(徒歩3分) |
| カフェ |
宮越屋珈琲/霞が関店/[営業時間]月~金8:00~21:00 (LO 20:30) 土11:00~18:00/800m(徒歩11分) 上島珈琲店/相鉄フレッサイン東京赤坂店/[営業時間]平日 6:30~22:00 / 土日祝 6:30~22:00 [休業日]なし [備考]57席(禁煙:41席、加熱式たばこ専用:16席) ※電源利用可能席あり [取扱]モーニングメニュー ランチメニュー カフェインレスコーヒー テイクアウト可/550m(徒歩7分) |
| コインパーキング |
タイムズ駐車場/赤坂第31 [料金] [全日]0:00~0:00 15分 330円 [最大料金] [全日]駐車後5時間 最大料金1980円 [台数]2 三井のリパーク/赤坂インターシティ駐車場 [料金] 全日 08:00~22:00 30分/200円 全日 22:00~08:00 60分/100円 [最大料金] 【全日】最大料金入庫後12時間以内2900円 [台数]22 |
周辺地図
HF溜池ビルディング(旧:国際溜池ビル)は港区赤坂にある地下1階、地上7階建ての賃貸事務所です。最寄駅は東京メトロ千代田線の赤坂駅から徒歩4分、東京メトロ銀座線の溜池山王駅から徒歩3分、東京メトロ南北線の溜池山王駅から徒歩3分、東京メトロ丸ノ内線の国会議事堂前駅から徒歩7分、東京メトロ千代田線の国会議事堂前駅から徒歩7分です。1992年2月竣工の基準階面積が98.13坪の鉄骨鉄筋コンクリート造です。設備としては、エレベーターが2基あり、駐車場もあります。セキュリティは機械警備です。トイレは男女別です。空調は個別空調です。床仕様はフリーアクセスです。耐震設計となっている、複数路線利用可能なアクセスの良い港区赤坂の賃貸オフィスです。
全フロア情報
更新日:2025年12月22日
| 階 | 面積 | 賃料 | 共益費 | 敷金 | 入居日 | お問合せ | お気に入り | |
|---|---|---|---|---|---|---|---|---|
| B1F |
69.8 坪 230.74 ㎡ |
※現在空室情報はございません |
※現在空室情報は 確認する |
|||||
|
B1F
(1区画) |
57.3 坪 189.42 ㎡ |
※現在空室情報はございません |
※現在空室情報は 確認する |
|||||
|
B1F
(2区画) |
12.96 坪 42.84 ㎡ |
※現在空室情報はございません |
※現在空室情報は 確認する |
|||||
| 1F |
62.18 坪 205.55 ㎡ |
※現在空室情報はございません |
※現在空室情報は 確認する |
|||||
| 2F |
93.09 坪 307.74 ㎡ |
※現在空室情報はございません |
※現在空室情報は 確認する |
|||||
| 5F |
98.13 坪 324.4 ㎡ |
※現在空室情報はございません |
※現在空室情報は 確認する |
|||||
| 6F |
93 坪 307.44 ㎡ |
※現在空室情報はございません |
※現在空室情報は 確認する |
|||||
| 7F |
74.6 坪 246.61 ㎡ |
※現在空室情報はございません |
※現在空室情報は 確認する |
|||||
お問い合わせ
似た条件の物件はこちら
-
第6セイコー
東京都港区赤坂5-1-31
坪数:78 坪
坪単価:14,000 円(坪)
-
近文ビル
東京都港区赤坂6-14-3
坪数:81.75 坪
坪単価:13,000 円(坪)
-
赤坂日本ビル
東京都港区赤坂9-5-24
坪数:92.86 坪
坪単価:22,000 円(坪)
-
SKI赤坂ビル
東京都港区赤坂3-21-16
坪数:84.92 坪
坪単価:21,000 円(坪)