第2五味ビル(物件No:11189103)
第2五味ビルは、中央区銀座にある貸事務所物件で、最寄り駅は地下鉄有楽町線の銀座一丁目駅です。1971年竣工の物件で、基準階54.73坪の賃貸オフィスビルです。昭和通り沿いに位置しています。EV1基設置しており、トイレは男女別です。他に、銀座線京橋駅と銀座駅と多数の駅が利用可能な中央区銀座の貸事務所です。
| 階 | 面積 | 賃料 | 共益費 | 敷金 | 入居日 | お問合せ | お気に入り |
|---|---|---|---|---|---|---|---|
|
4F
(A区画) |
26 坪 85.95 ㎡ |
338,000 円 13,000 円(坪) |
無 |
無 |
即日 |
|
|
| 階 | 面積 | 賃料 | 共益費 | 敷金 | 入居日 | お問合せ | お気に入り |
|---|---|---|---|---|---|---|---|
|
4F
(A区画) |
26 坪 85.95 ㎡ |
338,000 円 13,000 円(坪) |
無 |
無 |
即日 |
|
|
-
物件情報
-
設備情報
- トイレ
- 男女別
- 床
- -
- 空調
- 個別空調
- セキュリティ
- 有
- 駐車場
- -
- 会議室
- -
- エレベーター
- 1基
- 天井高
- -
-
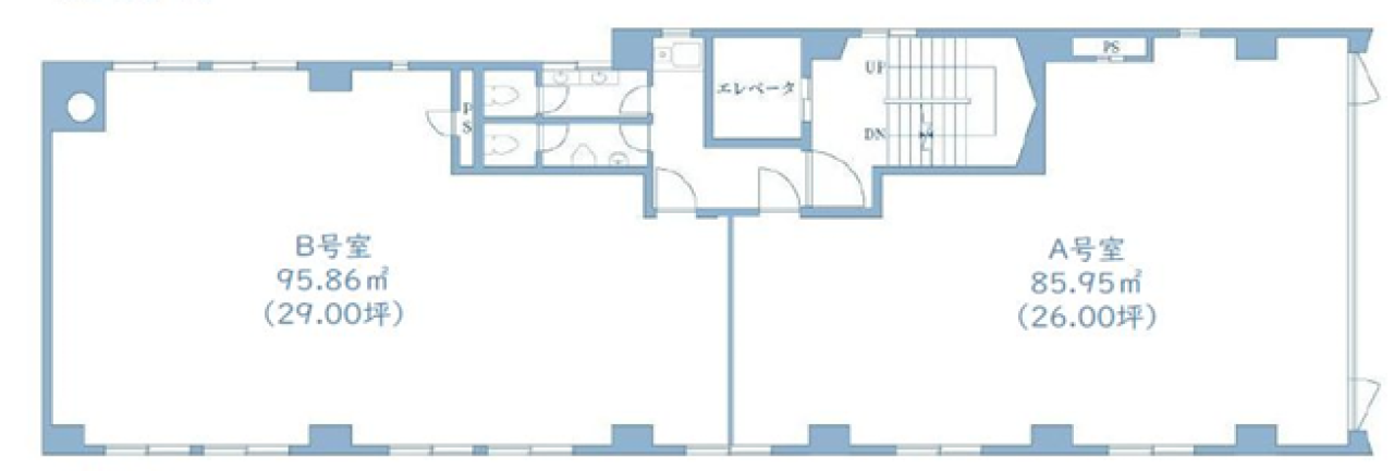
間取り図
-
近隣相場情報
銀座1丁目(20~30坪)の相場
16577 円 (坪)
※ビルサク調べ
周辺施設情報
| コンビニ |
ファミリーマート/銀座柳通り店/78m(徒歩1分) セブンイレブン/銀座1丁目中央/180m(徒歩2分) |
|---|---|
| 郵便局/銀行 |
佐賀銀行/東京支店/[営業時間]平日:9:00~15:00 [ATM]平日:8:45~17:00 [駐車場]-/160m(徒歩2分) セブン銀行/銀座1丁目中央店/[営業時間]24時間営業 [備考]1 台/180m(徒歩2分) |
| 飲食店 |
中国名菜処 悟空/11時00分~15時00分、17時00分~22時30分/180m(徒歩2分) カイバル/11時15分~15時00分/150m(徒歩2分) |
| カフェ |
デリス/銀座店/[営業時間]11:00~23:00 ビュッフェ受付11:00~18:00/250m(徒歩3分) ドトール/銀座柳通り店/[営業時間]平 日:07:00 - 20:00 土曜日:07:30 - 20:00 日 祝:07:30 - 19:00/140m(徒歩2分) |
| コインパーキング |
トラストパーク/【ネットのみ予約可】KIRARITO GINZA [料金] 【時間料金】 30分300円 [最大料金] 【長時間サービス料金】 (07:00~23:15)最大1800円 [台数]63台 タイムズ駐車場/銀座DTビル [料金] 通常料金 / 0:00~0:00 12分 400円 [最大料金] [全日]21:00~9:00 最大料金1500円 [台数]1 |
周辺地図
第2五味ビルは、中央区銀座にある貸事務所物件で、最寄り駅は地下鉄有楽町線の銀座一丁目駅です。1971年竣工の物件で、基準階54.73坪の賃貸オフィスビルです。昭和通り沿いに位置しています。EV1基設置しており、トイレは男女別です。他に、銀座線京橋駅と銀座駅と多数の駅が利用可能な中央区銀座の貸事務所です。
全フロア情報
更新日:2026年3月6日
| 階 | 面積 | 賃料 | 共益費 | 敷金 | 入居日 | お問合せ | お気に入り | |
|---|---|---|---|---|---|---|---|---|
| 3F |
54.73 坪 180.93 ㎡ |
820,950 円 15,000 円(坪) |
164,190 円 3,000 円(坪) |
6,567,600 円 8 ヶ月 |
即日 |
|
|
|
|
3F
(A区画) |
26 坪 85.95 ㎡ |
338,000 円 13,000 円(坪) |
無 |
無 |
即日 |
|
|
|
|
3F
(B区画) |
29 坪 95.86 ㎡ |
377,000 円 13,000 円(坪) |
無 |
無 |
即日 |
|
|
|
| 4F |
54.73 坪 180.93 ㎡ |
※現在空室情報はございません |
※現在空室情報は 確認する |
|||||
|
4F
(A区画) |
26 坪 85.95 ㎡ |
338,000 円 13,000 円(坪) |
無 |
無 |
即日 |
|
|
|
|
4F
(B区画) |
29 坪 95.86 ㎡ |
377,000 円 13,000 円(坪) |
無 |
無 |
即日 |
|
|
|
| 5F |
55 坪 181.82 ㎡ |
715,000 円 13,000 円(坪) |
無 |
無 |
即日 |
|
|
|
| 6F |
55 坪 181.82 ㎡ |
715,000 円 13,000 円(坪) |
無 |
無 |
即日 |
|
|
|
お問い合わせ
似た条件の物件はこちら
-
SRビル
東京都中央区銀座8-12-3
坪数:19.16 坪
坪単価:20,000 円(坪)
-
銀座秀芳ビル
東京都中央区銀座7-10-18
坪数:21.58 坪
坪単価:24,004 円(坪)
-
杉山ビル
東京都中央区銀座7-14-15
坪数:22.8 坪
坪単価:14,035 円(坪)
-
三福ビル
東京都中央区銀座4-8-2
坪数:17.50 坪
坪単価:22,000 円(坪)
-
銀座ワカホビル
東京都中央区銀座5-14-8
坪数:24 坪
坪単価:17,000 円(坪)
-
TRUST VALUE銀座一丁目Ⅱ
東京都中央区銀座1-22-9
坪数:25.36 坪
坪単価:22,279 円(坪)
-
銀座清和ビル
東京都中央区銀座1-20-5
坪数:26.16 坪
坪単価:13,795 円(坪)
-
東銀1ビル
東京都中央区銀座3-10-14
坪数:22 坪
坪単価:19,000 円(坪)
-
銀座三真ビル
東京都中央区銀座5-15-19
坪数:23.3 坪
坪単価:22,002 円(坪)