MOAビル(物件No:11187077)
MOAビルは、千代田区外神田にある地上10階建ての賃貸事務所です。最寄駅は東京メトロ銀座線の末広町駅から徒歩2分、東京メトロ千代田線の湯島駅から徒歩4分、JR線の秋葉原駅から徒歩8分、都営大江戸線の上野御徒町駅から徒歩8分、JR中央・総武線の御茶ノ水駅から徒歩9分です。1983年8月竣工の基準階面積が39.62坪の鉄骨鉄筋コンクリート造です。設備としては、エレベーターが1基あります。駐車場もあります。セキュリティは機械警備です。耐震設計となっている、複数路線利用可能なアクセスの良い千代田区外神田の賃貸オフィスです。
-
物件情報
-
設備情報
- トイレ
- 室外男女別
- 床
- -
- 空調
- 個別空調
- セキュリティ
- 有
- 駐車場
- 有
- 会議室
- -
- エレベーター
- 1基
- 天井高
- -
-
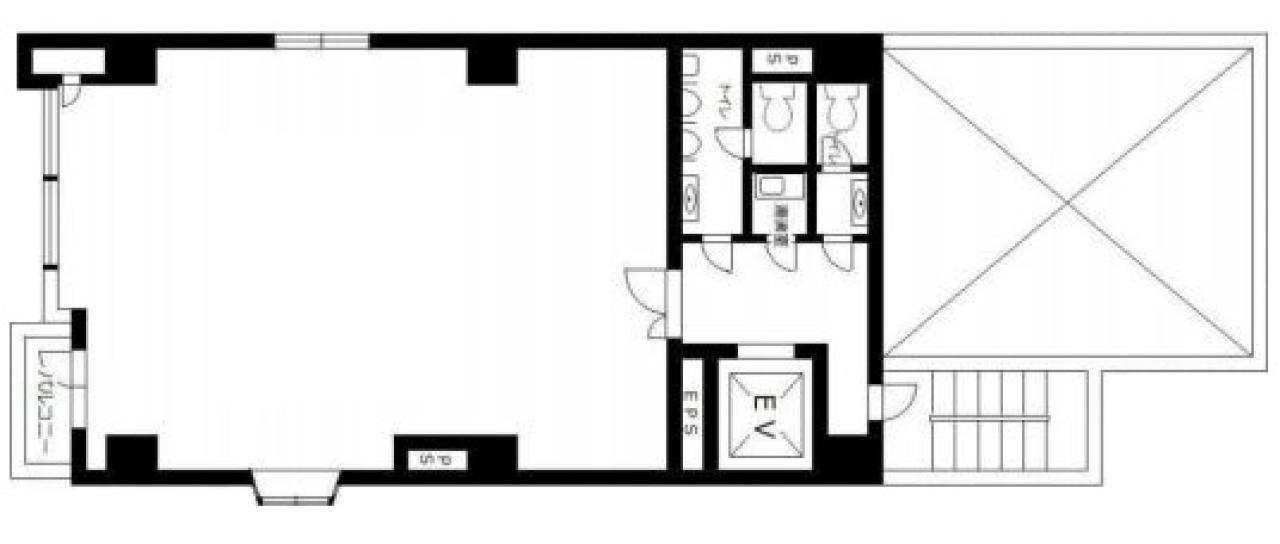
間取り図
-
近隣相場情報
外神田6丁目(30~40坪)の相場
17611 円 (坪)
※ビルサク調べ
周辺施設情報
| コンビニ |
セブンイレブン/外神田2丁目妻恋坂/120m(徒歩2分) ファミリーマート/外神田四丁目店/350m(徒歩4分) |
|---|---|
| 郵便局/銀行 |
信用組合/第一勧業信用組合 秋葉原支店/160m(徒歩2分) 郵便局/上野黒門/[駐車場]なし [取扱]郵便/貯金/保険/ATM/450m(徒歩6分) |
| 飲食店 |
ジョナサン 妻恋坂店/8時00分~23時30分/41m(徒歩1分) 過橋米線 秋葉原店/11時30分~14時30分、17時00分~23時30分/73m(徒歩1分) |
| カフェ |
Akiba Sanatorium/12時00分~5時00分/160m(徒歩2分) はいどあんどしーく/17時00分~23時00分/40m(徒歩1分) |
| コインパーキング |
タイムズ駐車場/外神田第2 [料金] [全日]0:00~0:00 20分 440円 [最大料金] [全日]8:00~22:00 最大料金3300円 [全日]22:00~8:00 最大料金550円 [台数]4 SANパーク/ザ・メイド [料金] 8時~22時 15分300円 22時~8時 60分100円 [最大料金] 昼(8時~22時)最大2700円 夜間(22時~8時)最大500円 [台数]車:20台 (内・月極)車:4台 |
周辺地図
MOAビルは、千代田区外神田にある地上10階建ての賃貸事務所です。最寄駅は東京メトロ銀座線の末広町駅から徒歩2分、東京メトロ千代田線の湯島駅から徒歩4分、JR線の秋葉原駅から徒歩8分、都営大江戸線の上野御徒町駅から徒歩8分、JR中央・総武線の御茶ノ水駅から徒歩9分です。1983年8月竣工の基準階面積が39.62坪の鉄骨鉄筋コンクリート造です。設備としては、エレベーターが1基あります。駐車場もあります。セキュリティは機械警備です。耐震設計となっている、複数路線利用可能なアクセスの良い千代田区外神田の賃貸オフィスです。
全フロア情報
更新日:2025年9月30日
| 階 | 面積 | 賃料 | 共益費 | 敷金 | 入居日 | お問合せ | お気に入り | |
|---|---|---|---|---|---|---|---|---|
| 2F |
39.62 坪 130.98 ㎡ |
※現在空室情報はございません |
※現在空室情報は 確認する |
|||||
| 3F |
39.62 坪 130.98 ㎡ |
※現在空室情報はございません |
※現在空室情報は 確認する |
|||||
| 4F |
31.03 坪 102.58 ㎡ |
※現在空室情報はございません |
※現在空室情報は 確認する |
|||||
|
5F
(501区画) |
31.03 坪 102.58 ㎡ |
※現在空室情報はございません |
※現在空室情報は 確認する |
|||||
| 6F |
31.03 坪 102.58 ㎡ |
※現在空室情報はございません |
※現在空室情報は 確認する |
|||||
| 7F |
31.02 坪 102.55 ㎡ |
※現在空室情報はございません |
※現在空室情報は 確認する |
|||||
| 9F |
31.02 坪 102.55 ㎡ |
※現在空室情報はございません |
※現在空室情報は 確認する |
|||||
お問い合わせ
似た条件の物件はこちら
-
大手町ゲートビルディング
東京都千代田区内神田1-31-11
坪数:34.8 坪
坪単価:70,402 円(坪)
-
日光ビル
東京都千代田区神田小川町1-1-4
坪数:34.94 坪
坪単価:15,000 円(坪)
-
M&Cビル
東京都千代田区神田小川町2-3-13
坪数:34.42 坪
坪単価:15,500 円(坪)
-
新八光ビル
東京都千代田区内神田3-22-9
坪数:38.3 坪
坪単価:20,000 円(坪)
-
第八東誠ビル
東京都千代田区岩本町2-11-3
坪数:25.82 坪
坪単価:12,000 円(坪)
-
神田中沢ビル
東京都千代田区外神田6-14-12
坪数:28.5 坪
坪単価:10,526 円(坪)
-
KSKビル
東京都千代田区外神田5-1-15
坪数:39.4 坪
坪単価:16,000 円(坪)
-
新東ビル
東京都千代田区内神田2-8-3
坪数:21.5 坪
坪単価:12,000 円(坪)
-
いちご大手町ノースビル
東京都千代田区内神田1-15-7
坪数:31.89 坪
坪単価:29,000 円(坪)
-
ism神田
東京都千代田区神田東松下町48
坪数:31.72 坪
坪単価:16,000 円(坪)
関連エリアから探す
- 内神田
- 神田淡路町
- 神田小川町
- 神田鍛冶町
- 神田須田町
- 神田駿河台
- 神田多町
- 神田司町
- 神田錦町
- 神田美土代町
- 岩本町
- 鍛冶町
- 神田岩本町
- 神田北乗物町
- 神田紺屋町
- 神田富山町
- 神田西福田町
- 神田東松下町
- 神田東紺屋町
- 神田美倉町
- 東神田
- 神田相生町
- 神田和泉町
- 神田佐久間町
- 神田佐久間河岸
- 神田練塀町
- 神田花岡町
- 神田松永町
- 外神田
- 神田平河町