秋葉原フコク生命ビル(物件No:11186089)
秋葉原センタープレイスは、千代田区神田相生町にある貸事務所物件です。最寄り駅は、東京メトロ丸ノ内線の淡路町駅、東京メトロ銀座線、JR線の神田駅、都営新宿線の岩本町駅、都営新宿線の小川町駅、JR線の秋葉原駅、東京メトロ銀座線、JR線の神田駅、東京メトロ千代田線の新御茶ノ水駅です。2007年竣工で、基準階が169.33坪の賃貸オフィスビルです。天高は2700mmで、床はOAフロアとなっております。空調は個別空調で、トイレは男女別です。機械警備で、エレベーターは3基あります。駐車場があり、複数路線利用可能な、アクセスの良い千代田区神田相生町の貸事務所です。
| 階 | 面積 | 賃料 | 共益費 | 敷金 | 入居日 | お問合せ | お気に入り |
|---|---|---|---|---|---|---|---|
| 12F |
169.01 坪 558.71 ㎡ |
相談 |
相談 |
12ヶ月 |
2026/08 |
|
|
| 階 | 面積 | 賃料 | 共益費 | 敷金 | 入居日 | お問合せ | お気に入り |
|---|---|---|---|---|---|---|---|
| 12F |
169.01 坪 558.71 ㎡ |
相談 |
相談 |
12ヶ月 |
2026/08 |
|
|
-
物件情報
-
設備情報
- トイレ
- -
- 床
- フリーアクセス
- 空調
- 個別空調
- セキュリティ
- 有
- 駐車場
- 有
- 会議室
- -
- エレベーター
- 3基
- 天井高
- 2700mm
-
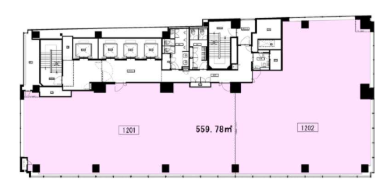
間取り図
-
近隣相場情報
神田相生町1丁目(100坪以上)の相場
34000 円 (坪)
※ビルサク調べ
周辺施設情報
| コンビニ |
セブンイレブン/秋葉原センタープレイス/4m(徒歩1分) セブンイレブン/秋葉原駅北/150m(徒歩2分) |
|---|---|
| 郵便局/銀行 |
セブン銀行/秋葉原センタープレイス店/[営業時間]24時間営業 [備考]1 台/4m(徒歩1分) りそな銀行/ATM ヨドバシAkiba出張所/[営業時間]全日/7:00~24:00 ※毎月第二土曜日23:00~翌日8:00はご利用になれません/200m(徒歩3分) |
| 飲食店 |
マクドナルド 秋葉原駅前店/24 時間営業/65m(徒歩1分) GUNDAM Cafe TOKYO BRAND CORE/10時00分~20時00分/280m(徒歩3分) |
| カフェ |
スターバックス/JR秋葉原駅ラチ内店/[営業時間]月~金:7:00~22:00 土:7:00~21:00 日祝:8:00~21:00 ※臨時営業時間のお知らせ 下記の日程は臨時の営業時間となります。2021年3月1日~2021年3月6日 営業時間:7:00~20:00 2021年3月7日 営業時間:8:00~20:00 [休業日]不定休/43m(徒歩1分) Brioche Doree ヨドバシAkiba店/7時00分~20時00分/170m(徒歩2分) |
| コインパーキング |
KF-Park/秋葉原I'MKビル [料金] 300円/30分 [最大料金] 月~金24時間最大1,500円 土日祝・特定日(12/29~1/3)24時間最大2,400円 [台数]30台 タイムズ/ヨドバシAkiba [料金] [月~金]通常料金 / 7:30~0:00 60分 600円(ただし60分以降30分 300円) [土・日・祝]通常料金 / 7:30~0:00 60分 600円(ただし60分以降30分 300円) [最大料金] [月~金]当日1日最大料金2000円(24時迄) [台数]504 |
周辺地図
秋葉原センタープレイスは、千代田区神田相生町にある貸事務所物件です。最寄り駅は、東京メトロ丸ノ内線の淡路町駅、東京メトロ銀座線、JR線の神田駅、都営新宿線の岩本町駅、都営新宿線の小川町駅、JR線の秋葉原駅、東京メトロ銀座線、JR線の神田駅、東京メトロ千代田線の新御茶ノ水駅です。2007年竣工で、基準階が169.33坪の賃貸オフィスビルです。天高は2700mmで、床はOAフロアとなっております。空調は個別空調で、トイレは男女別です。機械警備で、エレベーターは3基あります。駐車場があり、複数路線利用可能な、アクセスの良い千代田区神田相生町の貸事務所です。
全フロア情報
更新日:2026年1月22日
| 階 | 面積 | 賃料 | 共益費 | 敷金 | 入居日 | お問合せ | お気に入り | |
|---|---|---|---|---|---|---|---|---|
|
2F
(1区画) |
89.82 坪 296.93 ㎡ |
※現在空室情報はございません |
※現在空室情報は 確認する |
|||||
| 4F |
169 坪 558.68 ㎡ |
※現在空室情報はございません |
※現在空室情報は 確認する |
|||||
| 5F |
169 坪 558.68 ㎡ |
※現在空室情報はございません |
※現在空室情報は 確認する |
|||||
| 6F |
169.33 坪 559.77 ㎡ |
※現在空室情報はございません |
※現在空室情報は 確認する |
|||||
| 7F |
169.01 坪 558.71 ㎡ |
※現在空室情報はございません |
※現在空室情報は 確認する |
|||||
|
7F
(701区画) |
84.58 坪 279.6 ㎡ |
※現在空室情報はございません |
※現在空室情報は 確認する |
|||||
| 8F |
169.01 坪 558.71 ㎡ |
相談 |
相談 |
12ヶ月 |
2027/04 |
|
|
|
| 9F |
169.01 坪 558.71 ㎡ |
※現在空室情報はございません |
※現在空室情報は 確認する |
|||||
|
9F
(901区画) |
55.97 坪 185.02 ㎡ |
相談 |
相談 |
12ヶ月 |
2027/04 |
|
|
|
| 11F |
169.33 坪 559.77 ㎡ |
※現在空室情報はございません |
※現在空室情報は 確認する |
|||||
|
11F
(1区画) |
84.58 坪 279.6 ㎡ |
※現在空室情報はございません |
※現在空室情報は 確認する |
|||||
| 12F |
169.01 坪 558.71 ㎡ |
相談 |
相談 |
12ヶ月 |
2026/08 |
|
|
|
| 15F |
169.33 坪 559.77 ㎡ |
相談 |
相談 |
相談 |
2026/07/01 |
|
|
|
お問い合わせ
似た条件の物件はこちら
関連エリアから探す
- 内神田
- 神田淡路町
- 神田小川町
- 神田鍛冶町
- 神田須田町
- 神田駿河台
- 神田多町
- 神田司町
- 神田錦町
- 神田美土代町
- 岩本町
- 鍛冶町
- 神田岩本町
- 神田北乗物町
- 神田紺屋町
- 神田富山町
- 神田西福田町
- 神田東松下町
- 神田東紺屋町
- 神田美倉町
- 東神田
- 神田相生町
- 神田和泉町
- 神田佐久間町
- 神田佐久間河岸
- 神田練塀町
- 神田花岡町
- 神田松永町
- 外神田
- 神田平河町