繊維会館(物件No:11182111)
繊維会館は中央区日本橋本町にある地下1階、地上8階建ての賃貸事務所です。最寄駅は東京メトロ銀座線の三越前駅から徒歩2分、東京メトロ半蔵門線の三越前駅から徒歩2分、JR総武線快速の新日本橋駅から徒歩2分、都営浅草線の日本橋駅から徒歩9分、東京メトロ日比谷線の小伝馬町駅から徒歩7分、JR線の神田駅から徒歩6分です。1990年4月竣工の基準階面積が113.34坪の鉄骨鉄筋コンクリート造です。設備としては、エレベーターが2基あります。警備は機械警備です。トイレは男女別です。空調はセントラル空調です。床仕様はフリーアクセスです。耐震設計となっている、最寄駅から近くて便利な中央区日本橋本町の賃貸オフィスです。
| 階 | 面積 | 賃料 | 共益費 | 敷金 | 入居日 | お問合せ | お気に入り |
|---|---|---|---|---|---|---|---|
|
8F
(1区画) |
27.37 坪 90.48 ㎡ |
相談 |
135,877 円 4,959 円(坪) |
12ヶ月 |
2026/03/01 |
|
|
| 階 | 面積 | 賃料 | 共益費 | 敷金 | 入居日 | お問合せ | お気に入り |
|---|---|---|---|---|---|---|---|
|
8F
(1区画) |
27.37 坪 90.48 ㎡ |
相談 |
135,877 円 4,959 円(坪) |
12ヶ月 |
2026/03/01 |
|
|
-
物件情報
-
設備情報
- トイレ
- 室外男女別
- 床
- フリーアクセス
- 空調
- セントラル空調
- セキュリティ
- 有
- 駐車場
- 無
- 会議室
- -
- エレベーター
- 2基
- 天井高
- -
-
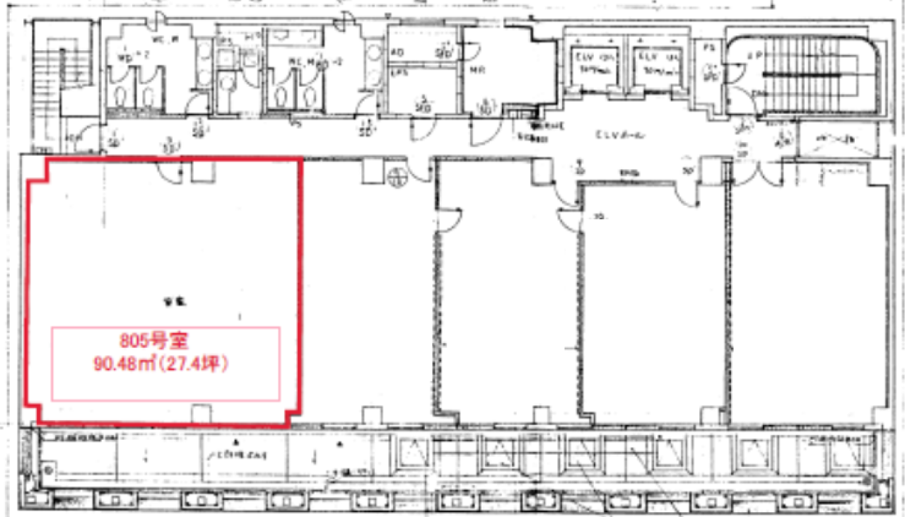
間取り図
-
近隣相場情報
日本橋本町3丁目(20~30坪)の相場
25750 円 (坪)
※ビルサク調べ
周辺施設情報
| コンビニ |
ローソン/日本橋本町二丁目/100m(徒歩1分) ファミリーマート/日本橋本町店/62m(徒歩1分) |
|---|---|
| 郵便局/銀行 |
ローソン銀行/日本橋本町二丁目共同出張所/[営業時間]24時間/100m(徒歩1分) イーネット/ファミリーマート日本橋本町/[営業時間]0:00~24:00/62m(徒歩1分) |
| 飲食店 |
サクレフルール 日本橋/11時30分~15時00分 17時30分~23時00分/70m(徒歩1分) 熟成和牛とシチリアワインせいとう本店/11時00分~15時00分 17時00分~22時00分/220m(徒歩3分) |
| カフェ |
デリフランス/日本橋/[営業時間]7:00~20:00 土 8:00~20:00 日祝 10:00~18:00/170m(徒歩2分) タリーズ/日本橋YUITOアネックス店/[営業時間]平日:7:00~22:00 土:8:00~20:00 日祝:9:00~20:00/160m(徒歩2分) |
| コインパーキング |
三井のリパーク/日本橋本町2丁目第4 [料金] [料金]平日 08:00~22:00 10分/300円 平日 22:00~08:00 60分/100円 [料金]日祝 08:00~22:00 15分/400円 日祝 22:00~08:00 60分/100円 [台数]5 NPD/日本橋室町野村ビル [料金] [営業時間]平日 7:00 ~ 23:00 [営業時間]土曜日 7:00 ~ 23:00 日祝 7:00 ~ 23:00 [備考]屋内 |
周辺地図
繊維会館は中央区日本橋本町にある地下1階、地上8階建ての賃貸事務所です。最寄駅は東京メトロ銀座線の三越前駅から徒歩2分、東京メトロ半蔵門線の三越前駅から徒歩2分、JR総武線快速の新日本橋駅から徒歩2分、都営浅草線の日本橋駅から徒歩9分、東京メトロ日比谷線の小伝馬町駅から徒歩7分、JR線の神田駅から徒歩6分です。1990年4月竣工の基準階面積が113.34坪の鉄骨鉄筋コンクリート造です。設備としては、エレベーターが2基あります。警備は機械警備です。トイレは男女別です。空調はセントラル空調です。床仕様はフリーアクセスです。耐震設計となっている、最寄駅から近くて便利な中央区日本橋本町の賃貸オフィスです。
全フロア情報
更新日:2026年2月25日
| 階 | 面積 | 賃料 | 共益費 | 敷金 | 入居日 | お問合せ | お気に入り | |
|---|---|---|---|---|---|---|---|---|
| 1F |
27.75 坪 91.74 ㎡ |
※現在空室情報はございません |
※現在空室情報は 確認する |
|||||
| 3F |
113.34 坪 374.68 ㎡ |
※現在空室情報はございません |
※現在空室情報は 確認する |
|||||
| 4F |
113.34 坪 374.68 ㎡ |
※現在空室情報はございません |
※現在空室情報は 確認する |
|||||
| 5F |
113.34 坪 374.68 ㎡ |
※現在空室情報はございません |
※現在空室情報は 確認する |
|||||
| 6F |
113.34 坪 374.68 ㎡ |
※現在空室情報はございません |
※現在空室情報は 確認する |
|||||
| 8F |
16.37 坪 54.12 ㎡ |
※現在空室情報はございません |
※現在空室情報は 確認する |
|||||
|
8F
(1区画) |
27.37 坪 90.48 ㎡ |
相談 |
135,877 円 4,959 円(坪) |
12ヶ月 |
2026/03/01 |
|
|
|
|
8F
(805区画) |
27.37 坪 90.48 ㎡ |
※現在空室情報はございません |
※現在空室情報は 確認する |
|||||
お問い合わせ
似た条件の物件はこちら
-
新々会館
東京都中央区日本橋3-14-1
坪数:21.35 坪
坪単価:15,000 円(坪)
-
協同ビル
東京都中央区日本橋本町2-3-6
坪数:19.18 坪
坪単価:8,996 円(坪)
-
京橋エー・エスビルディング
東京都中央区京橋2-9-9
坪数:29.25 坪
坪単価:15,000 円(坪)
-
朝日第3ビル
東京都中央区日本橋本石町4-4-12
坪数:20 坪
坪単価:13,000 円(坪)
-
松木ビル
東京都中央区日本橋3-15-6
坪数:26.24 坪
坪単価:13,000 円(坪)
-
讃金ビル
東京都中央区日本橋本町1-7-10
坪数:26.42 坪
坪単価:13,000 円(坪)
-
山三ビル
東京都中央区日本橋2-6-13
坪数:29.58 坪
坪単価:11,500 円(坪)
-
友泉本石町ビル
東京都中央区日本橋本石町4-5-12
坪数:30.21 坪
坪単価:19,000 円(坪)
-
日東本石町ビル
東京都中央区日本橋本石町4-5-1
坪数:20.86 坪
坪単価:14,000 円(坪)
-
日本橋二丁目ビル
東京都中央区日本橋2-2-21
坪数:17.89 坪
坪単価:19,000 円(坪)