明昌KSビル(物件No:11181198)
明昌KSビルは、豊島区東池袋にある貸事務所物件です。最寄り駅は、JR線、東武東上線、東京メトロ副都心線、東京メトロ丸ノ内線、東京メトロ有楽町線の池袋駅、東京メトロ有楽町線の東池袋駅、都電荒川線の向原駅、東池袋四丁目駅です。1987年竣工で、基準階が21.8坪の賃貸オフィスビルです。空調は個別空調です。エレベーターは1基あります。複数路線利用可能な、アクセスの良い豊島区東池袋の貸事務所です。
| 階 | 面積 | 賃料 | 共益費 | 敷金 | 入居日 | お問合せ | お気に入り |
|---|---|---|---|---|---|---|---|
| 10F |
21.8 坪 72.07 ㎡ |
283,400 円 13,000 円(坪) |
52,600 円 2,413 円(坪) |
1,417,000 円 5 ヶ月 |
即日 |
|
|
| 階 | 面積 | 賃料 | 共益費 | 敷金 | 入居日 | お問合せ | お気に入り |
|---|---|---|---|---|---|---|---|
| 10F |
21.8 坪 72.07 ㎡ |
283,400 円 13,000 円(坪) |
52,600 円 2,413 円(坪) |
1,417,000 円 5 ヶ月 |
即日 |
|
|
-
物件情報
-
設備情報
- トイレ
- 室内男女共用
- 床
- -
- 空調
- -
- セキュリティ
- -
- 駐車場
- -
- 会議室
- -
- エレベーター
- 1基
- 天井高
- -
-
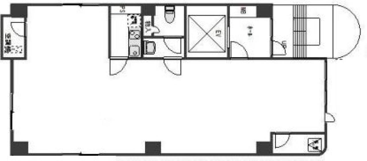
間取り図
-
近隣相場情報
東池袋3丁目(20~30坪)の相場
14014 円 (坪)
※ビルサク調べ
周辺施設情報
| コンビニ |
ファミリーマート/東池袋三丁目店/250m(徒歩3分) セブンイレブン/Iing電波学園/100m(徒歩1分) |
|---|---|
| 郵便局/銀行 |
イーネット/ファミリーマートサンシャインCPH/[営業時間]0:00~24:00/500m(徒歩6分) ゆうちょ/ATM 本店 ファミリーマート東池袋セイコービル店内出張所/[営業時間] [ATM]平日 0:05~23:55 土曜日 0:05~23:55 日曜日・休日 0:05~23:55 [駐車場]なし [取扱]ATM/カードATM [備考]海外発行カードによる現金引き出しサービスにおいて、16言語でご利用いただけます/250m(徒歩4分) |
| 飲食店 |
レストラン幸/11時30分~20時00分/64m(徒歩1分) 串カツ田中 東池袋店/15時00分~23時00分/ |
| カフェ |
ダッキーダック/池袋アルパ店/[営業時間]11:00~22:00/600m(徒歩8分) コメダ珈琲/東池袋一丁目店/[営業時間]7:00~23:00 [休業日]無休 なし [備考]電源/Wi-Fi/デリバリー(出前館)/500m(徒歩7分) |
| コインパーキング |
公社駐車場/池袋六ツ又 [料金] 30分400円(8:00~24:00) 40分100円(0:00~8:00) [最大料金] 夜間最大600円(0:00~8:00) [台数]18台 三井のリパーク/東池袋3丁目第7 [料金] 全日 08:00~20:00 10分/200円 全日 20:00~08:00 10分/200円 [最大料金] 【全日】8:00~20:00以内 最大料金2000円 【全日】20:00~8:00以内 最大料金500円 [台数]1 |
周辺地図
明昌KSビルは、豊島区東池袋にある貸事務所物件です。最寄り駅は、JR線、東武東上線、東京メトロ副都心線、東京メトロ丸ノ内線、東京メトロ有楽町線の池袋駅、東京メトロ有楽町線の東池袋駅、都電荒川線の向原駅、東池袋四丁目駅です。1987年竣工で、基準階が21.8坪の賃貸オフィスビルです。空調は個別空調です。エレベーターは1基あります。複数路線利用可能な、アクセスの良い豊島区東池袋の貸事務所です。
全フロア情報
更新日:2026年3月3日
| 階 | 面積 | 賃料 | 共益費 | 敷金 | 入居日 | お問合せ | お気に入り | |
|---|---|---|---|---|---|---|---|---|
| 2F |
21.8 坪 72.07 ㎡ |
※現在空室情報はございません |
※現在空室情報は 確認する |
|||||
| 3F |
21.8 坪 72.07 ㎡ |
283,400 円 13,000 円(坪) |
52,600 円 2,413 円(坪) |
1,417,000 円 5 ヶ月 |
2026/03 |
|
|
|
| 6F |
21.8 坪 72.07 ㎡ |
※現在空室情報はございません |
※現在空室情報は 確認する |
|||||
| 8F |
21.8 坪 72.07 ㎡ |
※現在空室情報はございません |
※現在空室情報は 確認する |
|||||
| 10F |
21.8 坪 72.07 ㎡ |
283,400 円 13,000 円(坪) |
52,600 円 2,413 円(坪) |
1,417,000 円 5 ヶ月 |
即日 |
|
|
|
お問い合わせ
似た条件の物件はこちら
-
池袋オンダ第二ビル
東京都豊島区池袋2-47-6
坪数:21.15 坪
坪単価:17,000 円(坪)
-
TAMA WOODY GATE IKEBUKURO
東京都豊島区東池袋2-62-10
坪数:16.02 坪
坪単価:18,727 円(坪)
-
メゾンサンシャイン
東京都豊島区東池袋3-1-4
坪数:19.27 坪
坪単価:10,379 円(坪)
-
COSMY-Ⅱ
東京都豊島区池袋2-39-5
坪数:16.99 坪
坪単価:13,537 円(坪)
-
地得ビル
東京都豊島区西池袋1-29-2
坪数:22 坪
坪単価:140,000 円(坪)
-
国土西池ビル
東京都豊島区西池袋3-22-14
坪数:24.98 坪
坪単価:14,812 円(坪)
-
オスカービル
東京都豊島区池袋2-42-3
坪数:22.53 坪
坪単価:33,289 円(坪)
-
サンライズ南池袋
東京都豊島区南池袋3-16-10
坪数:16.48 坪
坪単価:15,777 円(坪)
-
第二尾形ビル
東京都豊島区東池袋2-49-9
坪数:18 坪
坪単価:9,167 円(坪)