山下ビル(物件No:11086125)
山下ビルは、港区浜松町にある貸事務所物件です。最寄り駅はJR浜松町駅、都営大江戸線、浅草線大門駅です。1992年竣工で基準階が22.9坪の賃貸オフィスビルです。トイレは室内男女別で、空調は個別空調です。エレベーターは1基あります。駐車場が利用可能です。複数路線利用可能で交通アクセスの良い、港区浜松町の貸事務所です。
-
物件情報
-
設備情報
- トイレ
- 室内男女別
- 床
- -
- 空調
- -
- セキュリティ
- -
- 駐車場
- 有
- 会議室
- -
- エレベーター
- 1基
- 天井高
- -
-
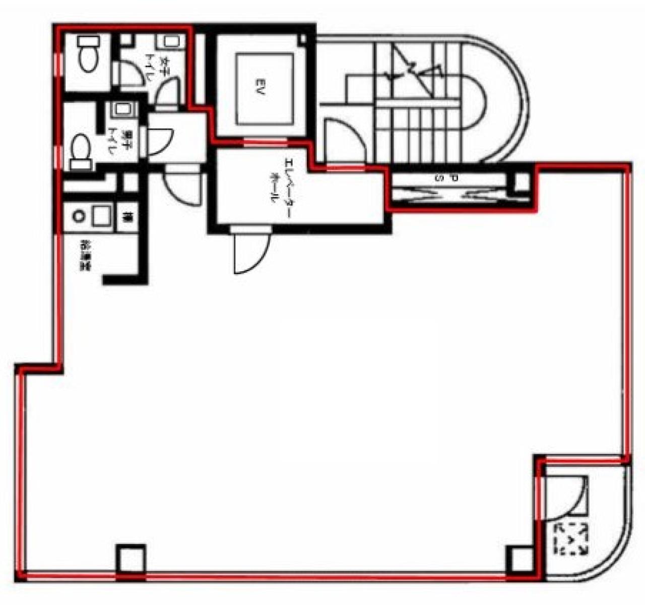
間取り図
-
近隣相場情報
浜松町1丁目(20~30坪)の相場
16870 円 (坪)
※ビルサク調べ
周辺施設情報
| コンビニ |
セブンイレブン/浜松町1丁目中央/31m(徒歩1分) ローソン/ナチュラル 芝大門一丁目/400m(徒歩6分) |
|---|---|
| 郵便局/銀行 |
みずほ銀行/ATM マルエツプチ汐留シオサイト店出張所/[営業時間] [ATM]平日 0:00~24:00 土曜日 0:00~22:00 日曜日 8:00~24:00 祝日・振替休日 曜日に準ずる 備考 通帳繰越機 設置なし/450m(徒歩6分) イーネット/ファミリーマート浜松町一丁目/[営業時間]0:00~24:00/190m(徒歩3分) |
| 飲食店 |
元祖串八珍浜松町2号店/16時00分~23時00分/76m(徒歩1分) 肉萬 浜松町店/17時00分~0時00分/64m(徒歩1分) |
| カフェ |
ドトール/浜松町1丁目店/[営業時間]平日:7:00~21:00 土曜日:7:30~20:00 日 祝:8:30~19:00 [休業日]なし [備考]総席数:30 禁煙席:20 喫煙席:10/200m(徒歩3分) タリーズ/海岸竹芝通り店/[営業時間]平日:7:30~18:00 土 :休業日 日祝:休業日 [備考]Tully's Wi-Fi/350m(徒歩5分) |
| コインパーキング |
名鉄協商パーキング/浜松町 [料金] 全日 20分 (00:00 - 24:00) 400円 [最大料金] 土日祝 (08:00 - 20:00) 1,700円 全日 (20:00 - 08:00) 500円 [台数]4台 コインパーク/芝大門2丁目 [料金] 【月~土】 ■通常料金 【00:00~24:00】15分300円 【日祝】 ■通常料金 【00:00~24:00】15分300円 [最大料金] 【月~土】 ■最大料金 【駐車後3時間以内(1回限り)】2400円 【20:00~8:00】600円 【日祝】 ■最大料金 【駐車後12時間以内(1回限り)】2400円 【20:00~8:00】600円 [台数][車: 4台] |
周辺地図
山下ビルは、港区浜松町にある貸事務所物件です。最寄り駅はJR浜松町駅、都営大江戸線、浅草線大門駅です。1992年竣工で基準階が22.9坪の賃貸オフィスビルです。トイレは室内男女別で、空調は個別空調です。エレベーターは1基あります。駐車場が利用可能です。複数路線利用可能で交通アクセスの良い、港区浜松町の貸事務所です。
全フロア情報
更新日:2021年11月19日
| 階 | 面積 | 賃料 | 共益費 | 敷金 | 入居日 | お問合せ | お気に入り | |
|---|---|---|---|---|---|---|---|---|
| 2F |
22.90 坪 75.70 ㎡ |
※現在空室情報はございません |
※現在空室情報は 確認する |
|||||
| 3F |
22.90 坪 75.70 ㎡ |
※現在空室情報はございません |
※現在空室情報は 確認する |
|||||
| 4F |
22.90 坪 75.70 ㎡ |
※現在空室情報はございません |
※現在空室情報は 確認する |
|||||
| 5F |
22.90 坪 75.70 ㎡ |
※現在空室情報はございません |
※現在空室情報は 確認する |
|||||
| 6F |
22.90 坪 75.70 ㎡ |
※現在空室情報はございません |
※現在空室情報は 確認する |
|||||
| 7F |
22.90 坪 75.70 ㎡ |
※現在空室情報はございません |
※現在空室情報は 確認する |
|||||
お問い合わせ
似た条件の物件はこちら
-
芝松下ビル
東京都港区芝3-3-12
坪数:26.42 坪
坪単価:11,000 円(坪)
-
菅谷ビル
東京都港区三田3-3-5
坪数:18 坪
坪単価:22,667 円(坪)
-
マリンクス・タワー
東京都港区海岸1-9-11
坪数:17.73 坪
坪単価:16,000 円(坪)
-
芝パークビル
東京都港区浜松町2-1-15
坪数:26 坪
坪単価:17,000 円(坪)
-
武藤ビル
東京都港区芝浦3-11-9
坪数:21.35 坪
坪単価:12,000 円(坪)
-
芝サニーハイツ
東京都港区芝5-27-4
坪数:17.28 坪
坪単価:11,574 円(坪)
-
山口ビル
東京都港区芝公園1-7-7
坪数:22 坪
坪単価:11,364 円(坪)
-
EARTH SHIBA BLD
東京都港区芝2-10-6
坪数:22.47 坪
坪単価:29,000 円(坪)
-
奥山ビル
東京都港区芝5-20-10
坪数:23.74 坪
坪単価:12,637 円(坪)
-
TTD PLAZA
東京都港区三田1-2-18
坪数:19.97 坪
坪単価:16,024 円(坪)