いろいろ聞いてみる

東尾久の賃貸オフィス

若林ビル(物件No:10929937)

若林ビルは、荒川区東尾久にある地上5階建ての店舗事務所です。最寄駅はJR山手線の田端駅から徒歩10分です。1979年4月竣工の鉄筋コンクリート造です。ビジネス街として人気のある荒川区東尾久の店舗事務所です。

  • 若林ビル
  • 若林ビル
  • 若林ビル
  • 若林ビル
面積 賃料 共益費 敷金 入居日 お問合せ お気に入り
1-2F

(101区画)

44.43 坪

146.88 ㎡

※現在空室情報はございません

※現在空室情報は
ございません

最新情報を
確認する
  • 物件情報

    住所
    東京都荒川区東尾久4-2-10
    最寄り駅
    JR山手線 田端駅 徒歩10分
    竣工
    1979年
    耐震
    規模・構造
    1F - 5F  鉄筋コンクリート造
  • 設備情報

    トイレ
    室内
    -
    空調
    -
    セキュリティ
    -
    駐車場
    -
    会議室
    -
    エレベーター
    -
    天井高
    -
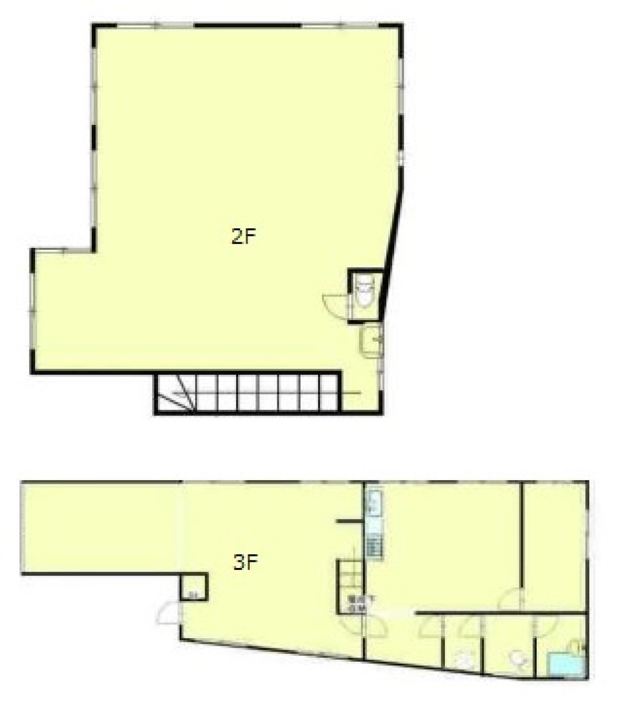
  • 間取り図

    間取り図

  • 近隣相場情報

    東尾久4丁目(40~50坪)の相場

    調査中

周辺地図

若林ビルは、荒川区東尾久にある地上5階建ての店舗事務所です。最寄駅はJR山手線の田端駅から徒歩10分です。1979年4月竣工の鉄筋コンクリート造です。ビジネス街として人気のある荒川区東尾久の店舗事務所です。

全フロア情報

更新日:2024年10月9日

面積 賃料 共益費 敷金 入居日 お問合せ お気に入り
1-2F

(101区画)

44.43 坪

146.88 ㎡

※現在空室情報はございません

※現在空室情報は
ございません

最新情報を
確認する

お問い合わせ

必須
必須
必須
必須
必須

お問い合わせ

物件に関してのお問い合わせ

「失敗しないオフィス移転サポート」物件探しから移転までスムーズで担当者様がとにかく楽になるサービスです。

050-7587-0049平日 9:00~18:00

メールでお問い合わせ

フリーワード検索