赤坂オルムビル(物件No:10824846)
赤坂オルムビルは、港区赤坂にある地上5階建ての賃貸事務所です。最寄駅は東京メトロ銀座線の赤坂見附駅から徒歩5分、東京メトロ丸ノ内線の赤坂見附駅から徒歩5分、東京メトロ千代田線の赤坂駅から徒歩5分です。1990年2月竣工の鉄筋コンクリート造です。設備としては、エレベーターが1基あり、駐車場もあります。セキュリティは機械警備です。トイレは室内男女別です。空調は個別空調です。床仕様はフリーアクセスです。天高は2500mmです。耐震設計となっている、複数駅利用可能なアクセスの良い港区赤坂の賃貸オフィスです。
-
物件情報
-
設備情報
- トイレ
- 室内男女別
- 床
- フリーアクセス
- 空調
- 個別空調
- セキュリティ
- 有
- 駐車場
- 有
- 会議室
- -
- エレベーター
- 1基
- 天井高
- 2500mm
-
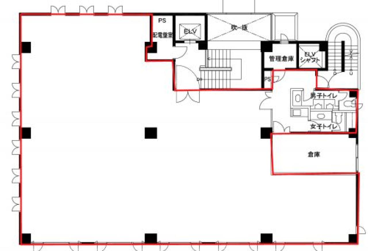
間取り図
-
近隣相場情報
赤坂4丁目(50~100坪)の相場
調査中
周辺地図
赤坂オルムビルは、港区赤坂にある地上5階建ての賃貸事務所です。最寄駅は東京メトロ銀座線の赤坂見附駅から徒歩5分、東京メトロ丸ノ内線の赤坂見附駅から徒歩5分、東京メトロ千代田線の赤坂駅から徒歩5分です。1990年2月竣工の鉄筋コンクリート造です。設備としては、エレベーターが1基あり、駐車場もあります。セキュリティは機械警備です。トイレは室内男女別です。空調は個別空調です。床仕様はフリーアクセスです。天高は2500mmです。耐震設計となっている、複数駅利用可能なアクセスの良い港区赤坂の賃貸オフィスです。
全フロア情報
更新日:2022年2月10日
| 階 | 面積 | 賃料 | 共益費 | 敷金 | 入居日 | お問合せ | お気に入り | |
|---|---|---|---|---|---|---|---|---|
| 1F |
81.35 坪 268.93 ㎡ |
※現在空室情報はございません |
※現在空室情報は 確認する |
|||||
| 1-3F |
252.28 坪 833.98 ㎡ |
※現在空室情報はございません |
※現在空室情報は 確認する |
|||||
| 2F |
86.05 坪 284.46 ㎡ |
※現在空室情報はございません |
※現在空室情報は 確認する |
|||||
| 3F |
84.88 坪 280.59 ㎡ |
※現在空室情報はございません |
※現在空室情報は 確認する |
|||||
お問い合わせ
似た条件の物件はこちら
-
第6セイコー
東京都港区赤坂5-1-31
坪数:78 坪
坪単価:14,000 円(坪)
-
近文ビル
東京都港区赤坂6-14-3
坪数:81.75 坪
坪単価:13,000 円(坪)
-
赤坂日本ビル
東京都港区赤坂9-5-24
坪数:92.86 坪
坪単価:22,000 円(坪)
-
SKI赤坂ビル
東京都港区赤坂3-21-16
坪数:84.92 坪
坪単価:21,000 円(坪)
-
赤坂光映ビル
東京都港区赤坂3-2-6
坪数:93.72 坪
坪単価:26,675 円(坪)
-
アカサカセブンスアヴェニュー
東京都港区赤坂7-10-20
坪数:69.07 坪
坪単価:18,000 円(坪)
-
赤坂Qビル
東京都港区赤坂7-9-5
坪数:66.33 坪
坪単価:2,261 円(坪)