いろいろ聞いてみる

北幸の賃貸オフィス

むつみビル(物件No:10142136)

  • むつみビル
  • むつみビル
  • むつみビル
  • むつみビル
面積 賃料 共益費 敷金 入居日 お問合せ お気に入り
8F

(B区画)

30 坪

99.18 ㎡

※現在空室情報はございません

※現在空室情報は
ございません

最新情報を
確認する
  • 物件情報

    住所
    神奈川県横浜市西区北幸2-10-28
    最寄り駅
    JR京浜東北線 横浜駅 徒歩8分
    竣工
    1978年
    耐震
    規模・構造
    B1F - 8F 
  • 設備情報

    トイレ
    室外男女別
    -
    空調
    個別空調
    セキュリティ
    -
    駐車場
    -
    会議室
    -
    エレベーター
    1基
    天井高
    -
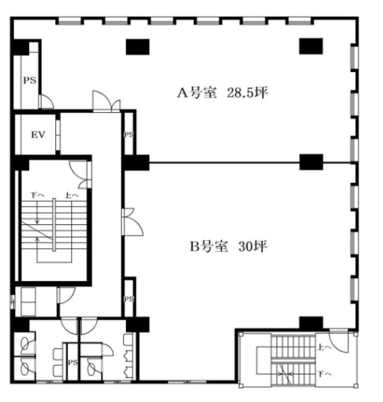
  • 間取り図

    間取り図

  • 近隣相場情報

    北幸2丁目()の相場

    調査中

周辺地図

全フロア情報

更新日:2024年11月6日

面積 賃料 共益費 敷金 入居日 お問合せ お気に入り
3F

58.5 坪

193.39 ㎡

※現在空室情報はございません

※現在空室情報は
ございません

最新情報を
確認する
8F

(B区画)

30 坪

99.18 ㎡

※現在空室情報はございません

※現在空室情報は
ございません

最新情報を
確認する

お問い合わせ

必須
必須
必須
必須
必須

お問い合わせ

物件に関してのお問い合わせ

「失敗しないオフィス移転サポート」物件探しから移転までスムーズで担当者様がとにかく楽になるサービスです。

050-7587-0049平日 9:00~18:00

メールでお問い合わせ

フリーワード検索