ダイアパレス両国(物件No:03247637)
ダイアパレス両国は、墨田区両国にある地上7階建ての貸店舗事務所です。最寄駅はJR中央・総武線の両国駅から徒歩7分です。1992年4月竣工の鉄筋コンクリート造です。設備としては、空調は個別空調です。耐震設計となっている、ビジネス街として人気のある墨田区両国の貸店舗事務所です。
- 
                    
物件情報
 - 
                        
設備情報
- トイレ
 - -
 - 床
 - -
 - 空調
 - 個別空調
 - セキュリティ
 - -
 - 駐車場
 - -
 - 会議室
 - -
 - エレベーター
 - -
 - 天井高
 - -
 
 - 
                        
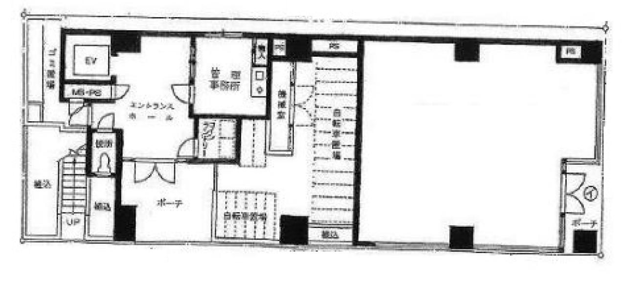
間取り図
 - 
                    
近隣相場情報
両国2丁目(20~30坪)の相場
調査中
 
周辺地図
ダイアパレス両国は、墨田区両国にある地上7階建ての貸店舗事務所です。最寄駅はJR中央・総武線の両国駅から徒歩7分です。1992年4月竣工の鉄筋コンクリート造です。設備としては、空調は個別空調です。耐震設計となっている、ビジネス街として人気のある墨田区両国の貸店舗事務所です。
全フロア情報
更新日:2020年11月27日
| 階 | 面積 | 賃料 | 共益費 | 敷金 | 入居日 | お問合せ | お気に入り | |
|---|---|---|---|---|---|---|---|---|
| 1F | 
             22.09 坪 73.02 ㎡  | 
                    ※現在空室情報はございません | 
                 ※現在空室情報は 確認する  | 
            |||||
お問い合わせ
似た条件の物件はこちら
- 
                    
                        
メゾンドール錦糸町
東京都墨田区錦糸1-5-17
坪数:18.69 坪
坪単価:11,022 円(坪)
 - 
                    
                        
山口ビル
東京都墨田区亀沢3-18-9
坪数:26.89 坪
坪単価:10,785 円(坪)
 - 
                    
                        
MIO両国
東京都墨田区両国2-9-7
坪数:21.08 坪
坪単価:9,488 円(坪)
 - 
                    
                        
そのだビル
東京都墨田区太平1-11-6
坪数:23.91 坪
坪単価:6,274 円(坪)
 - 
                    
                        
TANAKAビル
東京都墨田区千歳1-6-1
坪数:18.53 坪
坪単価:9,174 円(坪)
 - 
                    
                        
西村工機ビル
東京都墨田区両国4-38-9
坪数:20.48 坪
坪単価:7,227 円(坪)