恵比寿KDビル(物件No:02955704)
恵比寿KDビル(旧:(仮)海光電業ビル)は渋谷区恵比寿南にある地上6階建ての賃貸事務所です。最寄駅はJR線の恵比寿駅から徒歩2分、東京メトロ日比谷線の恵比寿駅から徒歩2分です。2017年5月竣工の鉄骨造です。設備としては、エレベーターが2基あります。セキュリティは機械警備です。トイレは室外男女別です。空調は個別空調です。床仕様はフリーアクセスです。天高は2650mmです。耐震設計となっている、最寄駅から近くて便利な渋谷区恵比寿南の賃貸オフィスです。
-
物件情報
-
設備情報
- トイレ
- 室外男女別
- 床
- フリーアクセス
- 空調
- 個別空調
- セキュリティ
- 有
- 駐車場
- -
- 会議室
- -
- エレベーター
- 2基
- 天井高
- 2650mm
-
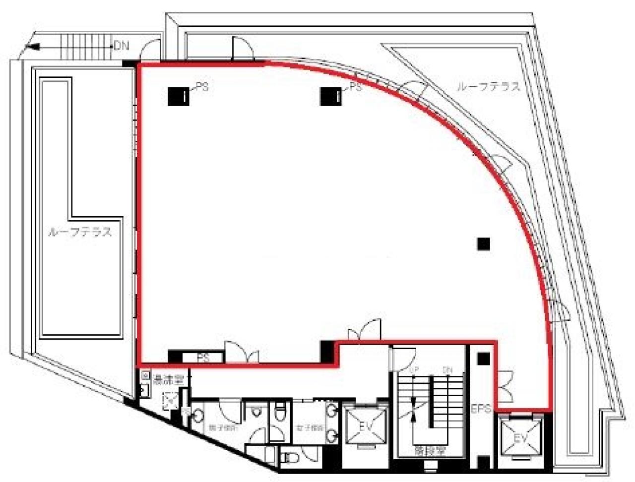
間取り図
-
近隣相場情報
恵比寿南1丁目(50~100坪)の相場
27000 円 (坪)
※ビルサク調べ
周辺施設情報
| コンビニ |
セブンイレブン/恵比寿アメリカ橋/450m(徒歩6分) ローソン/恵比寿西一丁目/350m(徒歩5分) |
|---|---|
| 郵便局/銀行 |
みずほ銀行/ATM 恵比寿駅西口出張所/[営業時間] [ATM]平日 0:00~24:00 土曜日 0:00~22:00 日曜日 8:00~21:00 祝日・振替休日 曜日に準ずる 備考 *月曜日の0:00~7:00はご利用いただけません。*第1・第4土曜日の3:00~5:00はご利用いただけません。*祝日は曜日に応じたご利用時間となりま/350m(徒歩5分) ゆうちょ/ATM 本店 ファミリーマート恵比寿駅東口店内出張所/[営業時間] [ATM]平日 0:05~23:55 土曜日 0:05~23:55 日曜日・休日 0:05~23:55 [駐車場]なし [取扱]ATM/カードATM [備考]海外発行カードによる現金引き出しサービスにおいて、16言語でご利用いただけます/450m(徒歩7分) |
| 飲食店 |
PULS恵比寿店/10時00分~20時00分/100m(徒歩1分) Cheese Tavern CASCINAチーズタバーンカシーナ/11時30分~14時00分、17時30分~22時00分/65m(徒歩1分) |
| カフェ |
ANTICO CAFFE/アトレ恵比寿店/[営業時間]8:00~20:00/350m(徒歩4分) ドトール/恵比寿一丁目店/[営業時間]※営業時間を短縮しております。(~20:00)■通常営業時間 平日 6:45~22:30 土曜 8:00~22:30 日祝 8:00~21:30 [備考]総席数:117(禁煙席:99 喫煙席:18)/喫煙席(加熱)・喫煙ブース(紙・加熱)/500m(徒歩6分) |
| コインパーキング |
大栄パーク/恵比寿EAST [料金] 全日06:00~00:00 15分/400円 全日00:00~06:00 20分/100円 [台数]3 台 アットパーク/恵比寿南 [料金] 自動車 8:00~20:00 200円/10分 20:00~8:00 100円/60分 自転車 全日 100円/12時間 [台数]自動車 2台 自転車 12台 |
周辺地図
恵比寿KDビル(旧:(仮)海光電業ビル)は渋谷区恵比寿南にある地上6階建ての賃貸事務所です。最寄駅はJR線の恵比寿駅から徒歩2分、東京メトロ日比谷線の恵比寿駅から徒歩2分です。2017年5月竣工の鉄骨造です。設備としては、エレベーターが2基あります。セキュリティは機械警備です。トイレは室外男女別です。空調は個別空調です。床仕様はフリーアクセスです。天高は2650mmです。耐震設計となっている、最寄駅から近くて便利な渋谷区恵比寿南の賃貸オフィスです。
全フロア情報
更新日:2025年11月5日
| 階 | 面積 | 賃料 | 共益費 | 敷金 | 入居日 | お問合せ | お気に入り | |
|---|---|---|---|---|---|---|---|---|
| 4F |
90.69 坪 299.8 ㎡ |
※現在空室情報はございません |
※現在空室情報は 確認する |
|||||
| 5F |
78.59 坪 259.8 ㎡ |
※現在空室情報はございません |
※現在空室情報は 確認する |
|||||
| 6F |
51.47 坪 170.15 ㎡ |
※現在空室情報はございません |
※現在空室情報は 確認する |
|||||
お問い合わせ
似た条件の物件はこちら
-
いちご恵比寿西ビル
東京都渋谷区恵比寿西2-7-3
坪数:63.25 坪
坪単価:29,000 円(坪)
-
COM-BOX
東京都渋谷区恵比寿西1-32-16
坪数:55.55 坪
坪単価:15,662 円(坪)
-
CATビル
東京都渋谷区恵比寿西2-3-16
坪数:57.21 坪
坪単価:22,727 円(坪)
-
Planex Wattビル
東京都渋谷区恵比寿南1-16-13
坪数:51.84 坪
坪単価:27,273 円(坪)
-
恵比寿ネオナートアネックス
東京都渋谷区恵比寿4-1-22
坪数:37.03 坪
坪単価:25,000 円(坪)
-
HAGIWARA BLDG.2
東京都渋谷区広尾1-2-2
坪数:42.14 坪
坪単価:21,357 円(坪)
-
シャトレ代官山アネックス
東京都渋谷区代官山町2-6
坪数:47.96 坪
坪単価:17,723 円(坪)
-
ASKビル
東京都渋谷区恵比寿1-24-4
坪数:53.03 坪
坪単価:20,008 円(坪)
-
WILLHAGIYA
東京都渋谷区広尾5-19-10
坪数:37.57 坪
坪単価:14,772 円(坪)
-
三恵51ビル
東京都渋谷区恵比寿1-11-2
坪数:48.68 坪
坪単価:27,000 円(坪)