第二小林ビル(物件No:02916279)
第二小林ビルは港区東麻布にある地上5階建ての賃貸事務所です。最寄駅は都営大江戸線の赤羽橋駅から徒歩1分、都営三田線の芝公園駅から徒歩7分、東京メトロ南北線の麻布十番駅から徒歩8分、都営浅草線の三田駅から徒歩11分です。1980年竣工の鉄筋コンクリート造です。設備としては、空調は個別空調です。複数路線利用可能なアクセスの良い港区東麻布の賃貸オフィスです。
-
物件情報
-
設備情報
- トイレ
- -
- 床
- -
- 空調
- 個別空調
- セキュリティ
- -
- 駐車場
- -
- 会議室
- -
- エレベーター
- -
- 天井高
- -
-
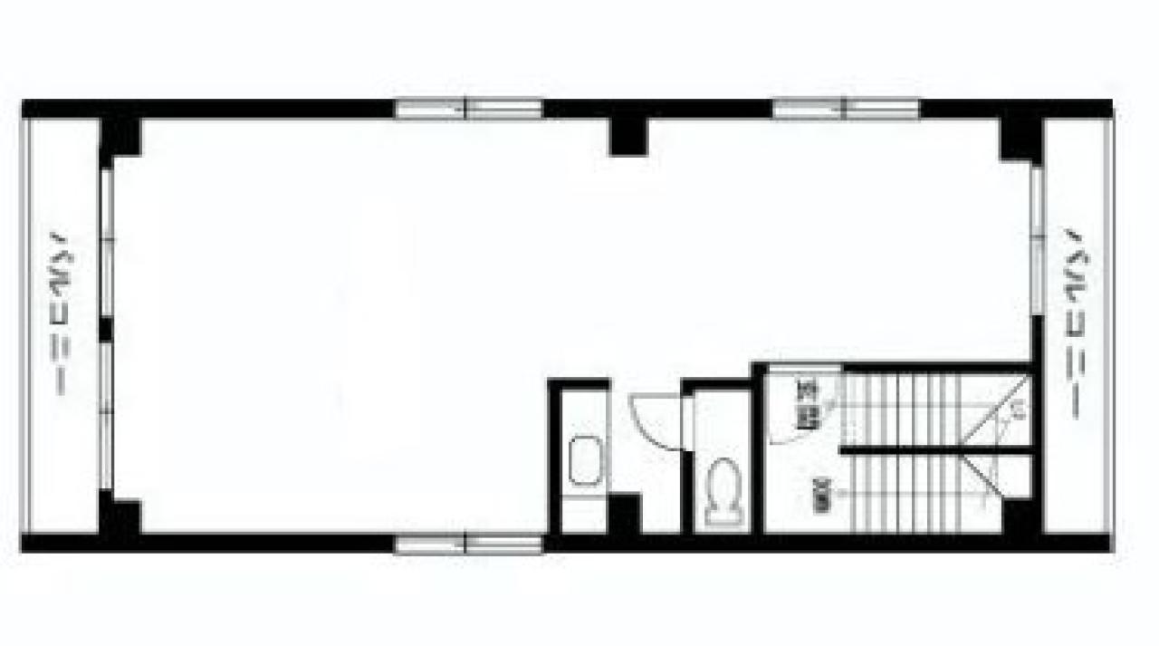
間取り図
-
近隣相場情報
東麻布2丁目(20坪以下)の相場
15355 円 (坪)
※ビルサク調べ
周辺施設情報
| コンビニ |
セブンイレブン/港区一の橋/500m(徒歩6分) まいばすけっと/東麻布1丁目店/300m(徒歩4分) |
|---|---|
| 郵便局/銀行 |
郵便局/ATM ファミリーマート三田一丁目店内出張所/[駐車場]なし [取扱]ATM/カードATM/350m(徒歩4分) きらぼし銀行/麻布支店/[営業時間]店舗 平日 9:00~15:00 土曜日 - 日・祝日 - ATM 平日 8:45~19:00 土曜日 9:00~17:00 日・祝日 -/650m(徒歩9分) |
| 飲食店 |
ラ・リューン/12時00分~13時30分、18時30分~21時00分/62m(徒歩1分) totanuki(とたぬき)/17時30分~22時30分/76m(徒歩1分) |
| カフェ |
カフェ・サンコー/11時00分~20時00分/650m(徒歩9分) トグ/9時00分~17時00分/150m(徒歩2分) |
| コインパーキング |
タイムズ駐車場/東麻布2丁目第2 [料金] [月~土]通常料金 / 00:00-00:00 15分 300円 [日・祝]通常料金 / 00:00-00:00 15分 300円 [最大料金] [月~土]18:00-08:00 最大料金500円 08:00-18:00 最大料金3800円 [日・祝]18:00-08:00 最大料金500円 08:00-18:00 最大料金1800円 [台数]4 パークジャパン/東麻布第10 [料金] 8:00~24:00 300円/20分 24:00~8:00 100円/60分 [最大料金] 12時間最大料金3,0 00円 [台数]9台 |
周辺地図
第二小林ビルは港区東麻布にある地上5階建ての賃貸事務所です。最寄駅は都営大江戸線の赤羽橋駅から徒歩1分、都営三田線の芝公園駅から徒歩7分、東京メトロ南北線の麻布十番駅から徒歩8分、都営浅草線の三田駅から徒歩11分です。1980年竣工の鉄筋コンクリート造です。設備としては、空調は個別空調です。複数路線利用可能なアクセスの良い港区東麻布の賃貸オフィスです。
全フロア情報
更新日:2025年12月15日
| 階 | 面積 | 賃料 | 共益費 | 敷金 | 入居日 | お問合せ | お気に入り | |
|---|---|---|---|---|---|---|---|---|
| 3F |
17.64 坪 58.31 ㎡ |
※現在空室情報はございません |
※現在空室情報は 確認する |
|||||
お問い合わせ
似た条件の物件はこちら
-
センチュリオン六本木タワーⅡ
東京都港区西麻布3-6-1
坪数:21.76 坪
坪単価:20,000 円(坪)
-
麻布十番ミレニアムタワー
東京都港区麻布十番2-8-8
坪数:13.98 坪
坪単価:30,000 円(坪)
-
タトルビル
東京都港区東麻布2-6-5
坪数:16.97 坪
坪単価:11,786 円(坪)
-
麻布エンパイアマンション
東京都港区西麻布4-11-28
坪数:17.61 坪
坪単価:12,803 円(坪)
-
飯倉カムフィーホームズ
東京都港区麻布台3-4-4
坪数:19.03 坪
坪単価:11,000 円(坪)
-
秀和六本木レジデンス
東京都港区六本木7-17-22
坪数:18.14 坪
坪単価:16,262 円(坪)
-
綿引ビル
東京都港区六本木5-9-13
坪数:13.48 坪
坪単価:13,353 円(坪)
-
プリンセスコート東麻布
東京都港区東麻布1-29-9
坪数:18.15 坪
坪単価:15,978 円(坪)
-
早野ビル
東京都港区西麻布2-13-12
坪数:12.4 坪
坪単価:32,500 円(坪)
-
Kukai Terrace元麻布
東京都港区元麻布3-5-27
坪数:20.61 坪
坪単価:22,804 円(坪)