サルワカビル(物件No:02681133)
サルワカビルは、台東区浅草にある地上4階建ての貸店舗事務所です。最寄駅は東京メトロ銀座線の浅草駅から徒歩10分です。1988年5月竣工の鉄骨造です。設備としては、トイレは室内男女共用です。耐震設計となっている、コンビニや飲食店などの周辺施設が充実した台東区浅草の貸店舗事務所です。
-
物件情報
-
設備情報
- トイレ
- 室内男女共用
- 床
- -
- 空調
- -
- セキュリティ
- -
- 駐車場
- -
- 会議室
- -
- エレベーター
- -
- 天井高
- -
-
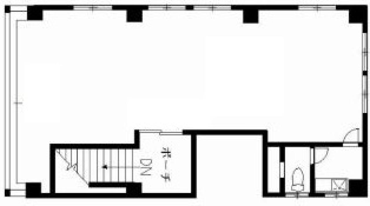
間取り図
-
近隣相場情報
浅草6丁目(20~30坪)の相場
15651 円 (坪)
※ビルサク調べ
周辺地図
サルワカビルは、台東区浅草にある地上4階建ての貸店舗事務所です。最寄駅は東京メトロ銀座線の浅草駅から徒歩10分です。1988年5月竣工の鉄骨造です。設備としては、トイレは室内男女共用です。耐震設計となっている、コンビニや飲食店などの周辺施設が充実した台東区浅草の貸店舗事務所です。
全フロア情報
更新日:2020年1月29日
階 | 面積 | 賃料 | 共益費 | 敷金 | 入居日 | お問合せ | お気に入り | |
---|---|---|---|---|---|---|---|---|
1F |
21.12 坪 69.82 ㎡ |
※現在空室情報はございません |
※現在空室情報は 確認する |
|||||
1-2F |
48.90 坪 161.64 ㎡ |
※現在空室情報はございません |
※現在空室情報は 確認する |
|||||
2F |
27.77 坪 91.80 ㎡ |
※現在空室情報はございません |
※現在空室情報は 確認する |
お問い合わせ
似た条件の物件はこちら
-
NRビル
東京都台東区蔵前3-13-13
坪数:30.97 坪
坪単価:14,530 円(坪)
-
三筋クレセントビル
東京都台東区三筋1-9-4
坪数:29.21 坪
坪単価:7,000 円(坪)
-
森川ビル
東京都台東区浅草橋3-29-8
坪数:26.97 坪
坪単価:10,000 円(坪)
-
堀ビル
東京都台東区浅草橋3-11-1
坪数:18.02 坪
坪単価:9,989 円(坪)
-
大手山ビル
東京都台東区柳橋1-7-7
坪数:28.90 坪
坪単価:10,381 円(坪)
-
花一店舗
東京都台東区花川戸1-10-16
坪数:24.55 坪
坪単価:14,664 円(坪)
-
原田ビル
東京都台東区浅草橋5-9-7
坪数:19.63 坪
坪単価:9,424 円(坪)
-
SCS ASAKUSABASHI
東京都台東区浅草橋3-34-10
坪数:18.45 坪
坪単価:16,500 円(坪)
-
小沢ビル
東京都台東区浅草橋2-20-11
坪数:34 坪
坪単価:11,000 円(坪)
-
銀座ビル
東京都台東区浅草橋3-1-2
坪数:22.66 坪
坪単価:8,000 円(坪)