第1オリエントビル(物件No:02526672)
第1オリエントビルは、台東区上野にある貸事務所物件です。最寄り駅は東京メトロ銀座線の上野広小路駅、末広町駅、東京メトロ日比谷線の仲御徒町駅、都営大江戸線の上野御徒町駅、JR線の御徒町駅、上野駅です。1985年竣工の賃貸オフィスビルです。空調は個別空調です。機械警備があります。複数路線利用可能な、アクセスの良い台東区上野の貸事務所です。
| 階 | 面積 | 賃料 | 共益費 | 敷金 | 入居日 | お問合せ | お気に入り | |
|---|---|---|---|---|---|---|---|---|
|
2F
(202区画) |
17.2 坪 56.86 ㎡ |
※現在空室情報はございません |
※現在空室情報は 確認する |
|||||
-
物件情報
-
設備情報
- トイレ
- -
- 床
- -
- 空調
- 個別空調
- セキュリティ
- 有
- 駐車場
- -
- 会議室
- -
- エレベーター
- 0基
- 天井高
- -
-
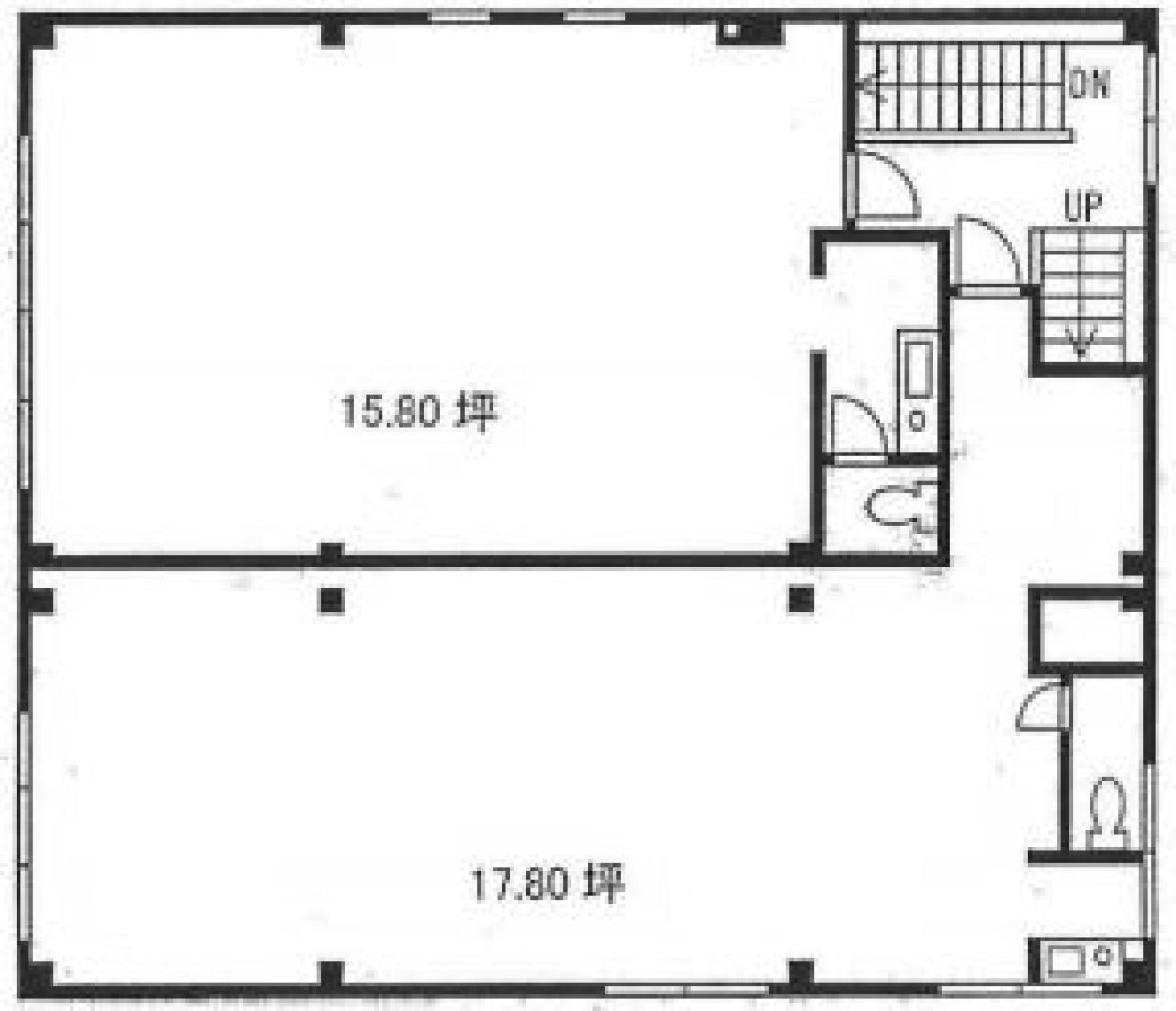
間取り図
-
近隣相場情報
上野5丁目(20坪以下)の相場
20740 円 (坪)
※ビルサク調べ
周辺地図
第1オリエントビルは、台東区上野にある貸事務所物件です。最寄り駅は東京メトロ銀座線の上野広小路駅、末広町駅、東京メトロ日比谷線の仲御徒町駅、都営大江戸線の上野御徒町駅、JR線の御徒町駅、上野駅です。1985年竣工の賃貸オフィスビルです。空調は個別空調です。機械警備があります。複数路線利用可能な、アクセスの良い台東区上野の貸事務所です。
全フロア情報
更新日:2025年10月29日
| 階 | 面積 | 賃料 | 共益費 | 敷金 | 入居日 | お問合せ | お気に入り | |
|---|---|---|---|---|---|---|---|---|
|
2F
(201区画) |
15.8 坪 52.23 ㎡ |
※現在空室情報はございません |
※現在空室情報は 確認する |
|||||
|
2F
(202区画) |
17.2 坪 56.86 ㎡ |
※現在空室情報はございません |
※現在空室情報は 確認する |
|||||
|
3F
(302区画) |
15.65 坪 51.74 ㎡ |
※現在空室情報はございません |
※現在空室情報は 確認する |
|||||
お問い合わせ
似た条件の物件はこちら
-
タウンハイツ上野
東京都台東区上野3-4-6
坪数:15.03 坪
坪単価:17,964 円(坪)
-
第7江波戸ビル
東京都台東区台東3-7-8
坪数:12.68 坪
坪単価:12,000 円(坪)
-
冨田ビル
東京都台東区東上野1-7-2
坪数:15.05 坪
坪単価:14,618 円(坪)
-
FUJIYAビル
東京都台東区東上野3-14-9
坪数:17.2 坪
坪単価:11,000 円(坪)
-
グランデュール秋葉原
東京都台東区台東1-24-12
坪数:15.69 坪
坪単価:18,164 円(坪)
-
木村屋ビル
東京都台東区台東2-19-10
坪数:21.86 坪
坪単価:7,333 円(坪)
-
メグミビル
東京都台東区上野3-6-4
坪数:21.98 坪
坪単価:12,000 円(坪)
-
御徒町グリーンプラザ
東京都台東区台東4-6-5
坪数:15.01 坪
坪単価:11,341 円(坪)
-
ヴァッソンシノバズ
東京都台東区池之端2-1-42
坪数:18.88 坪
坪単価:9,874 円(坪)
-
宮島ビル
東京都台東区東上野3-15-3
坪数:20.94 坪
坪単価:15,000 円(坪)