ユニオン駅前ビル(物件No:02508874)
ユニオン駅前ビルは新宿区高田馬場にある地上9階建ての賃貸事務所です。最寄駅はJR山手線の高田馬場駅から徒歩2分、東京メトロ東西線の高田馬場駅から徒歩2分、西武新宿線の下落合駅から徒歩9分、JR山手線の目白駅から徒歩10分です。1994年3月竣工の基準階面積が25.9坪の鉄筋コンクリート造です。設備としては、エレベーターが1基あります。トイレは室内男女別です。空調は個別空調です。耐震設計となっている、複数駅利用可能なアクセスの良い新宿区高田馬場の賃貸オフィスです。
-
物件情報
-
設備情報
- トイレ
- 室内男女別
- 床
- -
- 空調
- 個別空調
- セキュリティ
- 有
- 駐車場
- -
- 会議室
- -
- エレベーター
- 1基
- 天井高
- -
-
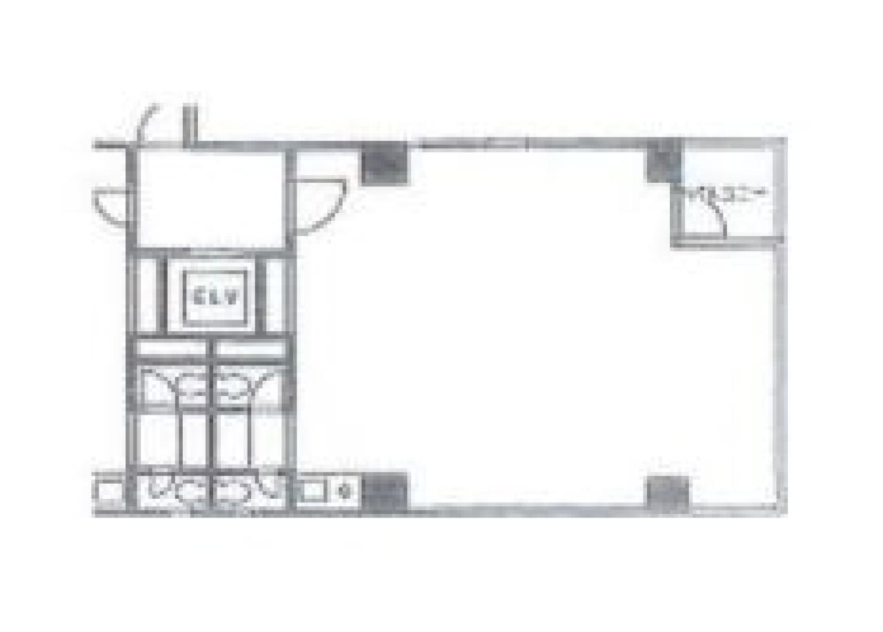
間取り図
-
近隣相場情報
高田馬場3丁目(20~30坪)の相場
15878 円 (坪)
※ビルサク調べ
周辺施設情報
| コンビニ |
ファミリーマート/高田馬場駅西店/110m(徒歩1分) セブンイレブン/高田馬場稲門ビル/240m(徒歩3分) |
|---|---|
| 郵便局/銀行 |
みずほ銀行/高田馬場支店/[営業時間]窓口 平日9:00~15:00 ATM 平日 /Monday - Friday 6:00~26:00 土曜日/Saturday 8:00~22:00 日曜日/Sunday 8:00~21:00 祝日・振替休日 /Public Holidays 8:00~21:00 備考 *月曜日の6:0/100m(徒歩1分) 三井住友銀行/ATM 高田馬場駅前出張所/[ATM]平日 0:00-24:00 土曜 0:00-24:00 日曜・祝日 0:00-21:00/80m(徒歩1分) |
| 飲食店 |
磯丸水産 高田馬場店/24 時間営業/4m(徒歩1分) やよい軒 高田馬場店/24 時間営業/41m(徒歩1分) |
| カフェ |
CoCo都可/高田馬場店/[営業時間]平日11:00~22:00 土日祝 11:00~22:00 [休業日]1/1、1/2/100m(徒歩1分) ドトール/高田馬場4丁目店/[営業時間]平 日:07:00 - 22:00 土曜日:07:30 - 22:00 日 祝:07:30 - 21:00 [休業日]なし [備考]総席数:61 禁煙席:45 喫煙席:16/100m(徒歩1分) |
| コインパーキング |
タイムズ駐車場/高田馬場第13 [料金] [全日]09:00-19:00 30分 300円 [全日]19:00-09:00 30分 200円 [最大料金] [全日]09:00-19:00 最大料金1800円 [全日]19:00-09:00 最大料金500円 [台数]4 コインパーク/高田馬場3丁目第4 [料金] 【全日】 ■通常料金 【8:00~19:00】30分300円 【全日】 ■通常料金 【19:00~8:00】40分200円 [最大料金] 【全日】 ■最大料金 【8:00~19:00】1600円 【全日】 ■最大料金 【19:00~8:00】500円 [台数][車: 4台] |
周辺地図
ユニオン駅前ビルは新宿区高田馬場にある地上9階建ての賃貸事務所です。最寄駅はJR山手線の高田馬場駅から徒歩2分、東京メトロ東西線の高田馬場駅から徒歩2分、西武新宿線の下落合駅から徒歩9分、JR山手線の目白駅から徒歩10分です。1994年3月竣工の基準階面積が25.9坪の鉄筋コンクリート造です。設備としては、エレベーターが1基あります。トイレは室内男女別です。空調は個別空調です。耐震設計となっている、複数駅利用可能なアクセスの良い新宿区高田馬場の賃貸オフィスです。
全フロア情報
更新日:2026年1月15日
| 階 | 面積 | 賃料 | 共益費 | 敷金 | 入居日 | お問合せ | お気に入り | |
|---|---|---|---|---|---|---|---|---|
|
2F
(B区画) |
25.9 坪 85.62 ㎡ |
※現在空室情報はございません |
※現在空室情報は 確認する |
|||||
|
5F
(B区画) |
25.66 坪 84.83 ㎡ |
※現在空室情報はございません |
※現在空室情報は 確認する |
|||||
|
6F
(A区画) |
25.04 坪 82.77 ㎡ |
※現在空室情報はございません |
※現在空室情報は 確認する |
|||||
|
7F
(B区画) |
25.66 坪 84.83 ㎡ |
※現在空室情報はございません |
※現在空室情報は 確認する |
|||||
| 8F |
23.72 坪 78.41 ㎡ |
※現在空室情報はございません |
※現在空室情報は 確認する |
|||||
|
8F
(A区画) |
24.18 坪 79.93 ㎡ |
400,000 円 16,543 円(坪) |
0 円 0 円(坪) |
1,200,000 円 3 ヶ月 |
相談 |
|
|
|
|
8F
(B区画) |
24.18 坪 79.93 ㎡ |
※現在空室情報はございません |
※現在空室情報は 確認する |
|||||
お問い合わせ
似た条件の物件はこちら
-
セキサクビル
東京都新宿区大久保2-5-22
坪数:26.72 坪
坪単価:14,000 円(坪)
-
サンフジビル
東京都新宿区高田馬場1-34-1
坪数:32.07 坪
坪単価:16,500 円(坪)
-
安念ビル
東京都新宿区高田馬場1-29-20
坪数:20.72 坪
坪単価:13,996 円(坪)
-
新宿太陽ビル
東京都新宿区大久保2-2-11
坪数:31.37 坪
坪単価:10,456 円(坪)
-
AD高田馬場
東京都新宿区高田馬場3-35-2
坪数:27.96 坪
坪単価:15,932 円(坪)
-
フレンドビル
東京都新宿区高田馬場3-2-5
坪数:21.5 坪
坪単価:18,605 円(坪)
-
MIビル
東京都新宿区北新宿1-12-12
坪数:30.5 坪
坪単価:15,000 円(坪)
-
サンファミール西早稲田
東京都新宿区西早稲田3-17-23
坪数:23.52 坪
坪単価:11,016 円(坪)
-
玉井企画ビル
東京都新宿区早稲田鶴巻町110
坪数:31.65 坪
坪単価:9,415 円(坪)