新宿東洋ビル(物件No:02507075)
新宿東洋ビルは、渋谷区代々木にある地上5階建ての貸店舗物件/賃貸事務所です。最寄駅はJR線の新宿駅から徒歩2分、小田急小田原線の南新宿駅から徒歩5分です。1978年4月竣工の基準階面積が41.69坪の鉄筋コンクリート造です。設備としては、エレベーターが1基あります。トイレは室外男女別です。空調は個別空調です。床仕様はタイルカーペットです。最寄駅から近くて便利な渋谷区代々木の貸店舗物件/賃貸オフィスです。
| 階 | 面積 | 賃料 | 共益費 | 敷金 | 入居日 | お問合せ | お気に入り |
|---|---|---|---|---|---|---|---|
|
5F
(502区画) |
14.48 坪 47.87 ㎡ |
217,055 円 14,990 円(坪) |
28,960 円 2,000 円(坪) |
1,085,275 円 5 ヶ月 |
2026/05 |
|
|
| 階 | 面積 | 賃料 | 共益費 | 敷金 | 入居日 | お問合せ | お気に入り |
|---|---|---|---|---|---|---|---|
|
5F
(502区画) |
14.48 坪 47.87 ㎡ |
217,055 円 14,990 円(坪) |
28,960 円 2,000 円(坪) |
1,085,275 円 5 ヶ月 |
2026/05 |
|
|
-
物件情報
-
設備情報
- トイレ
- 室外男女別
- 床
- -
- 空調
- 個別空調
- セキュリティ
- -
- 駐車場
- 無
- 会議室
- -
- エレベーター
- 1基
- 天井高
- -
-
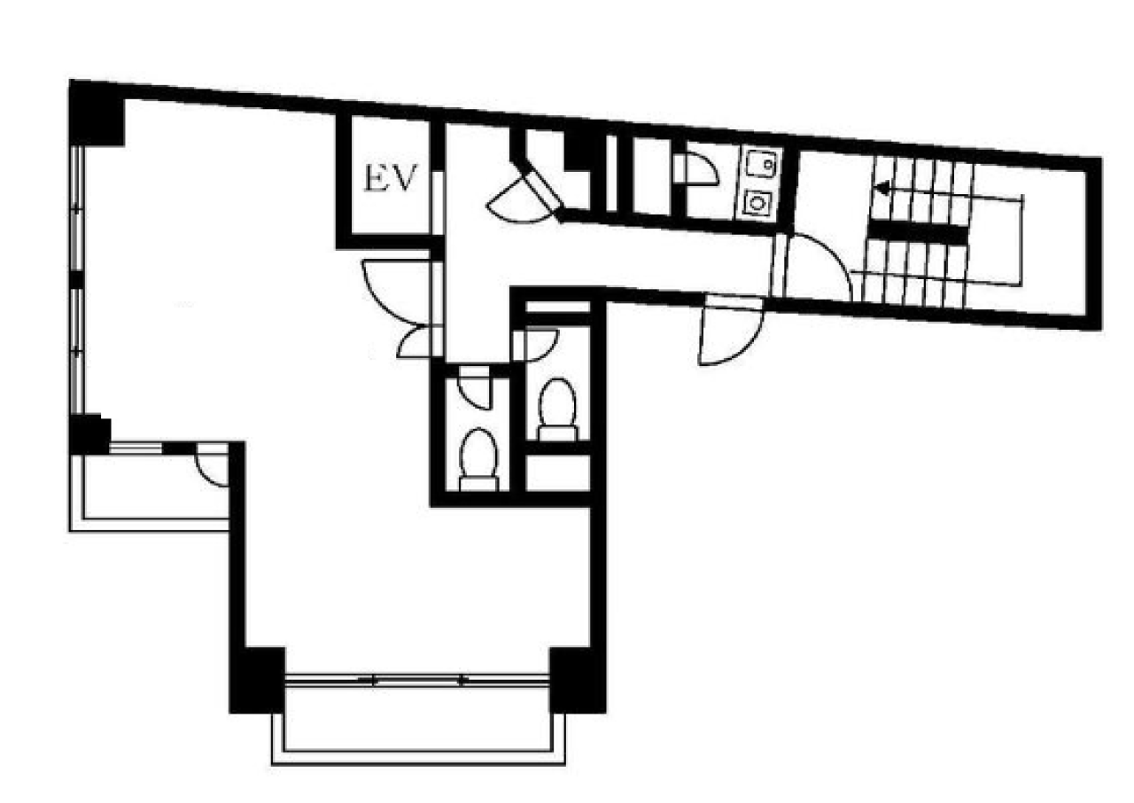
間取り図
-
近隣相場情報
代々木2丁目(20坪以下)の相場
19201 円 (坪)
※ビルサク調べ
周辺施設情報
| コンビニ |
ローソン/H代々木/180m(徒歩2分) セブンイレブン/西新宿甲州街道/150m(徒歩2分) |
|---|---|
| 郵便局/銀行 |
三菱UFJ銀行/ATM 新宿文化クイントビル/[営業時間] [ATM]平日 7:00~23:00 土曜日 7:00~23:00 日・祝日 7:00~23:00 *毎月第2土曜日の21:00~翌朝7:00はご利用いただけません。/350m(徒歩4分) イーネット/ファミリーマート代々木二丁目北/[営業時間]0:00-24:00/32m(徒歩1分) |
| 飲食店 |
慎/11時00分~22時00分/78m(徒歩1分) Brussels Beer Project/17時00分~0時00分/66m(徒歩1分) |
| カフェ |
プロント/IL BAR 新宿マインズタワー店/[営業時間]平日:カフェ 7:00~17:30 バー 17:30~23:00 土曜:カフェ 10:00~19:00 [休業日]日祝 [備考]83席/分煙/350m(徒歩4分) スターバックス/新宿マインズタワー店/[営業時間]月~金: 07:00~20:30 土日祝: 08:00~20:30 [休業日]不定休 [備考]無線LAN:STARBUCKS/docomo/Softbank/au/Wi2 300/180m(徒歩2分) |
| コインパーキング |
三井のリパーク/JR東京総合病院駐車場 [料金] 平日 08:00~00:00 30分/300円、平日 00:00~08:00 60分/100円 日祝 08:00~00:00 30分/300円、日祝 00:00~08:00 60分/100円 [最大料金] 【月~土】、0:00~ 8:00以内500円、8:00~ 0:00以内1900円 【日祝】、0:00~ 8:00以内500円、8:00~ 0:00以内1500円 [台数]151 タイムズ駐車場/ニューステイトメナー [料金] [月~土]通常料金 / 00:00-00:00 20分 300円 [日・祝]通常料金 / 00:00-00:00 20分 300円 [最大料金] [月~土]09:00-20:00 最大料金2800円 20:00-09:00 最大料金1000円 [日・祝]09:00-20:00 最大料金1700円 20:00-09:00 最大料金1000円 [台数]39 |
周辺地図
新宿東洋ビルは、渋谷区代々木にある地上5階建ての貸店舗物件/賃貸事務所です。最寄駅はJR線の新宿駅から徒歩2分、小田急小田原線の南新宿駅から徒歩5分です。1978年4月竣工の基準階面積が41.69坪の鉄筋コンクリート造です。設備としては、エレベーターが1基あります。トイレは室外男女別です。空調は個別空調です。床仕様はタイルカーペットです。最寄駅から近くて便利な渋谷区代々木の貸店舗物件/賃貸オフィスです。
全フロア情報
更新日:2026年3月25日
| 階 | 面積 | 賃料 | 共益費 | 敷金 | 入居日 | お問合せ | お気に入り | |
|---|---|---|---|---|---|---|---|---|
| 1F |
14.1 坪 46.61 ㎡ |
※現在空室情報はございません |
※現在空室情報は 確認する |
|||||
|
2F
(201区画) |
20.7 坪 68.43 ㎡ |
※現在空室情報はございません |
※現在空室情報は 確認する |
|||||
|
3F
(301区画) |
20.7 坪 68.43 ㎡ |
※現在空室情報はございません |
※現在空室情報は 確認する |
|||||
|
4F
(401区画) |
20.7 坪 68.43 ㎡ |
※現在空室情報はございません |
※現在空室情報は 確認する |
|||||
|
5F
(501区画) |
10.49 坪 34.68 ㎡ |
※現在空室情報はございません |
※現在空室情報は 確認する |
|||||
|
5F
(502区画) |
14.48 坪 47.87 ㎡ |
217,055 円 14,990 円(坪) |
28,960 円 2,000 円(坪) |
1,085,275 円 5 ヶ月 |
2026/05 |
|
|
|
お問い合わせ
似た条件の物件はこちら
-
さくらビル
東京都渋谷区代々木1-31-15
坪数:15 坪
坪単価:15,000 円(坪)
-
代々木伊藤ローヤルコーポ
東京都渋谷区代々木1-10-5
坪数:13.44 坪
坪単価:11,161 円(坪)
-
ワイズテラス原宿
東京都渋谷区千駄ヶ谷3-14-3
坪数:11.08 坪
坪単価:15,794 円(坪)
-
代々木MMIビル
東京都渋谷区代々木1-21-11
坪数:15.85 坪
坪単価:12,853 円(坪)
-
三浦ビル
東京都渋谷区千駄ヶ谷1-28-4
坪数:15.56 坪
坪単価:13,496 円(坪)
-
ベルテ代々木Ⅱ
東京都渋谷区代々木2-21-11
坪数:17.38 坪
坪単価:18,412 円(坪)
-
御苑レジデンス
東京都渋谷区千駄ヶ谷5-5-10
坪数:14.99 坪
坪単価:15,010 円(坪)
-
MEPOⅠビル
東京都渋谷区千駄ヶ谷5-30-11
坪数:18.75 坪
坪単価:16,000 円(坪)
-
エタニティーマンション和田第3
東京都渋谷区代々木1-4-9
坪数:17.02 坪
坪単価:15,276 円(坪)