Ikigai Bashi ビル(物件No:01989142)
イトーピア大伝馬町ビル(旧:日本橋ノースプレイス)は、中央区日本橋大伝馬町にある貸事務所物件です。最寄り駅は東京メトロ日比谷線小伝馬町駅、都営新宿線馬喰横山駅、JR馬喰町駅です。1984年竣工で基準階が40.55坪の賃貸オフィスビルです。床はOAフロアで、天井の高さは2400mm。トイレは男女別で、空調は個別空調です。エレベーターは1基あり、セキュリティは機械警備となっています。複数路線利用可能で交通アクセスの良い、中央区日本橋大伝馬町の貸事務所です。
| 階 | 面積 | 賃料 | 共益費 | 敷金 | 入居日 | お問合せ | お気に入り |
|---|---|---|---|---|---|---|---|
| 9F |
21.86 坪 72.26 ㎡ |
480,920 円 22,000 円(坪) |
込 |
2,404,600 円 5 ヶ月 |
2026/06 |
|
|
| 階 | 面積 | 賃料 | 共益費 | 敷金 | 入居日 | お問合せ | お気に入り |
|---|---|---|---|---|---|---|---|
| 9F |
21.86 坪 72.26 ㎡ |
480,920 円 22,000 円(坪) |
込 |
2,404,600 円 5 ヶ月 |
2026/06 |
|
|
-
物件情報
-
設備情報
- トイレ
- 男女別
- 床
- フリーアクセス
- 空調
- 個別空調
- セキュリティ
- 有
- 駐車場
- 無
- 会議室
- -
- エレベーター
- 1基
- 天井高
- 2800mm
-
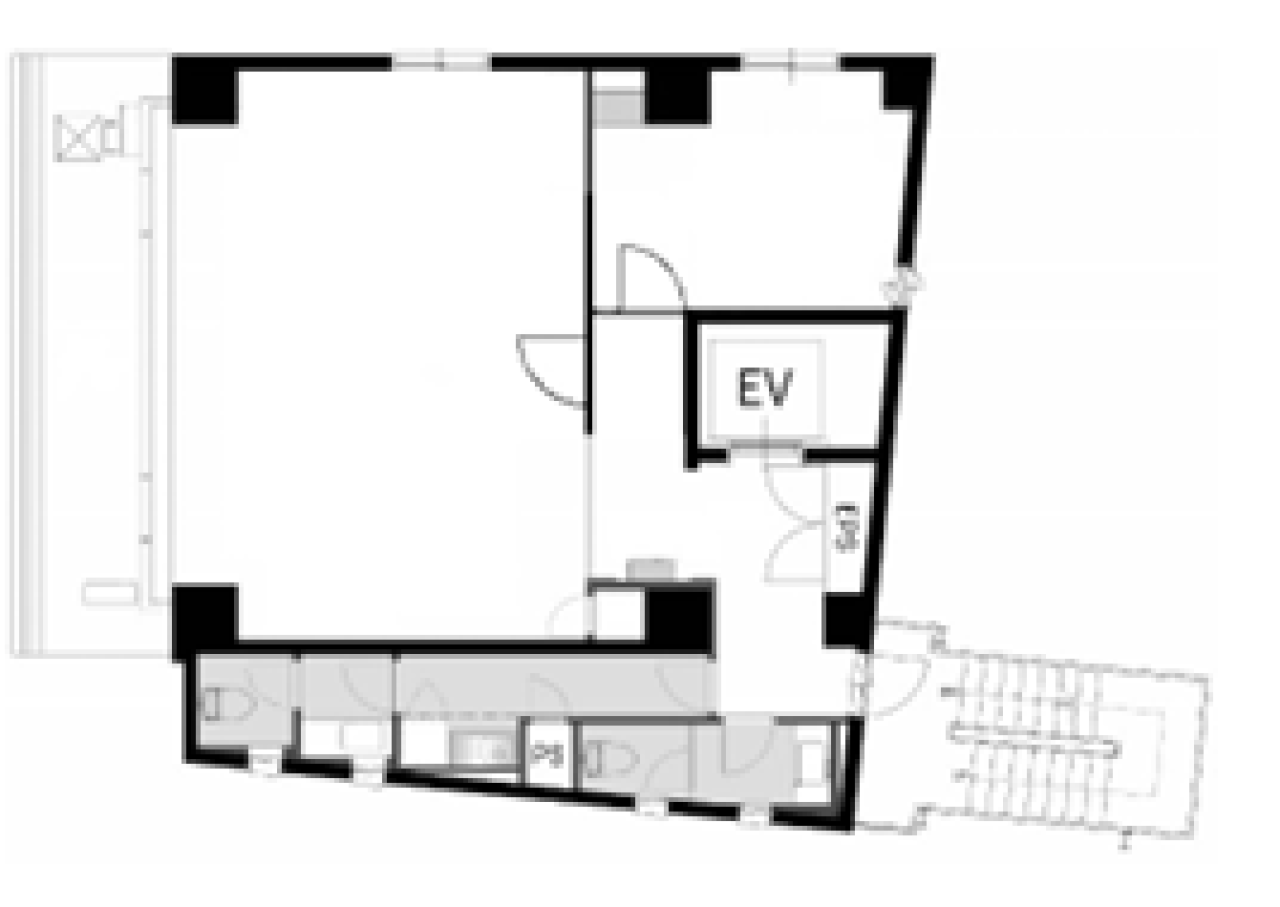
間取り図
-
近隣相場情報
日本橋大伝馬町1丁目(20~30坪)の相場
18500 円 (坪)
※ビルサク調べ
周辺施設情報
| コンビニ |
ファミリーマート/人形町駅前店/220m(徒歩3分) セブンイレブン/日本橋人形町2丁目/200m(徒歩3分) |
|---|---|
| 郵便局/銀行 |
りそな銀行/ATM 東京メトロ人形町駅出張所/[営業時間]全日5:00~24:00/250m(徒歩4分) セブン銀行/日本橋人形町2丁目店/[営業時間]24時間営業/200m(徒歩3分) |
| 飲食店 |
人形町今半 人形町本店/11時00分~15時00分 17時00分~22時00分/110m(徒歩1分) 吉星 (Kichisei)/17時30分~22時00分/98m(徒歩1分) |
| カフェ |
エクセルシオール/カフェ 人形町店/[営業時間]平日:7:00~22:00 土曜日:8:00~21:00 日 祝:8:00~19:00/220m(徒歩3分) カフェドクリエ/人形町2丁目/[営業時間][平 日] 7:30-18:00 [土日祝] (土)8:30-17:30 (日/祝)8:30-17:30/120m(徒歩2分) |
| コインパーキング |
三井のリパーク/日本橋人形町2丁目第7 [料金] [料金]平日 08:00~22:00 15分/300円 平日 22:00~08:00 15分/300円 [料金]日祝 08:00~22:00 15分/300円 日祝 22:00~08:00 15分/300円 [最大料金] 最大料金 【月~土】22:00~8:00以内 最大料金500円 最大料金 【日祝】8:00~22:00以内 最大料金1000円 【日祝】22:00~8:00以内 最大料金500円 [台数]6 タイムズ駐車場/日本橋人形町第10 [料金] [料金] [月~土]通常料金 / 0:00~0:00 15分 330円 [日・祝]通常料金 / 0:00~0:00 15分 330円 [最大料金] [料金] [月~土]8:00~20:00 最大料金3740円 20:00~8:00 最大料金550円 [日・祝]8:00~20:00 最大料金1320円 20:00~8:00 最大料金550円 [台数]4 |
周辺地図
イトーピア大伝馬町ビル(旧:日本橋ノースプレイス)は、中央区日本橋大伝馬町にある貸事務所物件です。最寄り駅は東京メトロ日比谷線小伝馬町駅、都営新宿線馬喰横山駅、JR馬喰町駅です。1984年竣工で基準階が40.55坪の賃貸オフィスビルです。床はOAフロアで、天井の高さは2400mm。トイレは男女別で、空調は個別空調です。エレベーターは1基あり、セキュリティは機械警備となっています。複数路線利用可能で交通アクセスの良い、中央区日本橋大伝馬町の貸事務所です。
全フロア情報
更新日:2026年3月5日
| 階 | 面積 | 賃料 | 共益費 | 敷金 | 入居日 | お問合せ | お気に入り | |
|---|---|---|---|---|---|---|---|---|
| 1F |
24.1 坪 79.67 ㎡ |
※現在空室情報はございません |
※現在空室情報は 確認する |
|||||
| 2F |
43.23 坪 142.91 ㎡ |
※現在空室情報はございません |
※現在空室情報は 確認する |
|||||
| 3F |
43.23 坪 142.91 ㎡ |
※現在空室情報はございません |
※現在空室情報は 確認する |
|||||
| 4F |
40.74 坪 134.68 ㎡ |
※現在空室情報はございません |
※現在空室情報は 確認する |
|||||
| 6F |
38.27 坪 126.51 ㎡ |
※現在空室情報はございません |
※現在空室情報は 確認する |
|||||
| 8F |
29.9 坪 98.84 ㎡ |
※現在空室情報はございません |
※現在空室情報は 確認する |
|||||
| 9F |
21.86 坪 72.26 ㎡ |
480,920 円 22,000 円(坪) |
込 |
2,404,600 円 5 ヶ月 |
2026/06 |
|
|
|
お問い合わせ
似た条件の物件はこちら
-
グリーンパーク日本橋参番館
東京都中央区日本橋大伝馬町6-2
坪数:16.35 坪
坪単価:23,242 円(坪)
-
横山町ビル
東京都中央区日本橋横山町1-1
坪数:21.35 坪
坪単価:23,419 円(坪)
-
ACE日本橋ビル
東京都中央区日本橋久松町13-5
坪数:17 坪
坪単価:13,000 円(坪)
-
茄子倉ビル
東京都中央区日本橋馬喰町1-9-8
坪数:17.79 坪
坪単価:12,000 円(坪)
-
PORT ONE 茅場町
東京都中央区日本橋箱崎町5-15
坪数:16.75 坪
坪単価:24,000 円(坪)
-
オーキッドプレイス蛎殻町ビル
東京都中央区日本橋蛎殻町1-4-1
坪数:24.87 坪
坪単価:16,000 円(坪)
-
FSビル
東京都中央区日本橋人形町2-21-1
坪数:22.05 坪
坪単価:11,000 円(坪)
-
エムジー小伝馬町ビル
東京都中央区日本橋小伝馬町7-10
坪数:24.71 坪
坪単価:10,500 円(坪)
-
メゾン日本橋
東京都中央区日本橋浜町2-11-2
坪数:21.06 坪
坪単価:11,396 円(坪)
関連エリアから探す
- 日本橋大伝馬町
- 日本橋蛎殻町
- 日本橋小網町
- 日本橋小伝馬町
- 日本橋小舟町
- 日本橋富沢町
- 日本橋人形町
- 日本橋箱崎町
- 日本橋堀留町
- 日本橋中洲
- 日本橋馬喰町
- 日本橋浜町
- 日本橋久松町
- 日本橋横山町
- 東日本橋