大星八重洲ビル(物件No:01883253)
大星八重洲は、中央区八重洲にある貸事務所物件です。最寄り駅は東京メトロ有楽町線銀座一丁目駅、JR東京駅、都営浅草線宝町駅、東京メトロ銀座線京橋駅となっています。2013年竣工で、基準階が41.44坪の賃貸オフィスビルです。床はOAフロアで、天井の高さは2750mm。トイレは男女別で、空調は個別空調です。エレベーターは1基あります。複数路線利用可能で、交通アクセスの良い、中央区八重洲の貸事務所です。
| 階 | 面積 | 賃料 | 共益費 | 敷金 | 入居日 | お問合せ | お気に入り |
|---|---|---|---|---|---|---|---|
| 5F |
41.44 坪 136.99 ㎡ |
相談 |
込 |
12ヶ月 |
2026/06 |
|
|
| 階 | 面積 | 賃料 | 共益費 | 敷金 | 入居日 | お問合せ | お気に入り |
|---|---|---|---|---|---|---|---|
| 5F |
41.44 坪 136.99 ㎡ |
相談 |
込 |
12ヶ月 |
2026/06 |
|
|
-
物件情報
-
設備情報
- トイレ
- 室外男女別
- 床
- フリーアクセス
- 空調
- 個別空調
- セキュリティ
- -
- 駐車場
- -
- 会議室
- -
- エレベーター
- 2基
- 天井高
- 2750mm
-
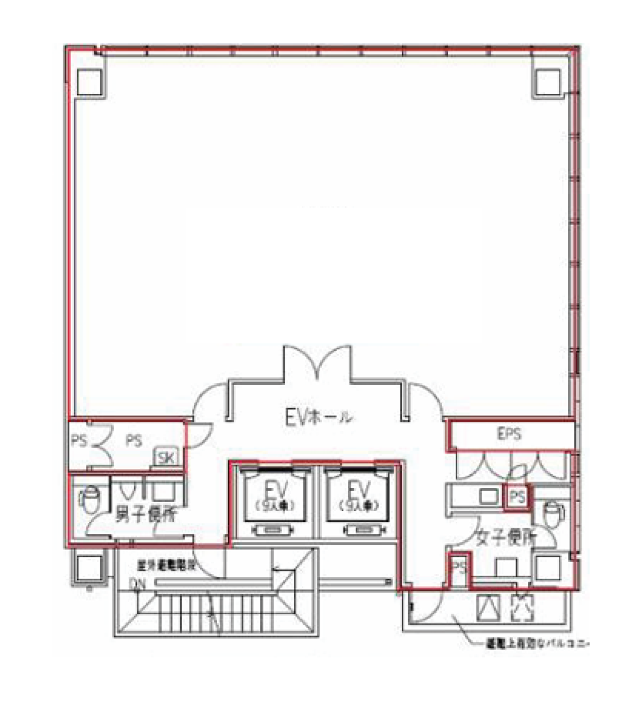
間取り図
-
近隣相場情報
八重洲2丁目(40~50坪)の相場
32000 円 (坪)
※ビルサク調べ
周辺施設情報
| コンビニ |
ファミリーマート/中央八重洲二丁目店/110m(徒歩1分) ローソン/東京スクエアガーデン/130m(徒歩2分) |
|---|---|
| 郵便局/銀行 |
ゆうちょ/ATM 本店 ファミリーマート中央八重洲二丁目店内出張所/[駐車場]なし/110m(徒歩1分) 親和銀行/東京支店/[営業時間]平 日/ 9:00~15:00/53m(徒歩1分) |
| 飲食店 |
北の味紀行と地酒 北海道 八重洲店/11時30分~13時30分 16時00分~22時00分/55m(徒歩1分) シェ イノ/11時30分~14時00分 18時00分~21時00分/51m(徒歩1分) |
| カフェ |
スターバックス/京橋駅前店/[営業時間]月~土:7:00~22:00 日祝:9:00~21:00/190m(徒歩3分) タリーズ/東京スクエアガーデン店/[営業時間]平日:7:00~22:00(L.O.21:30)土:10:00~22:00(L.O.21:30)日祝:10:00~18:00(L.O.17:30)/220m(徒歩3分) |
| コインパーキング |
NPC24H/東京スクエアガーデンパーキング [料金] 通常料金【自動車】30分/300円 [最大料金] [料金]最大料金【自動車】24時間毎2000円 [台数]210台 公社駐車場/丸ノ内鍛冶橋 [料金] <大型車> 最初の1時間 2,800円 以降30分 1,400円 夜間最大料金A 7,000円(19:00~翌7:00) [最大料金] <大型車新設料金> 昼間最大料金 9,800円(8:00~18:00)夜間最大料金B 9,800円(16:00~翌8:00) [台数]22台 |
周辺地図
大星八重洲は、中央区八重洲にある貸事務所物件です。最寄り駅は東京メトロ有楽町線銀座一丁目駅、JR東京駅、都営浅草線宝町駅、東京メトロ銀座線京橋駅となっています。2013年竣工で、基準階が41.44坪の賃貸オフィスビルです。床はOAフロアで、天井の高さは2750mm。トイレは男女別で、空調は個別空調です。エレベーターは1基あります。複数路線利用可能で、交通アクセスの良い、中央区八重洲の貸事務所です。
全フロア情報
更新日:2026年3月12日
| 階 | 面積 | 賃料 | 共益費 | 敷金 | 入居日 | お問合せ | お気に入り | |
|---|---|---|---|---|---|---|---|---|
| 5F |
41.44 坪 136.99 ㎡ |
相談 |
込 |
12ヶ月 |
2026/06 |
|
|
|
| 6F |
41.44 坪 136.99 ㎡ |
※現在空室情報はございません |
※現在空室情報は 確認する |
|||||
| 9F |
41.44 坪 136.99 ㎡ |
※現在空室情報はございません |
※現在空室情報は 確認する |
|||||
| 11F |
41.44 坪 136.99 ㎡ |
※現在空室情報はございません |
※現在空室情報は 確認する |
|||||
お問い合わせ
似た条件の物件はこちら
-
千城ビル
東京都中央区日本橋本町4-8-16
坪数:47.04 坪
坪単価:15,000 円(坪)
-
キムラヤビル
東京都中央区京橋2-5-22
坪数:40.18 坪
坪単価:19,300 円(坪)
-
金葉ビル
東京都中央区京橋1-6-13
坪数:43.25 坪
坪単価:20,000 円(坪)
-
サカキビル
東京都中央区京橋2-12-12
坪数:40.5 坪
坪単価:15,500 円(坪)
-
八重洲山川ビル
東京都中央区日本橋3-3-3
坪数:45.7 坪
坪単価:22,000 円(坪)
-
東和八重洲ビル
東京都中央区日本橋3-4-16
坪数:36.73 坪
坪単価:41,000 円(坪)
-
新槇町ビル
東京都中央区八重洲1-8-17
坪数:37 坪
坪単価:55,000 円(坪)
-
斉藤ビル
東京都中央区京橋3-14-6
坪数:49.82 坪
坪単価:15,000 円(坪)
-
朝日ビルヂング
東京都中央区日本橋3-12-2
坪数:43.62 坪
坪単価:19,500 円(坪)
-
藤木ビル
東京都中央区京橋2-6-6
坪数:36.5 坪
坪単価:20,000 円(坪)