第一阿部ビル(物件No:01782099)
第一阿部ビルは千代田区神田佐久間町にある地上10階建ての賃貸事務所です。最寄駅はJR線の秋葉原駅から徒歩1分、東京メトロ日比谷線の秋葉原駅から徒歩1分です。1987年1月竣工の基準階面積が22.21坪の鉄骨造です。設備としては、エレベーターが1基あります。セキュリティは機械警備です。トイレは男女別です。空調は個別空調です。床仕様は2WAYです。天高は2400mmです。耐震設計となっている、最寄駅から近くて便利な千代田区神田佐久間町の賃貸オフィスです。
-
物件情報
-
設備情報
- トイレ
- 室外男女別
- 床
- タイルカーペット
- 空調
- 個別空調
- セキュリティ
- 有
- 駐車場
- -
- 会議室
- -
- エレベーター
- 1基
- 天井高
- 2400mm
-
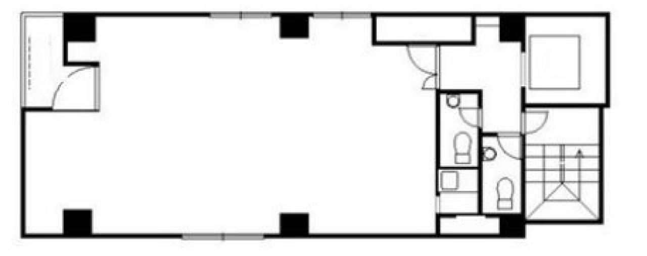
間取り図
-
近隣相場情報
神田佐久間町1丁目(20~30坪)の相場
22500 円 (坪)
※ビルサク調べ
周辺施設情報
| コンビニ |
ポプラ/生活彩家 秋葉原駅前店/150m(徒歩2分) NewDays/ミニ 秋葉原3号/210m(徒歩2分) |
|---|---|
| 郵便局/銀行 |
みずほ銀行/ATM 秋葉原駅電気街口出張所/[営業時間]ATM 平日 /Monday - Friday 0:00~24:00 土曜日/Saturday 0:00~22:00 日曜日/Sunday 8:00~21:00 祝日・振替休日 /Public Holidays 曜日に準ずる 備考 *月曜日の0:00~7:00はご利用いただけません。 */210m(徒歩3分) 郵便局/ATM アトレ秋葉原1内出張所/[ATM]平日7:00~22:30、土曜8:00~22:30、日曜8:00~20:00/210m(徒歩3分) |
| 飲食店 |
和民 秋葉原駅前店/16時00分~3時00分/ 銀蔵 秋葉原本館/11時30分~23時30分/29m(徒歩1分) |
| カフェ |
スターバックス/秋葉原駅前店/[営業時間]07:00~22:30 [休業日]不定休 [備考]無線LAN:STARBUCKS/docomo/FLET’S(東)/Softbank/au/Wi2 300/110m(徒歩1分) プロント/ブリオッシュ ドーレ ヨドバシAkiba店/[営業時間]平日:カフェ 7:00~22:00 土日:カフェ 7:00~22:00 [休業日]無休 [備考]17席/全席禁煙/220m(徒歩3分) |
| コインパーキング |
トラストパーク/【ネットのみ予約可】大東ビル [料金] 【時間料金】 20分300円 [最大料金] <平日> (08:00~21:00)最大1500円 <土日祝> (08:00~21:00)最大2000円 【宿泊料金】 (21:00~08:00)最大1000円 [台数]55台 タイムズ駐車場/ダイハツ秋葉原ビル [料金] [全日]06:30-22:00 60分 600円 [全日]22:00-06:30 60分 600円 [最大料金] [全日]駐車後24時間 最大料金1800円 [台数]26 |
周辺地図
第一阿部ビルは千代田区神田佐久間町にある地上10階建ての賃貸事務所です。最寄駅はJR線の秋葉原駅から徒歩1分、東京メトロ日比谷線の秋葉原駅から徒歩1分です。1987年1月竣工の基準階面積が22.21坪の鉄骨造です。設備としては、エレベーターが1基あります。セキュリティは機械警備です。トイレは男女別です。空調は個別空調です。床仕様は2WAYです。天高は2400mmです。耐震設計となっている、最寄駅から近くて便利な千代田区神田佐久間町の賃貸オフィスです。
全フロア情報
更新日:2025年9月19日
| 階 | 面積 | 賃料 | 共益費 | 敷金 | 入居日 | お問合せ | お気に入り | |
|---|---|---|---|---|---|---|---|---|
| 3F |
22.21 坪 73.42 ㎡ |
※現在空室情報はございません |
※現在空室情報は 確認する |
|||||
| 4F |
22.21 坪 73.42 ㎡ |
※現在空室情報はございません |
※現在空室情報は 確認する |
|||||
| 6F |
22.21 坪 73.42 ㎡ |
※現在空室情報はございません |
※現在空室情報は 確認する |
|||||
| 7F |
22.21 坪 73.42 ㎡ |
※現在空室情報はございません |
※現在空室情報は 確認する |
|||||
| 9F |
22.21 坪 73.42 ㎡ |
※現在空室情報はございません |
※現在空室情報は 確認する |
|||||
お問い合わせ
似た条件の物件はこちら
-
第八東誠ビル
東京都千代田区岩本町2-11-3
坪数:25.82 坪
坪単価:12,000 円(坪)
-
新東ビル
東京都千代田区内神田2-8-3
坪数:21.5 坪
坪単価:12,000 円(坪)
-
神田乗物町ビル
東京都千代田区神田北乗物町2
坪数:20.88 坪
坪単価:12,973 円(坪)
-
NMビル
東京都千代田区東神田2-2-1
坪数:20.71 坪
坪単価:10,000 円(坪)
-
藤和内神田ビル
東京都千代田区内神田2-4-4
坪数:18.49 坪
坪単価:16,500 円(坪)
-
稲垣ビル
東京都千代田区神田須田町1-21-3
坪数:22.5 坪
坪単価:18,000 円(坪)
-
NOVEL WORK AKIHABARA
東京都千代田区神田佐久間町3-37-4
坪数:22.6 坪
坪単価:29,000 円(坪)
-
合人社東京秋葉原ビル
東京都千代田区岩本町3-5-2
坪数:17.27 坪
坪単価:23,000 円(坪)
-
鈴野ビル
東京都千代田区神田紺屋町11
坪数:17 坪
坪単価:12,000 円(坪)
-
北の丸ビル
東京都千代田区神田錦町3-17
坪数:18 坪
坪単価:12,000 円(坪)
関連エリアから探す
- 内神田
- 神田淡路町
- 神田小川町
- 神田鍛冶町
- 神田須田町
- 神田駿河台
- 神田多町
- 神田司町
- 神田錦町
- 神田美土代町
- 岩本町
- 鍛冶町
- 神田岩本町
- 神田北乗物町
- 神田紺屋町
- 神田富山町
- 神田西福田町
- 神田東松下町
- 神田東紺屋町
- 神田美倉町
- 東神田
- 神田相生町
- 神田和泉町
- 神田佐久間町
- 神田佐久間河岸
- 神田練塀町
- 神田花岡町
- 神田松永町
- 外神田
- 神田平河町