JLGビル(物件No:01781168)
JLGビルは品川区東五反田にある地上6階建ての賃貸事務所です。最寄駅はJR線の五反田駅から徒歩5分、東急池上線の五反田駅から徒歩5分、都営浅草線の五反田駅から徒歩5分、東急池上線の大崎広小路駅から徒歩7分、都営浅草線の高輪台駅から徒歩9分です。2002年5月竣工の基準階面積が23.05坪の鉄骨造です。設備としては、エレベーターが1基あります。トイレは室内男女別です。空調は個別空調です。床仕様はフリーアクセスです。耐震設計となっている、複数駅利用可能なアクセスの良い品川区東五反田の賃貸オフィスです。
-
物件情報
-
設備情報
- トイレ
- 室内男女別
- 床
- フリーアクセス
- 空調
- 個別空調
- セキュリティ
- -
- 駐車場
- -
- 会議室
- -
- エレベーター
- 1基
- 天井高
- -
-
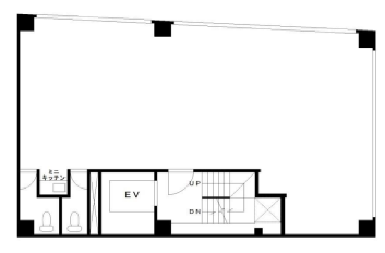
間取り図
-
近隣相場情報
東五反田1丁目(20~30坪)の相場
20530 円 (坪)
※ビルサク調べ
周辺地図
JLGビルは品川区東五反田にある地上6階建ての賃貸事務所です。最寄駅はJR線の五反田駅から徒歩5分、東急池上線の五反田駅から徒歩5分、都営浅草線の五反田駅から徒歩5分、東急池上線の大崎広小路駅から徒歩7分、都営浅草線の高輪台駅から徒歩9分です。2002年5月竣工の基準階面積が23.05坪の鉄骨造です。設備としては、エレベーターが1基あります。トイレは室内男女別です。空調は個別空調です。床仕様はフリーアクセスです。耐震設計となっている、複数駅利用可能なアクセスの良い品川区東五反田の賃貸オフィスです。
全フロア情報
更新日:2026年2月3日
| 階 | 面積 | 賃料 | 共益費 | 敷金 | 入居日 | お問合せ | お気に入り | |
|---|---|---|---|---|---|---|---|---|
| 1F |
17.37 坪 57.42 ㎡ |
※現在空室情報はございません |
※現在空室情報は 確認する |
|||||
| 2F |
22.69 坪 75.01 ㎡ |
※現在空室情報はございません |
※現在空室情報は 確認する |
|||||
| 3F |
23.01 坪 76.07 ㎡ |
※現在空室情報はございません |
※現在空室情報は 確認する |
|||||
| 5F |
16.37 坪 54.12 ㎡ |
245,550 円 15,000 円(坪) |
32,740 円 2,000 円(坪) |
2,000,000 円 |
2026/04 |
|
|
|
| 6F |
8.05 坪 26.61 ㎡ |
※現在空室情報はございません |
※現在空室情報は 確認する |
|||||
お問い合わせ
似た条件の物件はこちら
-
東京モリスビル第10
東京都品川区西五反田7-16-3
坪数:26.33 坪
坪単価:14,500 円(坪)
-
NOVEL WORK Gotanda
東京都品川区東五反田4-7-27
坪数:21.19 坪
坪単価:29,259 円(坪)
-
ウエストワールドビル
東京都品川区東五反田3-1-6
坪数:20.42 坪
坪単価:15,671 円(坪)
-
中村屋ビル
東京都品川区西五反田8-1-8
坪数:26.6 坪
坪単価:13,158 円(坪)
-
誠實ビル
東京都品川区西五反田2-7-8
坪数:24.95 坪
坪単価:20,000 円(坪)
-
東五反田AMビル
東京都品川区東五反田2-3-3
坪数:25.86 坪
坪単価:14,695 円(坪)
-
WAVE BLDG MEGURO
東京都品川区上大崎3-3-5
坪数:18.04 坪
坪単価:27,716 円(坪)
-
第1五反田ビル
東京都品川区東五反田5-27-6
坪数:25 坪
坪単価:20,000 円(坪)
-
ライオンズマンション西五反田
東京都品川区西五反田7-23-11
坪数:25.13 坪
坪単価:9,948 円(坪)
-
STビル
東京都品川区東五反田1-10-9
坪数:17.63 坪
坪単価:20,306 円(坪)