神田91ビル(物件No:01781101)
神田91ビルディングは千代田区鍛冶町の8階建ての貸店舗兼事務所物件です。最寄駅はJR線の神田駅より徒歩3分、東京メトロ銀座線の神田駅より徒歩4分、JR線の新日本橋駅より徒歩4分、東京メトロ銀座線の三越前駅より徒歩5分です。1991年9月竣工の鉄骨鉄筋コンクリート造で、基準階面積は160.88坪です。設備としてはエレベーターが2基あります。駐車場もあります。空調は個別空調で、床はフリーアクセスです。新耐震基準をクリアした、最寄駅へのアクセスが非常に便利な千代田区鍛冶町の貸店舗兼事務所です。
| 階 | 面積 | 賃料 | 共益費 | 敷金 | 入居日 | お問合せ | お気に入り |
|---|---|---|---|---|---|---|---|
|
1F
(1区画) |
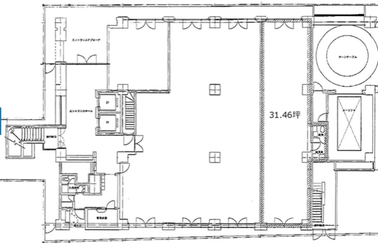
31.46 坪 104 ㎡ |
相談 |
相談 |
相談 |
2026/05 |
|
|
| 階 | 面積 | 賃料 | 共益費 | 敷金 | 入居日 | お問合せ | お気に入り |
|---|---|---|---|---|---|---|---|
|
1F
(1区画) |
31.46 坪 104 ㎡ |
相談 |
相談 |
相談 |
2026/05 |
|
|
-
物件情報
-
設備情報
- トイレ
- -
- 床
- フリーアクセス
- 空調
- -
- セキュリティ
- -
- 駐車場
- 有
- 会議室
- -
- エレベーター
- 2基
- 天井高
- -
-
間取り図
-
近隣相場情報
鍛冶町1丁目(30~40坪)の相場
21166 円 (坪)
※ビルサク調べ
周辺施設情報
| コンビニ |
ローソン/神田駅東口/150m(徒歩2分) セブンイレブン/神田紺屋町/200m(徒歩3分) |
|---|---|
| 郵便局/銀行 |
みずほ銀行/神田駅前支店/[営業時間] [窓口]平日9:00~15:00 [ATM]平日 0:00~24:00 土曜日 0:00~22:00 日曜日 8:00~21:00 祝日・振替休日 曜日に準ずる 備考 *月曜日の0:00~7:00はご利用いただけません。*第1・第4土曜日の3:00~5:00はご利用いただけません/200m(徒歩3分) 十六銀行/東京支店/[営業時間] [窓口]平日 10:00~14:00 土曜 - 日祝 - [ATM]平日 9:00~17:00 土曜 - 日祝 -/350m(徒歩4分) |
| 飲食店 |
蔵元居酒屋 清龍酒蔵 神田店/12時00分~23時30分/160m(徒歩2分) 貝呑/150m(徒歩2分) |
| カフェ |
THE A.I.R BUILDING ジ.エア ビルディング/450m(徒歩6分) アシストコーヒー ロースタリー/11時30分~20時00分/350m(徒歩5分) |
| コインパーキング |
大栄パーク/神田紺屋町 [料金] 全日08:00~20:00 30分/400円 全日20:00~08:00 60分/100円 [最大料金] 最大入庫後12時間(月~土)3000円 最大入庫後12時間(日・祝)900円 最大夜間300円 [台数]3 台 三井のリパーク/千代田区鍛冶町1丁目第3 [料金] 全日 08:00~00:00 15分/500円 全日 00:00~08:00 60分/100円 [最大料金] 【全日】最大料金入庫後4時間以内3000円 [台数]11 |
周辺地図
神田91ビルディングは千代田区鍛冶町の8階建ての貸店舗兼事務所物件です。最寄駅はJR線の神田駅より徒歩3分、東京メトロ銀座線の神田駅より徒歩4分、JR線の新日本橋駅より徒歩4分、東京メトロ銀座線の三越前駅より徒歩5分です。1991年9月竣工の鉄骨鉄筋コンクリート造で、基準階面積は160.88坪です。設備としてはエレベーターが2基あります。駐車場もあります。空調は個別空調で、床はフリーアクセスです。新耐震基準をクリアした、最寄駅へのアクセスが非常に便利な千代田区鍛冶町の貸店舗兼事務所です。
全フロア情報
更新日:2026年3月17日
| 階 | 面積 | 賃料 | 共益費 | 敷金 | 入居日 | お問合せ | お気に入り | |
|---|---|---|---|---|---|---|---|---|
|
1F
(1区画) |
31.46 坪 104 ㎡ |
相談 |
相談 |
相談 |
2026/05 |
|
|
|
| 4F |
160.88 坪 531.83 ㎡ |
※現在空室情報はございません |
※現在空室情報は 確認する |
|||||
| 5F |
160.88 坪 531.83 ㎡ |
※現在空室情報はございません |
※現在空室情報は 確認する |
|||||
| 6F |
160.88 坪 531.83 ㎡ |
※現在空室情報はございません |
※現在空室情報は 確認する |
|||||
お問い合わせ
似た条件の物件はこちら
-
大手町ゲートビルディング
東京都千代田区内神田1-31-11
坪数:34.8 坪
坪単価:70,402 円(坪)
-
日光ビル
東京都千代田区神田小川町1-1-4
坪数:34.94 坪
坪単価:15,000 円(坪)
-
M&Cビル
東京都千代田区神田小川町2-3-13
坪数:34.42 坪
坪単価:15,500 円(坪)
-
新八光ビル
東京都千代田区内神田3-22-9
坪数:38.3 坪
坪単価:20,000 円(坪)
-
第八東誠ビル
東京都千代田区岩本町2-11-3
坪数:25.82 坪
坪単価:12,000 円(坪)
-
神田中沢ビル
東京都千代田区外神田6-14-12
坪数:28.5 坪
坪単価:10,526 円(坪)
-
KSKビル
東京都千代田区外神田5-1-15
坪数:39.4 坪
坪単価:16,000 円(坪)
-
新東ビル
東京都千代田区内神田2-8-3
坪数:21.5 坪
坪単価:12,000 円(坪)
-
いちご大手町ノースビル
東京都千代田区内神田1-15-7
坪数:31.89 坪
坪単価:29,000 円(坪)
-
ism神田
東京都千代田区神田東松下町48
坪数:31.72 坪
坪単価:16,000 円(坪)
関連エリアから探す
- 内神田
- 神田淡路町
- 神田小川町
- 神田鍛冶町
- 神田須田町
- 神田駿河台
- 神田多町
- 神田司町
- 神田錦町
- 神田美土代町
- 岩本町
- 鍛冶町
- 神田岩本町
- 神田北乗物町
- 神田紺屋町
- 神田富山町
- 神田西福田町
- 神田東松下町
- 神田東紺屋町
- 神田美倉町
- 東神田
- 神田相生町
- 神田和泉町
- 神田佐久間町
- 神田佐久間河岸
- 神田練塀町
- 神田花岡町
- 神田松永町
- 外神田
- 神田平河町