千代田ビル(物件No:01688008)
千代田ビルは千代田区外神田にある地上4階建ての賃貸事務所です。最寄駅は東京メトロ銀座線の末広町駅から徒歩4分、JR線の秋葉原駅から徒歩10分です。1962年1月竣工の鉄筋コンクリート造です。設備としては、空調は個別空調です。ビジネス街として人気のある千代田区外神田の賃貸オフィスです。
| 階 | 面積 | 賃料 | 共益費 | 敷金 | 入居日 | お問合せ | お気に入り | |
|---|---|---|---|---|---|---|---|---|
|
4F
(401区画) |
9.47 坪 31.31 ㎡ |
※現在空室情報はございません |
※現在空室情報は 確認する |
|||||
-
物件情報
-
設備情報
- トイレ
- 男女別
- 床
- タイルカーペット
- 空調
- 個別空調
- セキュリティ
- -
- 駐車場
- -
- 会議室
- -
- エレベーター
- 0基
- 天井高
- -
-
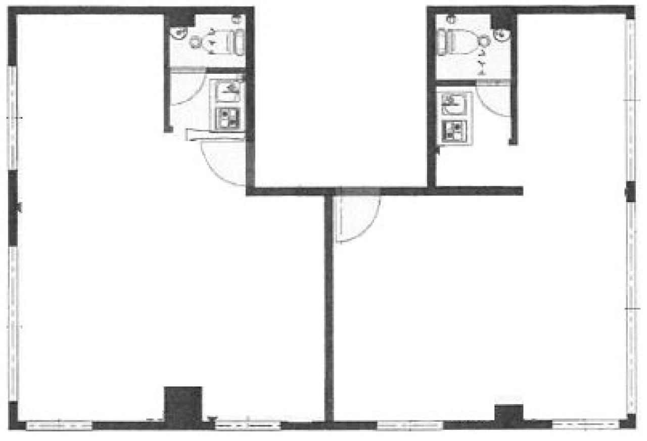
間取り図
-
近隣相場情報
外神田2丁目(20坪以下)の相場
15172 円 (坪)
※ビルサク調べ
周辺施設情報
| コンビニ |
ローソン/末広町駅前/350m(徒歩4分) ファミリーマート/ファミマ秋葉原TMOビル/S店/400m(徒歩5分) |
|---|---|
| 郵便局/銀行 |
三菱UFJ銀行/秋葉原支店/[営業時間] [窓口]平日 9:00~15:00 土曜日 - 日曜日 - *祝日・休日および12月31日、1月1日~3日は営業いたしません。 [ATM]平日 7:00~24:00 土曜日 7:00~24:00 日・祝日 7:00~24:00 *毎月第2土曜日の21:00~翌朝7:00はご利用いただけ/300m(徒歩4分) イーネット/ファミリーマートお茶の水/[営業時間]0:00~24:00/400m(徒歩5分) |
| 飲食店 |
そばいち Tokyo Food Bar秋葉原店/7時00分~22時45分/750m(徒歩10分) 一の谷/17時30分~23時00分/ |
| カフェ |
ミスタードーナツ/秋葉原/[営業時間]10:00~19:00 [備考]全席禁煙/450m(徒歩5分) Hama Cafe/ランチ 11:30~17:00、ディナー 18:00~22:00(L.O21:30)/100m(徒歩1分) |
| コインパーキング |
コインパーク/外神田3丁目 [料金] 【全日】■通常料金【オールタイム(24時間)】15分400円 [最大料金] 【駐車後4時間以内(1回限り)】3400円 【18:00~8:00】2000円 [台数] [車: 4台] 三井のリパーク/外神田6丁目第4 [料金] 全日 08:00~22:00 15分/300円 全日 22:00~08:00 60分/100円 [最大料金] 【全日】最大料金入庫後4時間以内2600円 [台数]2 |
周辺地図
千代田ビルは千代田区外神田にある地上4階建ての賃貸事務所です。最寄駅は東京メトロ銀座線の末広町駅から徒歩4分、JR線の秋葉原駅から徒歩10分です。1962年1月竣工の鉄筋コンクリート造です。設備としては、空調は個別空調です。ビジネス街として人気のある千代田区外神田の賃貸オフィスです。
全フロア情報
更新日:2025年9月19日
| 階 | 面積 | 賃料 | 共益費 | 敷金 | 入居日 | お問合せ | お気に入り | |
|---|---|---|---|---|---|---|---|---|
|
3F
(301区画) |
10.01 坪 33.09 ㎡ |
※現在空室情報はございません |
※現在空室情報は 確認する |
|||||
|
3F
(302区画) |
9.2 坪 30.41 ㎡ |
※現在空室情報はございません |
※現在空室情報は 確認する |
|||||
| 4F |
18.99 坪 62.78 ㎡ |
※現在空室情報はございません |
※現在空室情報は 確認する |
|||||
|
4F
(401区画) |
9.47 坪 31.31 ㎡ |
※現在空室情報はございません |
※現在空室情報は 確認する |
|||||
|
4F
(402区画) |
9.52 坪 31.47 ㎡ |
※現在空室情報はございません |
※現在空室情報は 確認する |
|||||
お問い合わせ
似た条件の物件はこちら
-
大手町ゲートビルディング
東京都千代田区内神田1-31-11
坪数:11.65 坪
坪単価:77,253 円(坪)
-
パレヤソジマ
東京都千代田区神田司町2-15-1
坪数:12.03 坪
坪単価:12,053 円(坪)
-
神田美倉町ビル
東京都千代田区神田美倉町9
坪数:12.6 坪
坪単価:16,667 円(坪)
-
プロミエ秋葉原
東京都千代田区神田練塀町73
坪数:13.65 坪
坪単価:19,121 円(坪)
-
秋葉原Y'sビル
東京都千代田区神田佐久間町3-20-5
坪数:11.17 坪
坪単価:16,000 円(坪)
-
第一ビル
東京都千代田区神田司町2-10
坪数:12.6 坪
坪単価:14,500 円(坪)
-
上田ビル
東京都千代田区神田司町2-19
坪数:12.1 坪
坪単価:11,000 円(坪)
-
嶋屋ビル
東京都千代田区内神田2-11-2
坪数:10.33 坪
坪単価:9,681 円(坪)
-
大和橋ビル
東京都千代田区岩本町2-16-9
坪数:10.62 坪
坪単価:12,241 円(坪)
-
神田M.I.C.ビル
東京都千代田区神田多町2-9
坪数:12.01 坪
坪単価:14,000 円(坪)
関連エリアから探す
- 内神田
- 神田淡路町
- 神田小川町
- 神田鍛冶町
- 神田須田町
- 神田駿河台
- 神田多町
- 神田司町
- 神田錦町
- 神田美土代町
- 岩本町
- 鍛冶町
- 神田岩本町
- 神田北乗物町
- 神田紺屋町
- 神田富山町
- 神田西福田町
- 神田東松下町
- 神田東紺屋町
- 神田美倉町
- 東神田
- 神田相生町
- 神田和泉町
- 神田佐久間町
- 神田佐久間河岸
- 神田練塀町
- 神田花岡町
- 神田松永町
- 外神田
- 神田平河町