マルヒロ八重洲ビル(物件No:01687151)
マルヒロ八重洲ビル(旧:マルヒロ京橋ビル)は、中央区京橋にある貸事務所物件です。最寄り駅は東京メトロ銀座線京橋駅、東京メトロ東西線日本橋駅、JR東京駅、都営浅草線宝町駅です。1991年竣工で、基準階が23坪の賃貸オフィスビルです。床は2WAY、タイルカーペットで、天井の高さは2450mm。トイレは室内男女別で、空調は個別空調です。エレベーターは1基あります。複数路線利用可能で、交通アクセスの良い、中央区京橋の貸事務所です。
-
物件情報
-
設備情報
- トイレ
- 室内男女別
- 床
- 2WAY
- 空調
- 個別空調
- セキュリティ
- -
- 駐車場
- 無
- 会議室
- -
- エレベーター
- 1基
- 天井高
- 2450mm
-
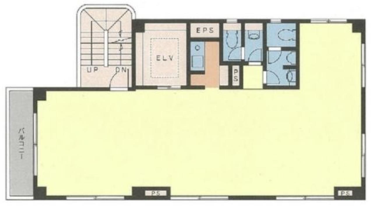
間取り図
-
近隣相場情報
京橋1丁目(20~30坪)の相場
22026 円 (坪)
※ビルサク調べ
周辺施設情報
| コンビニ |
セブンイレブン/京橋駅前/250m(徒歩4分) ローソン/京橋エドグラン/280m(徒歩4分) |
|---|---|
| 郵便局/銀行 |
広島銀行/東京支店/[営業時間]平日 9:00~15:00 /150m(徒歩2分) 東邦銀行/東京支店/[営業時間]平日 9:00~15:00 土 - 日 - 祝 -/140m(徒歩2分) |
| 飲食店 |
ラ・スパジオ/11時30分~14時00分,17時00分~23時00分/110m(徒歩1分) 伊勢廣 京橋本店/11時30分~14時00分,16時30分~21時00分/17m(徒歩1分) |
| カフェ |
上島珈琲店/京橋2丁目店/[営業時間]平日 7:00~21:00 / 土日祝 8:00~19:00 [休業日]なし /77m(徒歩1分) エクセルシオール/カフェ バリスタ 京橋一丁目店/[営業時間]平 日:06:45 - 22:00 土曜日:07:00 - 20:00 日 祝:07:00 - 20:00 [休業日]なし /75m(徒歩1分) |
| コインパーキング |
NPC24H/京橋1丁目 [料金] [月~土]通常料金 / 00:00-00:00 15分 400円 [日・祝]通常料金 / 00:00-00:00 15分 400円 [最大料金] [月~土]08:00-21:00 最大料金4400円 21:00-08:00 最大料金800円 [日・祝]08:00-21:00 最大料金1800円 21:00-08:00 最大料金800円 [台数]19 タイムズ駐車場/京橋第5 [料金] [月~土]通常料金 / 00:00-00:00 15分 400円 [日・祝通常料金 / 00:00-00:00 15分 400円 [最大料金] [月~土]08:00-21:00 最大料金4400円 21:00-08:00 最大料金800円 [日・祝]08:00-21:00 最大料金1800円 21:00-08:00 最大料金800円 [台数]19 |
周辺地図
マルヒロ八重洲ビル(旧:マルヒロ京橋ビル)は、中央区京橋にある貸事務所物件です。最寄り駅は東京メトロ銀座線京橋駅、東京メトロ東西線日本橋駅、JR東京駅、都営浅草線宝町駅です。1991年竣工で、基準階が23坪の賃貸オフィスビルです。床は2WAY、タイルカーペットで、天井の高さは2450mm。トイレは室内男女別で、空調は個別空調です。エレベーターは1基あります。複数路線利用可能で、交通アクセスの良い、中央区京橋の貸事務所です。
全フロア情報
更新日:2025年12月12日
| 階 | 面積 | 賃料 | 共益費 | 敷金 | 入居日 | お問合せ | お気に入り | |
|---|---|---|---|---|---|---|---|---|
| 2F |
23 坪 76.03 ㎡ |
※現在空室情報はございません |
※現在空室情報は 確認する |
|||||
| 4F |
23 坪 76.03 ㎡ |
※現在空室情報はございません |
※現在空室情報は 確認する |
|||||
| 9F |
23 坪 76.03 ㎡ |
相談 |
相談 |
10ヶ月 |
即日 |
|
|
|
お問い合わせ
似た条件の物件はこちら
-
新々会館
東京都中央区日本橋3-14-1
坪数:21.35 坪
坪単価:15,000 円(坪)
-
協同ビル
東京都中央区日本橋本町2-3-6
坪数:19.18 坪
坪単価:8,996 円(坪)
-
朝日第3ビル
東京都中央区日本橋本石町4-4-12
坪数:20 坪
坪単価:13,000 円(坪)
-
讃金ビル
東京都中央区日本橋本町1-7-10
坪数:26.42 坪
坪単価:13,000 円(坪)
-
京橋鈴木ビル
東京都中央区京橋3-9-7
坪数:20 坪
坪単価:15,000 円(坪)
-
日本橋優和ビル
東京都中央区日本橋本石町3-3-8
坪数:18.6 坪
坪単価:14,000 円(坪)
-
日東ビル
東京都中央区日本橋本石町4-2-3
坪数:21.27 坪
坪単価:10,014 円(坪)
-
HONCHO394ビル
東京都中央区日本橋本町3-9-4
坪数:23.87 坪
坪単価:13,000 円(坪)
-
青地ビル
東京都中央区日本橋室町4-3-3
坪数:20 坪
坪単価:10,000 円(坪)
-
For You東京駅前ビル
東京都中央区日本橋3-5-12
坪数:19 坪
坪単価:31,579 円(坪)