第2テーワイビル(物件No:01681123)
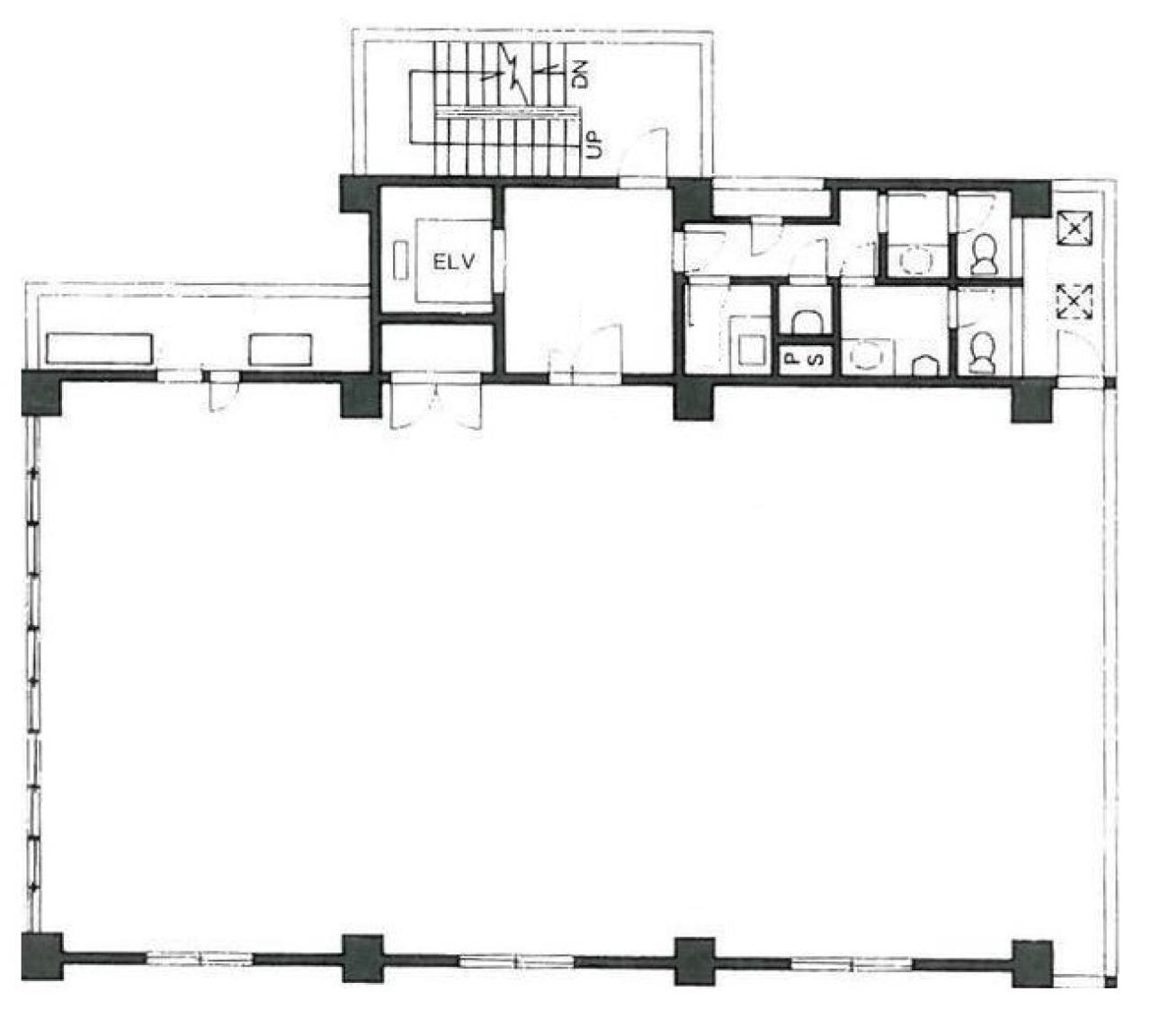
第2テーワイビルは港区芝浦にある地上7階建ての賃貸事務所です。最寄駅はJR線の田町駅から徒歩6分、都営浅草線の三田駅から徒歩8分、ゆりかもめの芝浦ふ頭駅から徒歩7分です。1989年1月竣工の基準階面積が60坪の鉄骨鉄筋コンクリート造です。設備としては、エレベーターが1基あります。セキュリティは機械警備です。トイレは室外男女別です。空調は個別空調です。床仕様はフリーアクセスです。複数路線利用可能なアクセスの良い港区芝浦の賃貸オフィスです。
-
物件情報
-
設備情報
- トイレ
- 室外男女別
- 床
- -
- 空調
- 個別空調
- セキュリティ
- 有
- 駐車場
- -
- 会議室
- -
- エレベーター
- 1基
- 天井高
- -
-
間取り図
-
近隣相場情報
芝浦2丁目(50~100坪)の相場
20312 円 (坪)
※ビルサク調べ
周辺施設情報
| コンビニ |
ファミリーマート/海岸三丁目店/500m(徒歩7分) セブンイレブン/港区芝浦1丁目/300m(徒歩4分) |
|---|---|
| 郵便局/銀行 |
セブン銀行/港区芝浦3なぎさ通り店/[営業時間]24時間営業 [備考]1 台/350m(徒歩5分) みずほ銀行/ATM まいばすけっと海岸3丁目店出張所/[営業時間] [ATM]平日 8:00~23:00 土曜日 8:00~22:00 日曜日 8:00~23:00 祝日・振替休日 曜日に準ずる 備考 通帳繰越機 設置なし/400m(徒歩5分) |
| 飲食店 |
焼肉トラジ 田町店/11時00分~15時00分、17時00分~23時00分/400m(徒歩5分) しんのすけ/17:30~22:00/98m(徒歩1分) |
| カフェ |
タリーズ/芝浦海岸通り店/[営業時間]平日:7:00~19:30(L.O.19:15) 土 :休業日 日祝: 休業日 [備考]Tully's Wi-Fi、喫煙ルーム/700m(徒歩9分) カフェドクリエ/田町駅東口なぎさテラス/[営業時間][平 日] 7:00-22:00 [土日祝] (土)8:00-21:00 (日/祝)8:00-21:00/550m(徒歩7分) |
| コインパーキング |
ユアー・パーキング/芝浦第3 [料金] 【全日】 08時~21時 20分300円 【全日】 21時~08時 60分100円 [最大料金] 日祝:昼間最大(08時~21時の間)2,500円 全日:夜間最大(21時~08時の間)500円 [台数]8 タイムズ駐車場/海岸3丁目第2 [料金] [月~土]07:00-19:00 最大料金2600円 19:00-07:00 最大料金500円 通常料金 / 00:00-00:00 30分 400円 [日・祝] [最大料金] 07:00-19:00 最大料金1000円 19:00-07:00 最大料金500円 通常料金 / 00:00-00:00 60分 300円 [台数]8 |
周辺地図
第2テーワイビルは港区芝浦にある地上7階建ての賃貸事務所です。最寄駅はJR線の田町駅から徒歩6分、都営浅草線の三田駅から徒歩8分、ゆりかもめの芝浦ふ頭駅から徒歩7分です。1989年1月竣工の基準階面積が60坪の鉄骨鉄筋コンクリート造です。設備としては、エレベーターが1基あります。セキュリティは機械警備です。トイレは室外男女別です。空調は個別空調です。床仕様はフリーアクセスです。複数路線利用可能なアクセスの良い港区芝浦の賃貸オフィスです。
全フロア情報
更新日:2022年10月26日
| 階 | 面積 | 賃料 | 共益費 | 敷金 | 入居日 | お問合せ | お気に入り | |
|---|---|---|---|---|---|---|---|---|
| 2F |
60.00 坪 198.35 ㎡ |
※現在空室情報はございません |
※現在空室情報は 確認する |
|||||
| 3F |
60.00 坪 198.35 ㎡ |
※現在空室情報はございません |
※現在空室情報は 確認する |
|||||
| 4F |
60.00 坪 198.35 ㎡ |
※現在空室情報はございません |
※現在空室情報は 確認する |
|||||
| 5F |
60.00 坪 198.35 ㎡ |
※現在空室情報はございません |
※現在空室情報は 確認する |
|||||
| 6F |
60 坪 198.35 ㎡ |
※現在空室情報はございません |
※現在空室情報は 確認する |
|||||
| 7F |
60.00 坪 198.35 ㎡ |
※現在空室情報はございません |
※現在空室情報は 確認する |
|||||
お問い合わせ
似た条件の物件はこちら
-
Bizflex麻布十番
東京都港区三田1-1-14
坪数:72.56 坪
坪単価:40,793 円(坪)
-
池藤ビル
東京都港区芝4-5-8
坪数:54.31 坪
坪単価:14,000 円(坪)
-
トレードピアお台場
東京都港区台場2-3-1
坪数:55.82 坪
坪単価:24,006 円(坪)
-
岡家寿ビル
東京都港区芝浦1-7-14
坪数:62.95 坪
坪単価:13,000 円(坪)
-
専売ビル
東京都港区芝5-26-30
坪数:69.1 坪
坪単価:21,526 円(坪)
-
芝公園プラザビル
東京都港区芝3-6-9
坪数:50.88 坪
坪単価:18,000 円(坪)
-
大門アーバニストビル
東京都港区芝大門2-3-6
坪数:47.81 坪
坪単価:14,071 円(坪)
-
シントクビル
東京都港区芝3-14-6
坪数:45.28 坪
坪単価:14,000 円(坪)
-
オー・アイ・芝浦
東京都港区芝浦3-19-19
坪数:53.42 坪
坪単価:16,000 円(坪)
-
ARZ芝公園
東京都港区芝2-23-1
坪数:45.88 坪
坪単価:27,000 円(坪)